• 手机版

    扫码体验手机版

  • 微信公众号

    扫码关注公众号

登录注册
游客您好
第三方账号登陆

[衢州] 【格堂#阳光水岸1#】原味.中式

[复制链接]
发表于 2017-4-14 12:04:32 | 显示全部楼层 |阅读模式

格堂装饰为您全程记录装修全过程!

小区名称
阳光水岸1幢
房屋面积
127㎡
户型结构
框架
装修风格
中式
装修方式
半包
装修造价
查看请联系客服万元
设计师
郑工
项目经理
谢工
装修公司
格堂装饰
完工实景
完工实景
水电全景
水电全景
VR全景
VR全景
设计说明
更多信息
本帖最后由 格堂婷婷 于 2017-4-19 16:08 编辑

设计说明:       客厅是传统与现代居室风格的碰撞,设计师以现代的装饰手法和家具,结合古典中式的装饰元素,来呈现亦古亦今的空间氛围。中式风格的古色古香与现代风格的简单素雅自然衔接,使生活的实用性和对传统文化的追求同时得到了满足。餐厅的空间的层次感也给予新中式更加恢宏的表达,雅致的墙画与酒柜的造型,也是给就餐增加美味。简约的吊顶装饰配以质朴的吊灯,通透的光线使人不会感到丝毫压抑。
效果图:

448211042339382250.jpg

回复

使用道具 举报

 楼主| 发表于 2017-4-14 12:05:24 | 显示全部楼层
本帖最后由 格堂婷婷 于 2017-4-19 09:26 编辑

平面结构图:
684033981632522315.jpg


回复 支持 反对

使用道具 举报

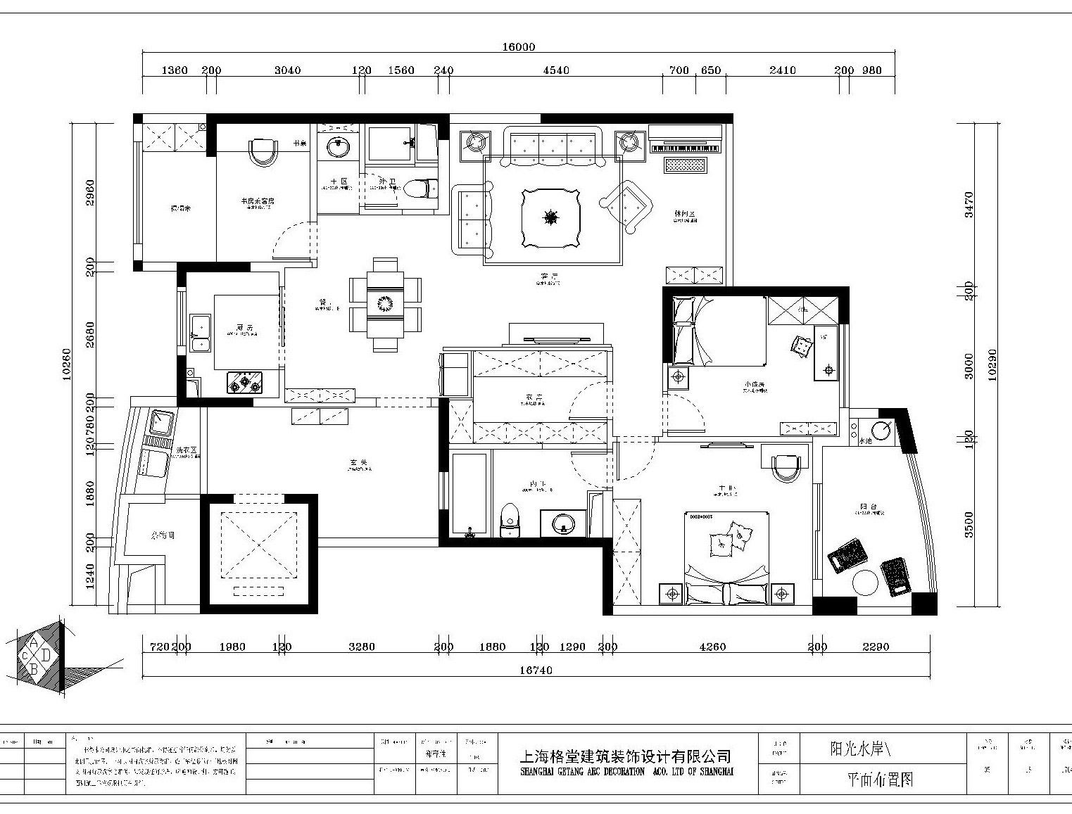
 楼主| 发表于 2017-4-14 12:05:54 | 显示全部楼层
本帖最后由 格堂婷婷 于 2017-4-19 09:27 编辑

平面布置图:

240039949390112271.jpg



回复 支持 反对

使用道具 举报

 楼主| 发表于 2017-4-14 12:06:16 | 显示全部楼层












回复

使用道具 举报

 楼主| 发表于 2017-4-14 13:16:16 | 显示全部楼层
本帖最后由 格堂婷婷 于 2017-4-14 16:24 编辑

4月10号,春暖花开,我们开工去啦

511382542001432766.jpg

190529463561743.jpg

回复 支持 反对

使用道具 举报

 楼主| 发表于 2017-4-14 13:19:17 | 显示全部楼层
本帖最后由 格堂婷婷 于 2017-4-14 16:25 编辑

施工标准
650679021925956304.jpg
回复 支持 反对

使用道具 举报

 楼主| 发表于 2017-4-14 13:21:21 | 显示全部楼层
本帖最后由 格堂婷婷 于 2017-4-14 16:25 编辑

包套保护好,防止后期磕碰。
526775509721691945.jpg

207054222425488479.jpg

回复 支持 反对

使用道具 举报

 楼主| 发表于 2017-4-14 13:23:24 | 显示全部楼层
本帖最后由 格堂婷婷 于 2017-4-14 16:26 编辑

9:28开工大吉

351981824372589610_副本.jpg

201751151984206864.jpg


回复 支持 反对

使用道具 举报

 楼主| 发表于 2017-4-14 13:28:21 | 显示全部楼层
本帖最后由 格堂婷婷 于 2017-4-14 16:27 编辑

业主大人敲下开工的第一锤
553111465557684522_副本.jpg

384429740153978996.jpg


回复 支持 反对

使用道具 举报

 楼主| 发表于 2017-4-14 13:44:46 | 显示全部楼层
本帖最后由 格堂婷婷 于 2017-4-14 16:28 编辑

煤气表及管道保护到位
878416235709874898.jpg

Adm.jpg


回复 支持 反对

使用道具 举报

您需要登录后才可以回帖 登录 | 立即注册

本版积分规则

全国统一客服电话
0570-8028505

24x7小时免费咨询

  • 官方在线客服

    QQ客服:小西

    点击交谈

    QQ客服:良子

    点击交谈

    QQ客服:闵月

    点击交谈
  • 衢州市柯城区财富中心3号楼2楼

  • 衢州格堂装饰有限公司

  • 扫一扫关注官方微信

    获取一手特惠信息

快速回复 返回顶部 返回列表