• 手机版

    扫码体验手机版

  • 微信公众号

    扫码关注公众号

登录注册
游客您好
第三方账号登陆

[衢州] 【格堂※月亮湾沁园5幢※】追求修身、齐家的生活境界

[复制链接]
发表于 2017-1-8 15:22:15 | 显示全部楼层 |阅读模式

格堂装饰为您全程记录装修全过程!

小区名称
月亮湾
房屋面积
户型结构
装修风格
中式
装修方式
半包
装修造价
查看请联系客服万元
设计师
江工
项目经理
施工
装修公司
格堂装饰
完工实景
完工实景
水电全景
水电全景
VR全景
VR全景
设计说明
更多信息
设计说明:
每一种装饰风格装饰风格都是有其特定的文化背景作为支撑,以此来传递给人们特定文化环境下人们对生活的追求.新中式风格在家居布局上讲究方正、对称的布局形式,讲究整体的布局,造型朴素优美,色彩浓厚而成熟。新中式风格的装饰主要体现在传统的家具,再辅以字画、盆景,陶瓷、古玩、屏风等装饰品,最求的是一种修身、齐家的生活境界。
效果图:
1.jpg
回复

使用道具 举报

 楼主| 发表于 2017-1-8 15:22:49 | 显示全部楼层
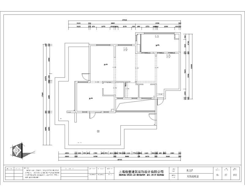
原始结构图:
月亮湾-原始结构图.jpg


平面布置图:

月亮湾-平面布局.jpg

回复 支持 反对

使用道具 举报

 楼主| 发表于 2017-1-8 15:22:59 | 显示全部楼层

回复

使用道具 举报

 楼主| 发表于 2017-1-8 15:23:06 | 显示全部楼层

回复

使用道具 举报

 楼主| 发表于 2017-1-8 15:23:12 | 显示全部楼层

回复

使用道具 举报

 楼主| 发表于 2017-1-8 15:23:18 | 显示全部楼层

回复

使用道具 举报

 楼主| 发表于 2017-1-8 16:18:51 | 显示全部楼层
11月26日,我们开工去啦!
IMG_4564.jpg
IMG_4565.jpg
回复 支持 反对

使用道具 举报

 楼主| 发表于 2017-1-8 16:19:13 | 显示全部楼层
先把门套保护好,防止后期磕碰
IMG_4566.jpg
IMG_4567.jpg
IMG_4568.jpg
回复 支持 反对

使用道具 举报

 楼主| 发表于 2017-1-8 16:20:01 | 显示全部楼层
门槛保护
IMG_4569.jpg
IMG_4570.jpg
回复 支持 反对

使用道具 举报

 楼主| 发表于 2017-1-8 16:20:23 | 显示全部楼层
煤气、管道保护
IMG_4571.jpg
IMG_4572.jpg
回复 支持 反对

使用道具 举报

您需要登录后才可以回帖 登录 | 立即注册

本版积分规则

全国统一客服电话
0570-8028505

24x7小时免费咨询

  • 官方在线客服

    QQ客服:小西

    点击交谈

    QQ客服:良子

    点击交谈

    QQ客服:闵月

    点击交谈
  • 衢州市柯城区财富中心3号楼2楼

  • 衢州格堂装饰有限公司

  • 扫一扫关注官方微信

    获取一手特惠信息

快速回复 返回顶部 返回列表