• 手机版

    扫码体验手机版

  • 微信公众号

    扫码关注公众号

登录注册
游客您好
第三方账号登陆

[衢州] 【格堂※金河湾7幢※】属于欧式的味道

[复制链接]
发表于 2016-12-31 13:56:54 | 显示全部楼层 |阅读模式

格堂装饰为您全程记录装修全过程!

小区名称
金河湾
房屋面积
户型结构
装修风格
欧式
装修方式
半包
装修造价
查看请联系客服万元
设计师
毛工
项目经理
施工
装修公司
格堂装饰
完工实景
完工实景
水电全景
水电全景
VR全景
VR全景
设计说明
更多信息
本帖最后由 格堂小徐 于 2017-1-21 15:02 编辑

效果图:
金--副本.jpg
金河湾-.jpg
金河湾--.jpg

回复

使用道具 举报

 楼主| 发表于 2016-12-31 13:57:03 | 显示全部楼层
本帖最后由 格堂小徐 于 2017-1-21 15:02 编辑

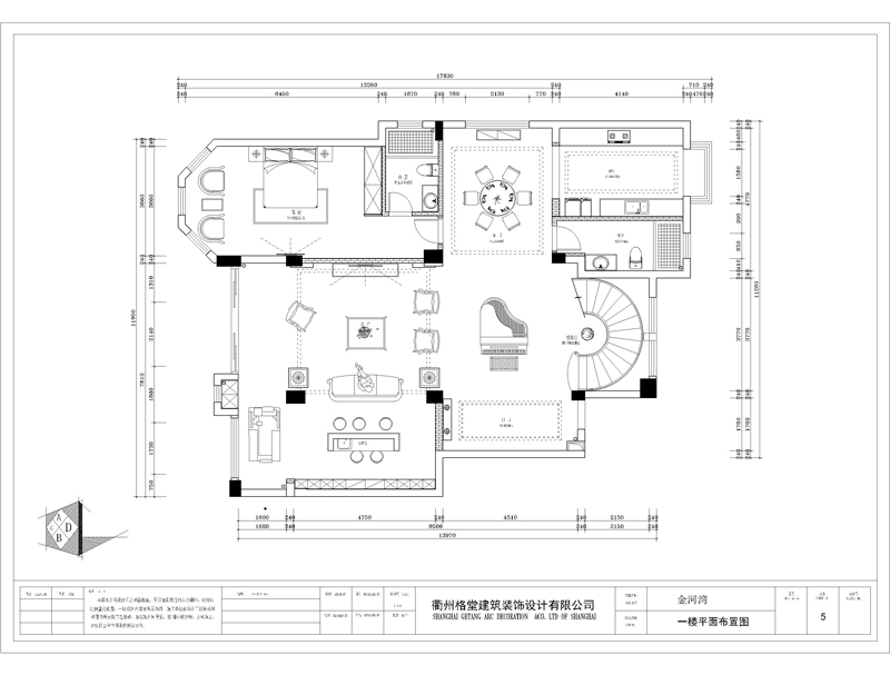
一楼原始结构图:
1.jpg

平面布置图:
2.jpg
回复 支持 反对

使用道具 举报

 楼主| 发表于 2016-12-31 13:57:09 | 显示全部楼层
本帖最后由 格堂小徐 于 2017-1-21 15:03 编辑

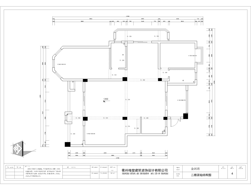
二楼原始结构图:
3.jpg

平面布置图:
4.jpg
回复 支持 反对

使用道具 举报

 楼主| 发表于 2016-12-31 13:57:21 | 显示全部楼层

回复

使用道具 举报

 楼主| 发表于 2016-12-31 13:57:27 | 显示全部楼层

回复

使用道具 举报

 楼主| 发表于 2016-12-31 13:57:32 | 显示全部楼层

回复

使用道具 举报

 楼主| 发表于 2016-12-31 13:59:24 | 显示全部楼层
12月25日,我们开工去把!
IMG_6402.jpg
IMG_6403_副本.jpg
回复 支持 反对

使用道具 举报

 楼主| 发表于 2016-12-31 13:59:52 | 显示全部楼层
开工横幅挂起来
IMG_6404.jpg
IMG_6406.jpg
IMG_6407.jpg
回复 支持 反对

使用道具 举报

 楼主| 发表于 2016-12-31 14:00:43 | 显示全部楼层
门及门槛都要保护起来,防止后期磕碰到
IMG_6437.jpg
IMG_6438.jpg
IMG_6436.jpg



回复 支持 反对

使用道具 举报

 楼主| 发表于 2016-12-31 14:02:52 | 显示全部楼层
煤气表及管道口都要保护起来哦
IMG_6427.jpg
IMG_6428.jpg
IMG_6429.jpg
IMG_6430.jpg
回复 支持 反对

使用道具 举报

您需要登录后才可以回帖 登录 | 立即注册

本版积分规则

全国统一客服电话
0570-8028505

24x7小时免费咨询

  • 官方在线客服

    QQ客服:小西

    点击交谈

    QQ客服:良子

    点击交谈

    QQ客服:闵月

    点击交谈
  • 衢州市柯城区财富中心3号楼2楼

  • 衢州格堂装饰有限公司

  • 扫一扫关注官方微信

    获取一手特惠信息

快速回复 返回顶部 返回列表