• 手机版

    扫码体验手机版

  • 微信公众号

    扫码关注公众号

登录注册
游客您好
第三方账号登陆

[衢州] 【格堂‖月亮湾沁园7#】行走于现代风的质感与格调

[复制链接]
发表于 2016-12-24 13:50:56 | 显示全部楼层 |阅读模式

格堂装饰为您全程记录装修全过程!

小区名称
月亮湾沁园
房屋面积
140㎡
户型结构
3室2厅2卫
装修风格
现代
装修方式
半包
装修造价
查看请联系客服万元
设计师
余工
项目经理
刘工
装修公司
格堂装饰
完工实景
完工实景
水电全景
水电全景
VR全景
VR全景
设计说明
更多信息
本帖最后由 格堂小许 于 2017-3-17 13:29 编辑

——————————    设计说明    ——————————



本案是套纯现代设计

首先格局上根据业主自身情况需求取消了一个房间做茶室,可见茶室卡座是非常重要

业主非常有品质,讲究生活的质感

纯现代风格就是非常讲究材质的质感,金色的不锈钢、麻布硬包、高档木门的护墙板门套

强烈现代高档质感的半柔抛真石砖、大理石台面,使整个空间的质感瞬间提升

现代风格造型线条简约平整,讲究材质、灯光、家具、颜色、软配的共同协作,缺一不可

背景的砖面设计更加提升了客厅的档次


效果图▼▼▼

餐厅.jpg

客厅.jpg

主卧.jpg


原始结构图▼▼▼
原始结构.jpg


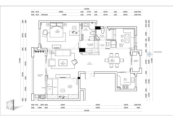
平面布置图▼▼▼

平面布置.jpg


回复

使用道具 举报

 楼主| 发表于 2016-12-24 13:53:09 | 显示全部楼层
后期搭配占楼:
115218mrw777orhx11jnp1.jpg
回复 支持 反对

使用道具 举报

 楼主| 发表于 2016-12-24 13:53:28 | 显示全部楼层
后期搭配占楼:
115218mrw777orhx11jnp1.jpg
回复 支持 反对

使用道具 举报

 楼主| 发表于 2016-12-24 13:53:46 | 显示全部楼层
后期搭配占楼:
115218mrw777orhx11jnp1.jpg
回复 支持 反对

使用道具 举报

 楼主| 发表于 2016-12-24 13:58:37 | 显示全部楼层
12月24日,晚上就是平安夜的喜庆日子,也是开工的好日子,天气特别晴朗!我们月亮湾的肖姐、黄总家开工啦!圣诞节的小礼物送给你们!
IMG_1915.JPG
IMG_1914.JPG
回复 支持 反对

使用道具 举报

 楼主| 发表于 2016-12-24 14:00:49 | 显示全部楼层
大门、煤气表、下水管口保护到位!
IMG_1936.JPG
IMG_1922(1).JPG
IMG_1923(1).JPG
IMG_1916.JPG
IMG_1917.JPG
回复 支持 反对

使用道具 举报

 楼主| 发表于 2016-12-24 14:03:51 | 显示全部楼层
我们的项目经理刘工首要任务就是用空鼓锤检查墙面、地面的空鼓,并认真做好标记
IMG_1925(1).JPG
IMG_1924(1).JPG
IMG_1926(1).JPG
IMG_1940(1).JPG
回复 支持 反对

使用道具 举报

 楼主| 发表于 2016-12-24 14:06:50 | 显示全部楼层
10:18分很快就到啦,礼炮放起来,恭祝业主开工大吉!
IMG_1931.JPG
IMG_1939(1).JPG
回复 支持 反对

使用道具 举报

 楼主| 发表于 2016-12-24 14:08:23 | 显示全部楼层
开工第一锤,由我们肖姐亲自敲出来的痕迹,预示着美好装修生活的开始!
IMG_1934(1).JPG
IMG_1935(1).JPG
回复 支持 反对

使用道具 举报

 楼主| 发表于 2016-12-24 14:10:41 | 显示全部楼层
项目经理、设计师认真讲解配电箱移位的细节要求
IMG_1943(1).JPG
IMG_1944(1).JPG
回复 支持 反对

使用道具 举报

您需要登录后才可以回帖 登录 | 立即注册

本版积分规则

全国统一客服电话
0570-8028505

24x7小时免费咨询

  • 官方在线客服

    QQ客服:小西

    点击交谈

    QQ客服:良子

    点击交谈

    QQ客服:闵月

    点击交谈
  • 衢州市柯城区财富中心3号楼2楼

  • 衢州格堂装饰有限公司

  • 扫一扫关注官方微信

    获取一手特惠信息

快速回复 返回顶部 返回列表