• 手机版

    扫码体验手机版

  • 微信公众号

    扫码关注公众号

登录注册
游客您好
第三方账号登陆

[衢州] 【格堂&月亮湾雅12#】阳光静好

[复制链接]
发表于 2016-12-9 09:50:17 | 显示全部楼层 |阅读模式

格堂装饰为您全程记录装修全过程!

小区名称
月亮湾
房屋面积
户型结构
套房
装修风格
现代
装修方式
半包
装修造价
查看请联系客服万元
设计师
王辉
项目经理
余工
装修公司
格堂装饰
完工实景
完工实景
水电全景
水电全景
VR全景
VR全景
设计说明
更多信息
本帖最后由 格堂小马 于 2016-12-12 16:56 编辑


回复

使用道具 举报

 楼主| 发表于 2016-12-9 09:55:56 | 显示全部楼层



回复

使用道具 举报

 楼主| 发表于 2016-12-9 09:56:19 | 显示全部楼层



回复

使用道具 举报

 楼主| 发表于 2016-12-9 09:56:41 | 显示全部楼层
本帖最后由 格堂小马 于 2016-12-9 13:46 编辑


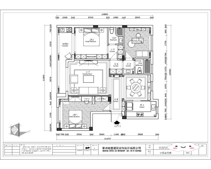
  平面布置图
   月亮湾雅12平.jpg
  原始结构图
   月亮湾雅12原.jpg
回复 支持 反对

使用道具 举报

 楼主| 发表于 2016-12-9 10:07:01 | 显示全部楼层

晴空万里,我们来开工啦啦啦啦
IMG_3378.JPG
回复 支持 反对

使用道具 举报

 楼主| 发表于 2016-12-9 10:19:26 | 显示全部楼层

电梯墙保护
DSC02150.JPG
一起动手
DSC02151.JPG
回复 支持 反对

使用道具 举报

 楼主| 发表于 2016-12-9 10:20:03 | 显示全部楼层

采光真好,好房子
DSC02154.JPG
DSC02155.JPG
回复 支持 反对

使用道具 举报

 楼主| 发表于 2016-12-9 10:21:15 | 显示全部楼层

开工横幅挂起来
DSC02156.JPG
煤气表防尘袋套好
DSC02158.JPG
门保护套起来
DSC02162.JPG
回复 支持 反对

使用道具 举报

 楼主| 发表于 2016-12-9 10:23:26 | 显示全部楼层

施工中搬运材料,不小心会磕碰到门,门保护起到一个保护作用
DSC02165.JPG
DSC02170.JPG
回复 支持 反对

使用道具 举报

 楼主| 发表于 2016-12-9 10:24:28 | 显示全部楼层

拆改放样
DSC02172.JPG
DSC02176.JPG
DSC02181.JPG
DSC02196.JPG
回复 支持 反对

使用道具 举报

您需要登录后才可以回帖 登录 | 立即注册

本版积分规则

全国统一客服电话
0570-8028505

24x7小时免费咨询

  • 官方在线客服

    QQ客服:小西

    点击交谈

    QQ客服:良子

    点击交谈

    QQ客服:闵月

    点击交谈
  • 衢州市柯城区财富中心3号楼2楼

  • 衢州格堂装饰有限公司

  • 扫一扫关注官方微信

    获取一手特惠信息

快速回复 返回顶部 返回列表