• 手机版

    扫码体验手机版

  • 微信公众号

    扫码关注公众号

登录注册
游客您好
第三方账号登陆

[衢州] 【格堂&枫丹白露13#】含蓄气质的体现

[复制链接]
发表于 2016-12-7 14:38:01 | 显示全部楼层 |阅读模式

格堂装饰为您全程记录装修全过程!

小区名称
枫丹白露
房屋面积
户型结构
复式
装修风格
中式
装修方式
半包
装修造价
查看请联系客服万元
设计师
王辉
项目经理
彭工
装修公司
格堂装饰
完工实景
完工实景
水电全景
水电全景
VR全景
VR全景
设计说明
更多信息
本帖最后由 格堂小马 于 2016-12-18 17:17 编辑


回复

使用道具 举报

 楼主| 发表于 2016-12-7 14:38:32 | 显示全部楼层



回复

使用道具 举报

 楼主| 发表于 2016-12-7 14:38:52 | 显示全部楼层
本帖最后由 格堂小马 于 2017-7-12 15:15 编辑

  客厅效果图
客厅效果.jpg

  餐厅效果图
   餐厅效果.jpg

  设计说明:新中式风格设计主要包括两方面的基本内容,一是中国传统风格文化意义在当前时代背景下的演绎;二是对中国当代文化充分理解基础上的当代设计。新中式风格不是纯粹的元素堆砌,而是通过对传统文化的认识,将现代元素和传统元素结合在一起,以现代人的审美需求来打造富有传统韵味的事物,让传统艺术在当今社会得到合适的体现。
回复 支持 反对

使用道具 举报

 楼主| 发表于 2016-12-7 14:39:16 | 显示全部楼层
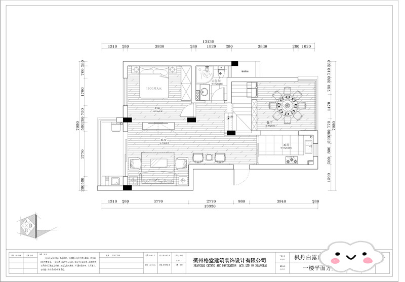
本帖最后由 格堂小马 于 2017-7-12 14:35 编辑


一楼平面布置图
   一楼平面.jpg
回复 支持 反对

使用道具 举报

 楼主| 发表于 2016-12-8 13:26:07 | 显示全部楼层

回复

使用道具 举报

 楼主| 发表于 2016-12-8 13:31:19 | 显示全部楼层

业主大人精心挑选了开工的好日子
411638550477859227.jpg
回复 支持 反对

使用道具 举报

 楼主| 发表于 2016-12-8 13:31:51 | 显示全部楼层

做好了开工准备
IMG_6831.JPG
IMG_6832.JPG
回复 支持 反对

使用道具 举报

 楼主| 发表于 2016-12-8 13:32:32 | 显示全部楼层

业主大人亲手摆放
IMG_6833.JPG
IMG_6834.JPG
回复 支持 反对

使用道具 举报

 楼主| 发表于 2016-12-8 13:35:48 | 显示全部楼层
本帖最后由 格堂小马 于 2016-12-8 14:00 编辑


啦啦啦开工大吉
IMG_6835.JPG

213232891700330010.jpg
回复 支持 反对

使用道具 举报

 楼主| 发表于 2016-12-8 13:36:59 | 显示全部楼层
本帖最后由 格堂小马 于 2016-12-8 14:04 编辑

业主大人敲响了开工锤
230513082909623219.jpg
333104773942547268.jpg
回复 支持 反对

使用道具 举报

您需要登录后才可以回帖 登录 | 立即注册

本版积分规则

全国统一客服电话
0570-8028505

24x7小时免费咨询

  • 官方在线客服

    QQ客服:小西

    点击交谈

    QQ客服:良子

    点击交谈

    QQ客服:闵月

    点击交谈
  • 衢州市柯城区财富中心3号楼2楼

  • 衢州格堂装饰有限公司

  • 扫一扫关注官方微信

    获取一手特惠信息

快速回复 返回顶部 返回列表