• 手机版

    扫码体验手机版

  • 微信公众号

    扫码关注公众号

登录注册
游客您好
第三方账号登陆

[衢州] 【格堂※阳光水岸13※】传承传统中式风格的精髓

[复制链接]
发表于 2016-12-4 08:44:35 | 显示全部楼层 |阅读模式

格堂装饰为您全程记录装修全过程!

小区名称
阳光水岸13
房屋面积
195㎡
户型结构
框架
装修风格
中式
装修方式
半包
装修造价
查看请联系客服万元
设计师
苏工
项目经理
余工
装修公司
格堂装饰
完工实景
完工实景
水电全景
水电全景
VR全景
VR全景
设计说明
更多信息
回复

使用道具 举报

 楼主| 发表于 2016-12-4 08:44:56 | 显示全部楼层
本帖最后由 格堂彬彬 于 2016-12-7 11:23 编辑

人可以改变环境,环境可以影响人,而设计则可以改变人和环境。
QQ图片20161207111757.jpg
回复 支持 反对

使用道具 举报

 楼主| 发表于 2016-12-4 08:45:19 | 显示全部楼层
本帖最后由 格堂彬彬 于 2016-12-7 11:25 编辑

原始结构图
阳光水岸13-1-601最终123-Model_看图王.jpg
回复 支持 反对

使用道具 举报

 楼主| 发表于 2016-12-4 08:45:38 | 显示全部楼层
本帖最后由 格堂彬彬 于 2016-12-7 11:25 编辑

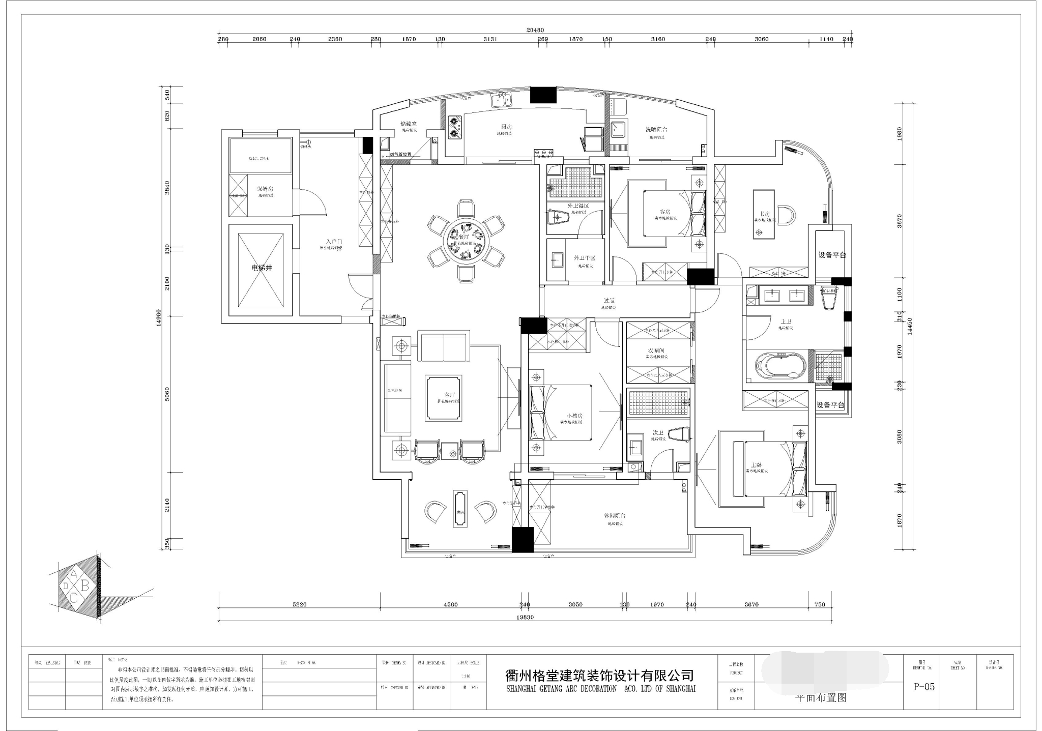
平面图
阳光水岸13-1-601最终123-Model11_看图王.jpg
回复 支持 反对

使用道具 举报

 楼主| 发表于 2016-12-4 08:46:02 | 显示全部楼层
.............
回复

使用道具 举报

 楼主| 发表于 2016-12-4 08:46:33 | 显示全部楼层
................
回复

使用道具 举报

 楼主| 发表于 2016-12-4 08:46:55 | 显示全部楼层
................
回复

使用道具 举报

 楼主| 发表于 2016-12-4 08:49:17 | 显示全部楼层
一大早来开工 客户还没到 爬楼梯上楼
IMG_4532_看图王.jpg
回复 支持 反对

使用道具 举报

 楼主| 发表于 2016-12-4 11:50:59 | 显示全部楼层
开工需要的工具搬上楼 与客户沟通
IMG20161203083422.jpg
IMG20161203083428.jpg
IMG20161203083436.jpg
IMG20161203083716.jpg
回复 支持 反对

使用道具 举报

 楼主| 发表于 2016-12-4 11:52:42 | 显示全部楼层
门套保护 煤气表保护 下水保护
IMG20161203085455.jpg
IMG20161203085516.jpg
IMG20161203085539.jpg

回复 支持 反对

使用道具 举报

您需要登录后才可以回帖 登录 | 立即注册

本版积分规则

全国统一客服电话
0570-8028505

24x7小时免费咨询

  • 官方在线客服

    QQ客服:小西

    点击交谈

    QQ客服:良子

    点击交谈

    QQ客服:闵月

    点击交谈
  • 衢州市柯城区财富中心3号楼2楼

  • 衢州格堂装饰有限公司

  • 扫一扫关注官方微信

    获取一手特惠信息

快速回复 返回顶部 返回列表