• 手机版

    扫码体验手机版

  • 微信公众号

    扫码关注公众号

登录注册
游客您好
第三方账号登陆

[衢州] 【格堂★月亮湾雅园2๑۩۩.. 】现代简约风

[复制链接]
发表于 2016-11-27 09:54:50 | 显示全部楼层 |阅读模式

格堂装饰为您全程记录装修全过程!

小区名称
月亮湾
房屋面积
122㎡
户型结构
套房
装修风格
现代
装修方式
半包
装修造价
查看请联系客服万元
设计师
毛工
项目经理
姜工
装修公司
格堂装饰
完工实景
完工实景
水电全景
水电全景
VR全景
VR全景
设计说明
更多信息
本帖最后由 格堂小诗 于 2016-11-27 14:21 编辑

设计说明:很多人把现代简约风格误认为是“简单+节约”,结果出现造型简陋、工艺简单的伪简约设计。其实现代简约风格非常讲究材料的质地和室内空间的通透哲学。一般室内墙地面及顶棚和家具陈设,乃至灯具器皿等均以简洁的造型、纯洁的质地、精细的工艺为其特征。打造更舒适的生活空间,多一些人性化的设计,做成温暖的家。


效果图:

月亮湾2 副本.jpg

回复

使用道具 举报

 楼主| 发表于 2016-11-27 09:55:27 | 显示全部楼层
本帖最后由 格堂小诗 于 2016-11-27 11:35 编辑

原始结构图:
月亮湾2布局1_副本.jpg

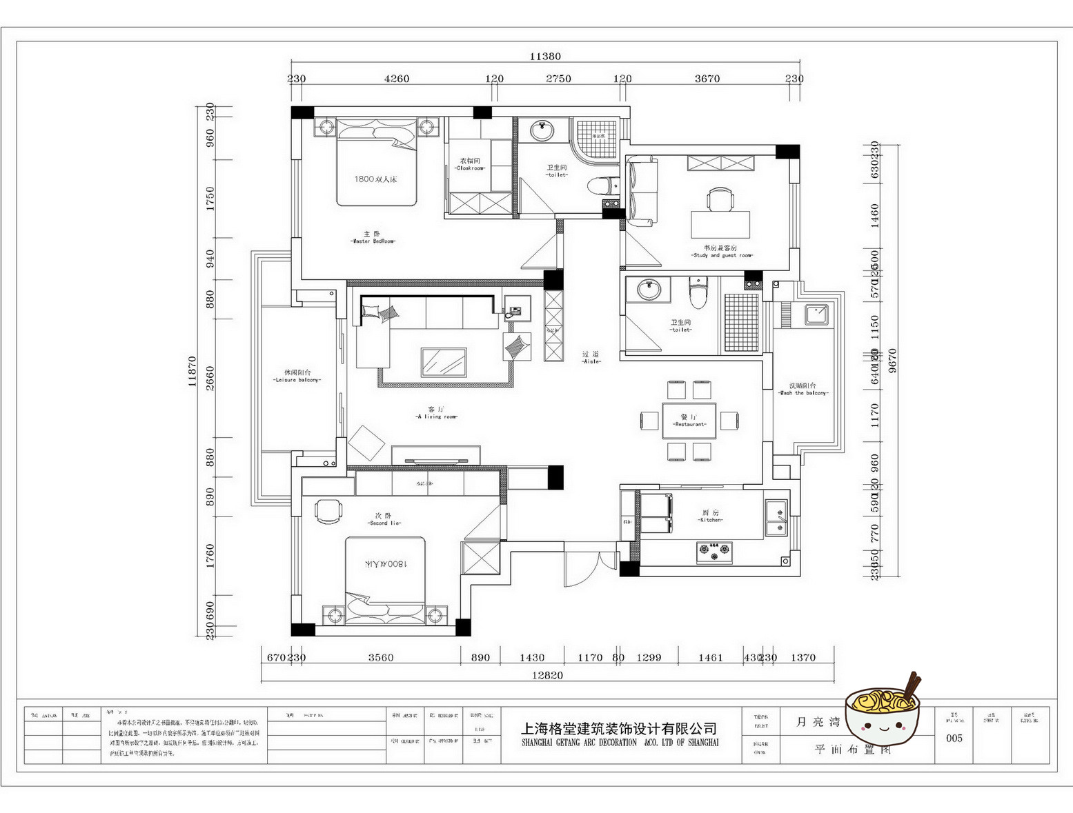
平面布置图:


月亮湾2_副本.jpg


回复 支持 反对

使用道具 举报

 楼主| 发表于 2016-11-27 09:56:04 | 显示全部楼层

回复

使用道具 举报

 楼主| 发表于 2016-11-27 09:56:34 | 显示全部楼层

回复

使用道具 举报

 楼主| 发表于 2016-11-27 09:56:51 | 显示全部楼层

回复

使用道具 举报

 楼主| 发表于 2016-11-27 09:58:35 | 显示全部楼层

回复

使用道具 举报

 楼主| 发表于 2016-11-27 09:59:49 | 显示全部楼层

回复

使用道具 举报

 楼主| 发表于 2016-11-27 13:17:10 | 显示全部楼层
大伙儿都到咯,准备开工


lADOijP5hM0FAM0DwA_960_1280.jpg

lADOijP5g80FAM0DwA_960_1280.jpg


回复 支持 反对

使用道具 举报

 楼主| 发表于 2016-11-27 13:17:51 | 显示全部楼层
项目经理把简便马桶摆放到位!


lADOijP5o80FAM0DwA_960_1280.jpg

lADOijP5os0FAM0DwA_960_1280.jpg
回复 支持 反对

使用道具 举报

 楼主| 发表于 2016-11-27 13:18:52 | 显示全部楼层
下水管道保护,以防施工中沙石掉入


lADOijP5xc0FAM0DwA_960_1280.jpg

lADOijP5xs0FAM0DwA_960_1280.jpg

lADOijP5yM0DwM0FAA_1280_960.jpg


回复 支持 反对

使用道具 举报

您需要登录后才可以回帖 登录 | 立即注册

本版积分规则

全国统一客服电话
0570-8028505

24x7小时免费咨询

  • 官方在线客服

    QQ客服:小西

    点击交谈

    QQ客服:良子

    点击交谈

    QQ客服:闵月

    点击交谈
  • 衢州市柯城区财富中心3号楼2楼

  • 衢州格堂装饰有限公司

  • 扫一扫关注官方微信

    获取一手特惠信息

快速回复 返回顶部 返回列表