• 手机版

    扫码体验手机版

  • 微信公众号

    扫码关注公众号

登录注册
游客您好
第三方账号登陆

[衢州] 【格堂★枫丹白露19๑۩۩.. 】追求华丽、高雅的古典风格

[复制链接]
发表于 2016-11-27 09:05:12 | 显示全部楼层 |阅读模式

格堂装饰为您全程记录装修全过程!

小区名称
枫丹白露
房屋面积
165㎡
户型结构
复式
装修风格
美式
装修方式
半包
装修造价
查看请联系客服万元
设计师
何工
项目经理
施工
装修公司
格堂装饰
完工实景
完工实景
水电全景
水电全景
VR全景
VR全景
设计说明
更多信息
本帖最后由 格堂小诗 于 2016-11-27 09:49 编辑

设计说明:

效果图:
11.jpg

1 (2).jpg


回复

使用道具 举报

 楼主| 发表于 2016-11-27 09:08:17 | 显示全部楼层
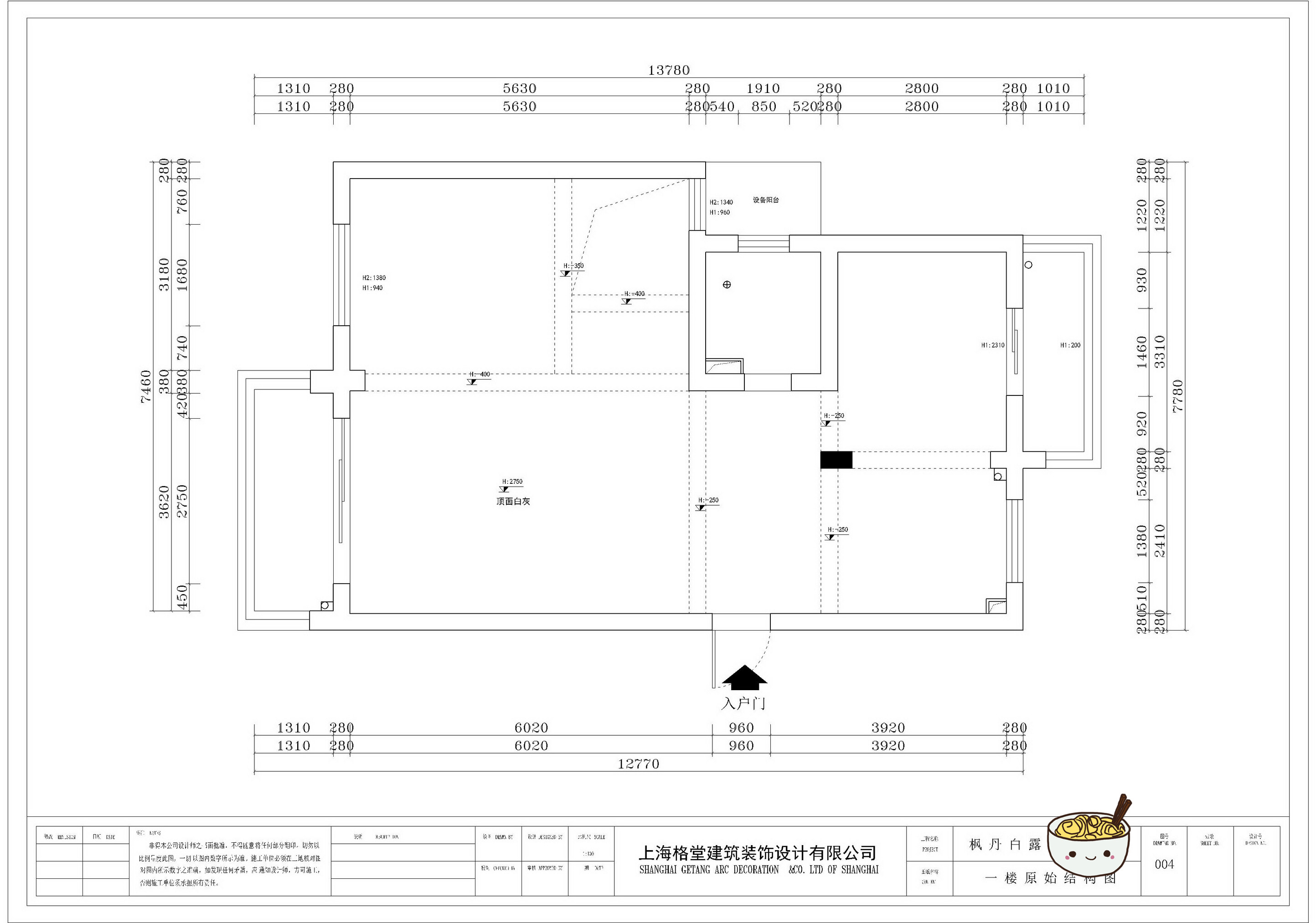
一楼原始结构图:
1_副本.jpg


一楼平面布置图:

2_副本.jpg

二楼原始结构图:

3_副本.jpg

二楼平面布置图:

4_副本.jpg



回复 支持 反对

使用道具 举报

 楼主| 发表于 2016-11-27 09:11:16 | 显示全部楼层

回复

使用道具 举报

 楼主| 发表于 2016-11-27 09:11:47 | 显示全部楼层

回复

使用道具 举报

 楼主| 发表于 2016-11-27 09:13:35 | 显示全部楼层

回复

使用道具 举报

 楼主| 发表于 2016-11-27 09:14:08 | 显示全部楼层

回复

使用道具 举报

 楼主| 发表于 2016-11-27 09:15:04 | 显示全部楼层

回复

使用道具 举报

 楼主| 发表于 2016-11-27 09:21:24 | 显示全部楼层

回复

使用道具 举报

 楼主| 发表于 2016-11-27 09:21:51 | 显示全部楼层

回复

使用道具 举报

 楼主| 发表于 2016-11-27 09:23:45 | 显示全部楼层

进门师傅就把门给保护好啦!防止后期搬运材料的磕碰哈!


lADOik-eUs0DIM0CWA_600_800.jpg


回复 支持 反对

使用道具 举报

您需要登录后才可以回帖 登录 | 立即注册

本版积分规则

全国统一客服电话
0570-8028505

24x7小时免费咨询

  • 官方在线客服

    QQ客服:小西

    点击交谈

    QQ客服:良子

    点击交谈

    QQ客服:闵月

    点击交谈
  • 衢州市柯城区财富中心3号楼2楼

  • 衢州格堂装饰有限公司

  • 扫一扫关注官方微信

    获取一手特惠信息

快速回复 返回顶部 返回列表