• 手机版

    扫码体验手机版

  • 微信公众号

    扫码关注公众号

登录注册
游客您好
第三方账号登陆

[衢州] 【格堂※金河湾7幢※】古典和优雅的韵味

[复制链接]
发表于 2016-11-22 09:12:42 | 显示全部楼层 |阅读模式

格堂装饰为您全程记录装修全过程!

小区名称
金河湾
房屋面积
户型结构
装修风格
中式
装修方式
半包
装修造价
查看请联系客服万元
设计师
王工
项目经理
施工
装修公司
格堂装饰
完工实景
完工实景
水电全景
水电全景
VR全景
VR全景
设计说明
更多信息
本帖最后由 格堂小徐 于 2016-11-24 13:15 编辑

设计说明:
在中国文化风靡全球的现今时代,中式元素与现代材质的巧妙兼柔,明清家具、窗棂、布艺床品相互辉映,再现了移步变景的精妙小品。中国风的构成主要体现在传统家具(多为明清家具为主)、装饰品及黑、红为主的装饰色彩上。室内多采用对称式的布局方式,格调高雅,造型简朴优美,色彩浓重而成熟。中国传统室内陈设包括字画、匾幅、挂屏、盆景、瓷器、古玩、屏风、博古架等,追求一种修身养性的生活境界。

效果图:
金河湾-副本.jpg
金河湾--副本.jpg
回复

使用道具 举报

 楼主| 发表于 2016-11-22 09:14:12 | 显示全部楼层
一楼原始结构图:
1.jpg

平面布置图:
2.jpg
回复 支持 反对

使用道具 举报

 楼主| 发表于 2016-11-22 09:14:46 | 显示全部楼层
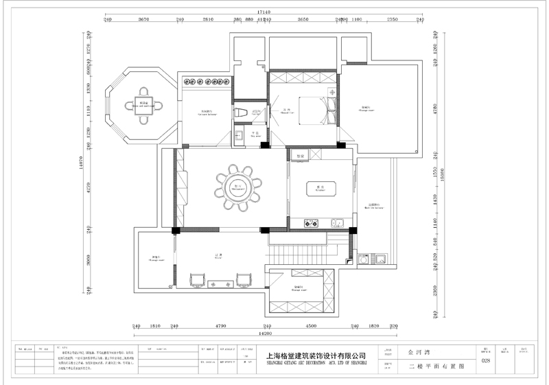
二楼原始结构图:
3.jpg


平面布置图:

金河湾-.jpg

回复 支持 反对

使用道具 举报

 楼主| 发表于 2016-11-22 09:15:19 | 显示全部楼层

回复

使用道具 举报

 楼主| 发表于 2016-11-22 09:15:26 | 显示全部楼层

回复

使用道具 举报

 楼主| 发表于 2016-11-22 09:15:33 | 显示全部楼层

回复

使用道具 举报

 楼主| 发表于 2016-11-22 09:15:41 | 显示全部楼层

回复

使用道具 举报

 楼主| 发表于 2016-11-22 09:16:09 | 显示全部楼层
11月17日,我们开工去啦!
施工正在量地面保护的尺寸
IMG_3472.jpg

回复 支持 反对

使用道具 举报

 楼主| 发表于 2016-11-22 09:17:06 | 显示全部楼层
先把门保护起来,防止后期磕碰到
IMG_3474_副本.jpg
IMG_3477.jpg
IMG_3478.jpg
回复 支持 反对

使用道具 举报

 楼主| 发表于 2016-11-22 09:17:31 | 显示全部楼层
煤气表也要保护起来哦
IMG_3473.jpg
回复 支持 反对

使用道具 举报

您需要登录后才可以回帖 登录 | 立即注册

本版积分规则

全国统一客服电话
0570-8028505

24x7小时免费咨询

  • 官方在线客服

    QQ客服:小西

    点击交谈

    QQ客服:良子

    点击交谈

    QQ客服:闵月

    点击交谈
  • 衢州市柯城区财富中心3号楼2楼

  • 衢州格堂装饰有限公司

  • 扫一扫关注官方微信

    获取一手特惠信息

快速回复 返回顶部 返回列表