• 手机版

    扫码体验手机版

  • 微信公众号

    扫码关注公众号

登录注册
游客您好
第三方账号登陆

[衢州] 【格堂&月亮湾沁园2#】贵气加大气而又不失自在与随意

[复制链接]
发表于 2016-11-19 19:05:32 | 显示全部楼层 |阅读模式

格堂装饰为您全程记录装修全过程!

小区名称
月亮湾沁园
房屋面积
140㎡
户型结构
复式
装修风格
简美
装修方式
半包
装修造价
查看请联系客服万元
设计师
何工
项目经理
施工
装修公司
格堂装饰
完工实景
完工实景
水电全景
水电全景
VR全景
VR全景
设计说明
更多信息
设计说明:美式风格来源于欧洲文化,其风格并不过分强调繁复的雕刻,以舒适和多功能为主,但同时也不失怀旧、浪漫的感觉。美式风格设计理念表现为追求华丽、高雅的古典风格。居室色彩主调为白色。花饰、丰富的木线变化、富丽的窗帘帷幄是西式传统室内装饰的固定模式,空间环境多表现出华美、富丽、浪漫的气氛。
回复

使用道具 举报

 楼主| 发表于 2016-11-19 19:05:48 | 显示全部楼层



回复

使用道具 举报

 楼主| 发表于 2016-11-19 19:06:17 | 显示全部楼层



回复

使用道具 举报

 楼主| 发表于 2016-11-19 19:07:49 | 显示全部楼层

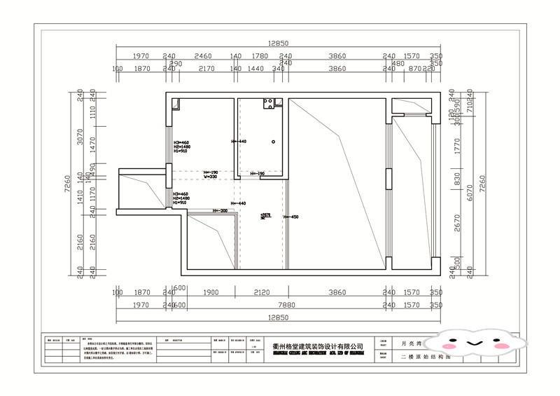
一楼原始结构图
月亮湾2-2-702原始1.jpg
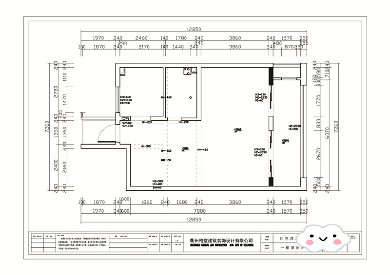
二楼原始结构图
二楼原始.jpg

回复 支持 反对

使用道具 举报

 楼主| 发表于 2016-11-19 19:08:39 | 显示全部楼层

一楼平面布置图
一楼平面.jpg
二楼平面布置图
二楼平面.jpg
回复 支持 反对

使用道具 举报

 楼主| 发表于 2016-11-19 19:10:00 | 显示全部楼层
本帖最后由 格堂小马 于 2016-11-27 14:10 编辑

  效果图
   2-2-702.jpg
回复 支持 反对

使用道具 举报

 楼主| 发表于 2016-11-19 19:13:17 | 显示全部楼层

开工的好日子
IMG_6099.JPG
回复 支持 反对

使用道具 举报

 楼主| 发表于 2016-11-19 19:14:00 | 显示全部楼层

准备开工咯
DSC08343.JPG
DSC08348.JPG
DSC08359.JPG
回复 支持 反对

使用道具 举报

 楼主| 发表于 2016-11-19 19:14:39 | 显示全部楼层

好喜庆的鞭炮呀
DSC08363.JPG
回复 支持 反对

使用道具 举报

 楼主| 发表于 2016-11-19 19:15:20 | 显示全部楼层

都保护起来吧
DSC08347.JPG
DSC08348.JPG
IMG_6046.JPG
回复 支持 反对

使用道具 举报

您需要登录后才可以回帖 登录 | 立即注册

本版积分规则

全国统一客服电话
0570-8028505

24x7小时免费咨询

  • 官方在线客服

    QQ客服:小西

    点击交谈

    QQ客服:良子

    点击交谈

    QQ客服:闵月

    点击交谈
  • 衢州市柯城区财富中心3号楼2楼

  • 衢州格堂装饰有限公司

  • 扫一扫关注官方微信

    获取一手特惠信息

快速回复 返回顶部 返回列表