• 手机版

    扫码体验手机版

  • 微信公众号

    扫码关注公众号

登录注册
游客您好
第三方账号登陆

[衢州] 【格堂&月亮湾雅园15#】自然田园享受,惬意美式乡村

[复制链接]
发表于 2016-11-18 18:45:08 | 显示全部楼层 |阅读模式

格堂装饰为您全程记录装修全过程!

小区名称
月亮湾雅园
房屋面积
136㎡
户型结构
套房
装修风格
简美
装修方式
装修造价
查看请联系客服万元
设计师
余工
项目经理
刘工
装修公司
格堂装饰
完工实景
完工实景
水电全景
水电全景
VR全景
VR全景
设计说明
更多信息
本帖最后由 格堂小马 于 2016-11-18 18:51 编辑



回复

使用道具 举报

 楼主| 发表于 2016-11-18 18:47:13 | 显示全部楼层



回复

使用道具 举报

 楼主| 发表于 2016-11-18 18:47:30 | 显示全部楼层



回复

使用道具 举报

 楼主| 发表于 2016-11-18 18:48:17 | 显示全部楼层



回复

使用道具 举报

 楼主| 发表于 2016-11-18 18:49:18 | 显示全部楼层

原始结构图
原始.jpg
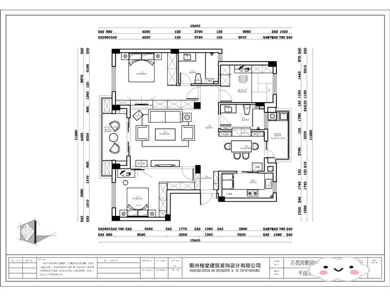
平面布置图
平面.jpg

回复 支持 反对

使用道具 举报

 楼主| 发表于 2016-11-18 18:50:11 | 显示全部楼层
本帖最后由 格堂小马 于 2016-11-18 18:51 编辑

客厅效果图
187038654281248744.jpg
餐厅效果图
808222171368988452.jpg   
  设计说明:简美风格中有一类是美式乡村风格,主要表现在家具分成栗色和白色两种,地中海家具也是类似,主要共同点在于更能激起人们对田园生活自由自在的向往,种种草浇浇花,无比惬意,本案中的餐厅设计别具一格,用卡座代替椅子,不仅使得美式乡村的主题气息更为突出浓郁,而且还增加了储藏空间来满足业主的置物需求,可谓一举两得!



回复 支持 反对

使用道具 举报

 楼主| 发表于 2016-11-25 14:46:48 | 显示全部楼层

啦啦啦,今天开工的好日子
411312965752441996.jpg
IMG_3695.JPG
回复 支持 反对

使用道具 举报

 楼主| 发表于 2016-11-25 14:48:41 | 显示全部楼层

开工准备
263905935092481589.jpg
IMG_4216.JPG
回复 支持 反对

使用道具 举报

 楼主| 发表于 2016-11-25 14:50:30 | 显示全部楼层

啦啦啦,开工大吉
IMG_4226.JPG
回复 支持 反对

使用道具 举报

 楼主| 发表于 2016-11-25 14:51:42 | 显示全部楼层
本帖最后由 格堂小马 于 2017-4-10 14:47 编辑

煤气表用防尘袋保护起来
326706324276259576.jpg
下水管保护起来,以免后期施工中落入灰尘及杂物
439190774481422179.jpg
534481619717767779.jpg
  简易马桶
IMG_4236.JPG


回复 支持 反对

使用道具 举报

您需要登录后才可以回帖 登录 | 立即注册

本版积分规则

全国统一客服电话
0570-8028505

24x7小时免费咨询

  • 官方在线客服

    QQ客服:小西

    点击交谈

    QQ客服:良子

    点击交谈

    QQ客服:闵月

    点击交谈
  • 衢州市柯城区财富中心3号楼2楼

  • 衢州格堂装饰有限公司

  • 扫一扫关注官方微信

    获取一手特惠信息

快速回复 返回顶部 返回列表