• 手机版

    扫码体验手机版

  • 微信公众号

    扫码关注公众号

登录注册
游客您好
第三方账号登陆

[衢州] 【格堂※月亮湾雅园7幢※】别有一番风味

[复制链接]
发表于 2016-11-18 15:41:13 | 显示全部楼层 |阅读模式

格堂装饰为您全程记录装修全过程!

小区名称
月亮湾
房屋面积
户型结构
装修风格
混搭
装修方式
半包
装修造价
查看请联系客服万元
设计师
王辉
项目经理
施工
装修公司
格堂装饰
完工实景
完工实景
水电全景
水电全景
VR全景
VR全景
设计说明
更多信息
本帖最后由 格堂小徐 于 2016-11-19 19:46 编辑

设计说明:
混搭风格糅合东西方美学精华元素,将古今文化内涵完美地结合于一体,充分利用空间形式与材料,创造出个性化的家居环境。混搭并不是简单地把各种风格的元素放在一起做加法,而是把它们有主有次地组合在一起。

效果图:
效果图01ok-1.jpg
效果图02okok-1.jpg

回复

使用道具 举报

 楼主| 发表于 2016-11-18 15:42:11 | 显示全部楼层
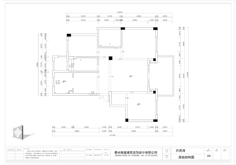
原始结构图:
月亮湾-布局1.jpg

平面布置图:
月亮湾-布局.jpg
回复 支持 反对

使用道具 举报

 楼主| 发表于 2016-11-18 15:42:23 | 显示全部楼层

回复

使用道具 举报

 楼主| 发表于 2016-11-18 15:42:30 | 显示全部楼层

回复

使用道具 举报

 楼主| 发表于 2016-11-18 15:42:37 | 显示全部楼层

回复

使用道具 举报

 楼主| 发表于 2016-11-18 15:42:45 | 显示全部楼层

回复

使用道具 举报

 楼主| 发表于 2016-11-18 15:44:47 | 显示全部楼层
本帖最后由 格堂小徐 于 2016-11-24 13:25 编辑

11月16日,我们开工去!
业主大人还没到,施工把地保的尺寸量了,要做地面保护的哦

IMG_4558.jpg
IMG_4559.jpg

回复 支持 反对

使用道具 举报

 楼主| 发表于 2016-11-18 15:45:48 | 显示全部楼层
业主大人一会儿就到了,施工先把门保护起来,防止后期磕碰到
IMG_4563.jpg
IMG_4564.jpg
IMG_4596.jpg
回复 支持 反对

使用道具 举报

 楼主| 发表于 2016-11-18 15:46:29 | 显示全部楼层
煤气表保护到位
IMG_4600.jpg
IMG_4601.jpg
IMG_4602.jpg
回复 支持 反对

使用道具 举报

 楼主| 发表于 2016-11-18 15:47:08 | 显示全部楼层
门槛保护也OK
IMG_4598.jpg
IMG_4599.jpg
IMG_4648.jpg

回复 支持 反对

使用道具 举报

您需要登录后才可以回帖 登录 | 立即注册

本版积分规则

全国统一客服电话
0570-8028505

24x7小时免费咨询

  • 官方在线客服

    QQ客服:小西

    点击交谈

    QQ客服:良子

    点击交谈

    QQ客服:闵月

    点击交谈
  • 衢州市柯城区财富中心3号楼2楼

  • 衢州格堂装饰有限公司

  • 扫一扫关注官方微信

    获取一手特惠信息

快速回复 返回顶部 返回列表