• 手机版

    扫码体验手机版

  • 微信公众号

    扫码关注公众号

登录注册
游客您好
第三方账号登陆

[衢州] 【格堂★中央公园9๑۩۩.. 】呈现迷人的性感魅力

[复制链接]
发表于 2016-11-18 12:14:06 | 显示全部楼层 |阅读模式

格堂装饰为您全程记录装修全过程!

小区名称
中央公园
房屋面积
103㎡
户型结构
套房
装修风格
现代
装修方式
半包
装修造价
查看请联系客服万元
设计师
王工
项目经理
姜工
装修公司
格堂装饰
完工实景
完工实景
水电全景
水电全景
VR全景
VR全景
设计说明
更多信息
本帖最后由 格堂小诗 于 2016-11-19 09:03 编辑

设计说明:现代简约的设计,它是一种更高层次的创作境界。在考虑其设计的时候,它强调的是一种舒适与实用,比较注重于追求材料、技术、空间的表现深度与精确。它的外形简洁,功能强,强调室内空间形态和屋捡的单一性以及抽象性。所以往往我们看到的现代简约风格都是非常简洁、大气、自然。

效果图:

中央公园效果01ok.jpg

回复

使用道具 举报

 楼主| 发表于 2016-11-18 12:15:01 | 显示全部楼层
本帖最后由 格堂小诗 于 2016-11-19 09:04 编辑

原始结构图:
中央公园9施工-Model_副本.jpg

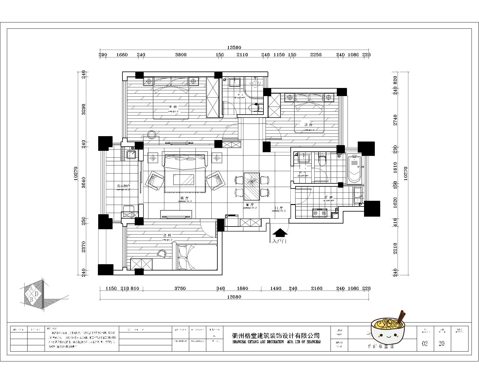
平面布置图:

中央公园9施工1-Model_副本.jpg

回复 支持 反对

使用道具 举报

 楼主| 发表于 2016-11-18 12:17:17 | 显示全部楼层

回复

使用道具 举报

 楼主| 发表于 2016-11-18 12:19:30 | 显示全部楼层

回复

使用道具 举报

 楼主| 发表于 2016-11-18 12:19:52 | 显示全部楼层

回复

使用道具 举报

 楼主| 发表于 2016-11-18 12:20:36 | 显示全部楼层

回复

使用道具 举报

 楼主| 发表于 2016-11-18 12:21:03 | 显示全部楼层

回复

使用道具 举报

 楼主| 发表于 2016-11-18 12:21:30 | 显示全部楼层

回复

使用道具 举报

 楼主| 发表于 2016-11-18 12:21:52 | 显示全部楼层

回复

使用道具 举报

 楼主| 发表于 2016-11-18 12:23:46 | 显示全部楼层
本帖最后由 格堂小诗 于 2016-11-18 12:31 编辑

项目经理把门保护起来,防止后期搬运材料的磕碰!


lADOf3zmF80MwM0JkA_2448_3264.jpg
回复 支持 反对

使用道具 举报

您需要登录后才可以回帖 登录 | 立即注册

本版积分规则

全国统一客服电话
0570-8028505

24x7小时免费咨询

  • 官方在线客服

    QQ客服:小西

    点击交谈

    QQ客服:良子

    点击交谈

    QQ客服:闵月

    点击交谈
  • 衢州市柯城区财富中心3号楼2楼

  • 衢州格堂装饰有限公司

  • 扫一扫关注官方微信

    获取一手特惠信息

快速回复 返回顶部 返回列表