• 手机版

    扫码体验手机版

  • 微信公众号

    扫码关注公众号

登录注册
游客您好
第三方账号登陆

[衢州] 【格堂※月亮湾雅园1幢※】Free,自然的田园

[复制链接]
发表于 2016-11-18 10:30:51 | 显示全部楼层 |阅读模式

格堂装饰为您全程记录装修全过程!

小区名称
月亮湾
房屋面积
140㎡
户型结构
装修风格
田园
装修方式
半包
装修造价
查看请联系客服万元
设计师
何工
项目经理
施工
装修公司
格堂装饰
完工实景
完工实景
水电全景
水电全景
VR全景
VR全景
设计说明
更多信息
本帖最后由 格堂小徐 于 2016-11-19 16:34 编辑

设计说明:
设计说明:本案推崇自然、结合自然,在室内环境中力求表现悠闲、舒畅、自然的田园生活情趣,也常运用天然木、竹等材质质朴的纹理,并巧妙设置室内绿化,创造自然、简朴、高雅的氛围。

效果图:
fweffefefe.jpg
回复

使用道具 举报

 楼主| 发表于 2016-11-18 10:33:41 | 显示全部楼层
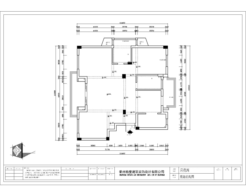
原始结构图:

837099724549659573.jpg

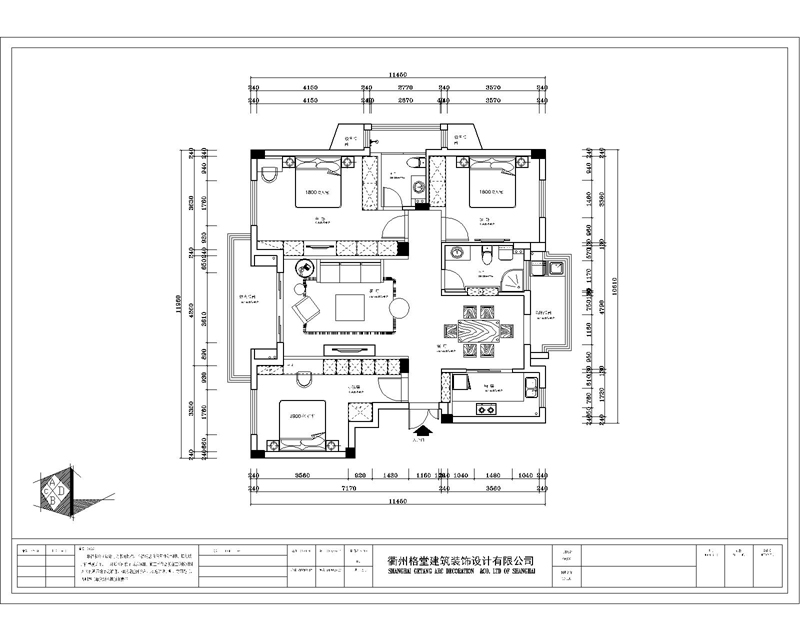
平面布置图:
747361408252195183.jpg
回复 支持 反对

使用道具 举报

 楼主| 发表于 2016-11-18 10:36:37 | 显示全部楼层

回复

使用道具 举报

 楼主| 发表于 2016-11-18 10:36:44 | 显示全部楼层

回复

使用道具 举报

 楼主| 发表于 2016-11-18 10:36:51 | 显示全部楼层

回复

使用道具 举报

 楼主| 发表于 2016-11-18 10:36:59 | 显示全部楼层

回复

使用道具 举报

 楼主| 发表于 2016-11-18 10:38:07 | 显示全部楼层
先要把门套保护起来哦,防止后期磕碰到
IMG_6442.jpg
IMG_6444.jpg
IMG_6445.jpg
回复 支持 反对

使用道具 举报

 楼主| 发表于 2016-11-18 10:38:31 | 显示全部楼层
煤气表也要保护
IMG_6458.jpg
IMG_6459.jpg
回复 支持 反对

使用道具 举报

 楼主| 发表于 2016-11-18 10:38:54 | 显示全部楼层
水管口同样也要保护
IMG_6464.jpg
IMG_6463.jpg
IMG_6465.jpg
回复 支持 反对

使用道具 举报

 楼主| 发表于 2016-11-18 10:39:12 | 显示全部楼层
门槛保护也到位咯
IMG_6466.jpg
IMG_6467.jpg
IMG_6468.jpg
回复 支持 反对

使用道具 举报

您需要登录后才可以回帖 登录 | 立即注册

本版积分规则

全国统一客服电话
0570-8028505

24x7小时免费咨询

  • 官方在线客服

    QQ客服:小西

    点击交谈

    QQ客服:良子

    点击交谈

    QQ客服:闵月

    点击交谈
  • 衢州市柯城区财富中心3号楼2楼

  • 衢州格堂装饰有限公司

  • 扫一扫关注官方微信

    获取一手特惠信息

快速回复 返回顶部 返回列表