• 手机版

    扫码体验手机版

  • 微信公众号

    扫码关注公众号

登录注册
游客您好
第三方账号登陆

[衢州] 【格堂★公园三号15๑۩۩.. 】简洁、实用的个性化空间

[复制链接]
发表于 2016-10-11 10:45:39 | 显示全部楼层 |阅读模式

格堂装饰为您全程记录装修全过程!

小区名称
公园三号
房屋面积
160㎡
户型结构
复式
装修风格
现代
装修方式
半包
装修造价
查看请联系客服万元
设计师
王辉
项目经理
徐工
装修公司
格堂装饰
完工实景
完工实景
水电全景
水电全景
VR全景
VR全景
设计说明
更多信息
本帖最后由 格堂小诗 于 2016-10-12 14:41 编辑

设计说明:现代是种简约但并不简单的装饰风格。本案定位现代风格利用大小色块的组合和地域性后期配饰的融入为业主创造出一个轻松自由的家居环境。灰色调和黄色调的融合更好的提升了空间的质感和观感,使整个房子显得稳重、大气又不失品位。


一楼原始结构图:

公园三号15-Model_副本.jpg


一楼平面布置图:
公园三号15Model_副本.jpg

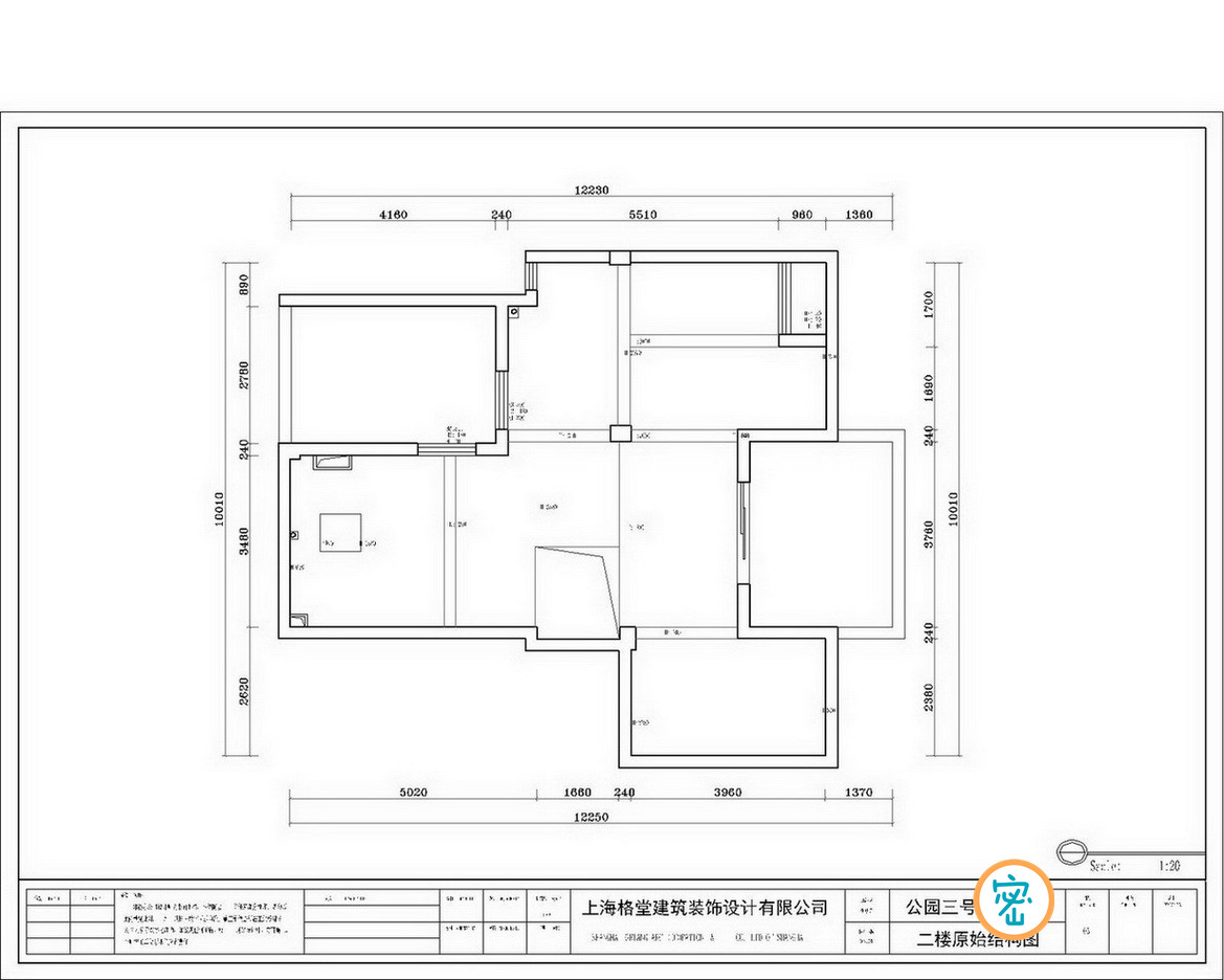
二楼原始结构图:

公园三号15_副本.jpg

二楼平面布置图:

公园三号Model_副本.jpg
回复

使用道具 举报

 楼主| 发表于 2016-10-11 10:48:28 | 显示全部楼层
本帖最后由 格堂小诗 于 2016-10-11 10:57 编辑

一楼效果图:
公园三号02ok水印.jpg


二楼效果图:

公园三号01ok水印.jpg


回复 支持 反对

使用道具 举报

 楼主| 发表于 2016-10-11 10:48:54 | 显示全部楼层

回复

使用道具 举报

 楼主| 发表于 2016-10-11 10:49:13 | 显示全部楼层

回复

使用道具 举报

 楼主| 发表于 2016-10-11 10:50:47 | 显示全部楼层

回复

使用道具 举报

 楼主| 发表于 2016-10-11 10:52:01 | 显示全部楼层

回复

使用道具 举报

 楼主| 发表于 2016-10-11 10:53:15 | 显示全部楼层

回复

使用道具 举报

 楼主| 发表于 2016-10-11 10:53:31 | 显示全部楼层

回复

使用道具 举报

 楼主| 发表于 2016-10-11 10:54:11 | 显示全部楼层

回复

使用道具 举报

 楼主| 发表于 2016-10-12 14:43:15 | 显示全部楼层

秋高气爽,适合开工的好日子

DSC09810.JPG

DSC09812.JPG

DSC09814.JPG


回复 支持 反对

使用道具 举报

您需要登录后才可以回帖 登录 | 立即注册

本版积分规则

全国统一客服电话
0570-8028505

24x7小时免费咨询

  • 官方在线客服

    QQ客服:小西

    点击交谈

    QQ客服:良子

    点击交谈

    QQ客服:闵月

    点击交谈
  • 衢州市柯城区财富中心3号楼2楼

  • 衢州格堂装饰有限公司

  • 扫一扫关注官方微信

    获取一手特惠信息

快速回复 返回顶部 返回列表