• 手机版

    扫码体验手机版

  • 微信公众号

    扫码关注公众号

登录注册
游客您好
第三方账号登陆

[衢州] 【格堂‖月亮湾沁园7#】浪漫精致的简欧生活

[复制链接]
发表于 2016-10-5 11:51:28 | 显示全部楼层 |阅读模式

格堂装饰为您全程记录装修全过程!

小区名称
月亮湾沁园
房屋面积
140㎡
户型结构
3室2厅2卫
装修风格
简欧
装修方式
半包
装修造价
查看请联系客服万元
设计师
王工
项目经理
施工
装修公司
格堂装饰
完工实景
完工实景
水电全景
水电全景
VR全景
VR全景
设计说明
更多信息
本帖最后由 格堂小许 于 2016-10-14 15:41 编辑

——————————    设计说明    ——————————


设计上将古典欧式进行简化创造

结合都市元素带来充满活力的现代简欧家居

新与旧、低调与奢华、优雅与随意的有机结合

碰撞出精彩的设计火花

恰到好处地提升空间的现代设计感

各个细节凸显独特的魅力,一直蔓延到整体

赋予空间更多的雅致与奢美


效果图▼▼▼

133600612993326282.jpg

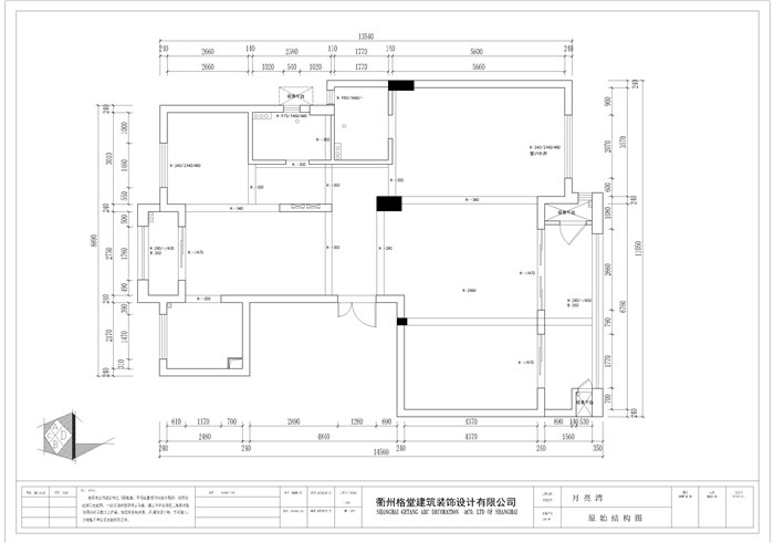
原始结构图▼▼▼

月亮湾7哈.jpg   

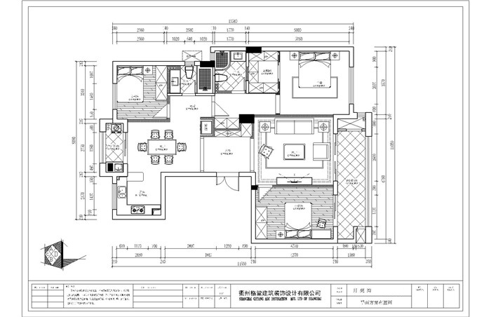
平面布置图▼▼▼

月亮湾7.jpg
回复

使用道具 举报

 楼主| 发表于 2016-10-5 11:52:22 | 显示全部楼层
后期搭配占楼:
094110ukt4tklmtutf1kf1.jpg
回复 支持 反对

使用道具 举报

 楼主| 发表于 2016-10-5 11:52:56 | 显示全部楼层
后期搭配占楼:
094110ukt4tklmtutf1kf1.jpg
回复 支持 反对

使用道具 举报

 楼主| 发表于 2016-10-5 11:53:12 | 显示全部楼层
后期搭配占楼:
094110ukt4tklmtutf1kf1.jpg
回复 支持 反对

使用道具 举报

 楼主| 发表于 2016-10-5 11:55:25 | 显示全部楼层
10月5日,国庆里适合开工的好日子,天气特别晴朗!我们月亮湾的业主家开工啦! IMG_6339.JPG

回复 支持 反对

使用道具 举报

 楼主| 发表于 2016-10-5 11:57:46 | 显示全部楼层
大门、煤气表、下水管口保护到位!
IMG_6338.JPG
IMG_6355.JPG
IMG_6356.JPG
回复 支持 反对

使用道具 举报

 楼主| 发表于 2016-10-5 12:00:04 | 显示全部楼层
我们的项目经理、项目总监还有设计师王工,都非常的认真负责,所有准备工作都提前做好了
IMG_6329.JPG
IMG_6328.JPG
回复 支持 反对

使用道具 举报

 楼主| 发表于 2016-10-5 12:18:50 | 显示全部楼层
门铃的线路、配电箱的保护盖全都拆下来交由业主带回,装修后期的时候再安装回去
IMG_6335.JPG
IMG_6332.JPG
回复 支持 反对

使用道具 举报

 楼主| 发表于 2016-10-5 12:20:31 | 显示全部楼层
我们的设计师王工认真和业主确认一些细节上的装修需求
IMG_6333.JPG
IMG_6330.JPG
回复 支持 反对

使用道具 举报

 楼主| 发表于 2016-10-5 12:22:41 | 显示全部楼层
王工一路拿着图纸,和项目经理施工认真进行水电放样,交代细节尺寸
IMG_6331.JPG
IMG_6340.JPG
IMG_6348.JPG
回复 支持 反对

使用道具 举报

您需要登录后才可以回帖 登录 | 立即注册

本版积分规则

全国统一客服电话
0570-8028505

24x7小时免费咨询

  • 官方在线客服

    QQ客服:小西

    点击交谈

    QQ客服:良子

    点击交谈

    QQ客服:闵月

    点击交谈
  • 衢州市柯城区财富中心3号楼2楼

  • 衢州格堂装饰有限公司

  • 扫一扫关注官方微信

    获取一手特惠信息

快速回复 返回顶部 返回列表