• 手机版

    扫码体验手机版

  • 微信公众号

    扫码关注公众号

登录注册
游客您好
第三方账号登陆

[衢州] 【格堂※金河湾8幢※】低调奢华有内涵

[复制链接]
发表于 2016-9-6 18:36:35 | 显示全部楼层 |阅读模式

格堂装饰为您全程记录装修全过程!

小区名称
金河湾
房屋面积
288㎡
户型结构
框架
装修风格
欧式
装修方式
半包
装修造价
查看请联系客服万元
设计师
毛工
项目经理
刘工
装修公司
格堂装饰
完工实景
完工实景
水电全景
水电全景
VR全景
VR全景
设计说明
更多信息
本帖最后由 格堂小徐 于 2016-9-11 12:52 编辑

效果图:
金河湾888-1111副本.jpg
111111111.jpg
hhhhhhj.jpg

回复

使用道具 举报

 楼主| 发表于 2016-9-6 18:36:48 | 显示全部楼层
本帖最后由 格堂小徐 于 2016-9-10 10:42 编辑

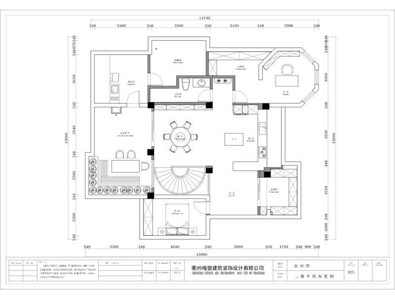
一楼:平面布置图:
一楼施工图.jpg

二楼:
平面布置图:
二楼施工图.jpg


回复 支持 反对

使用道具 举报

 楼主| 发表于 2016-9-6 18:37:29 | 显示全部楼层
本帖最后由 格堂小徐 于 2016-9-10 10:42 编辑

回复

使用道具 举报

 楼主| 发表于 2016-9-6 18:38:10 | 显示全部楼层

回复

使用道具 举报

 楼主| 发表于 2016-9-6 18:38:18 | 显示全部楼层

回复

使用道具 举报

 楼主| 发表于 2016-9-6 18:40:05 | 显示全部楼层
9月4日,业主大人挑好的日子,我们开工去吧!刘工来的比较早,正在群里发红包

IMG_4802.jpg
IMG_4803.jpg

回复 支持 反对

使用道具 举报

 楼主| 发表于 2016-9-6 18:44:08 | 显示全部楼层
开工开工,先把门保护起来,防止后期磕碰到!
IMG_4804.jpg
IMG_4809.jpg
IMG_4812.jpg
IMG_4818.jpg
回复 支持 反对

使用道具 举报

 楼主| 发表于 2016-9-6 18:44:52 | 显示全部楼层
煤气表和管道口也要保护起来哦!
IMG_4819.jpg
IMG_4820.jpg
回复 支持 反对

使用道具 举报

 楼主| 发表于 2016-9-9 19:47:20 | 显示全部楼层
开工横幅赶紧挂起来
IMG_4821.jpg
IMG_4822.jpg
回复 支持 反对

使用道具 举报

 楼主| 发表于 2016-9-9 19:48:43 | 显示全部楼层
本帖最后由 格堂小徐 于 2016-9-9 19:50 编辑

早上8:00,吉时到啦,放礼花咯!
IMG_4825_副本.jpg
IMG_4903.jpg
回复 支持 反对

使用道具 举报

您需要登录后才可以回帖 登录 | 立即注册

本版积分规则

全国统一客服电话
0570-8028505

24x7小时免费咨询

  • 官方在线客服

    QQ客服:小西

    点击交谈

    QQ客服:良子

    点击交谈

    QQ客服:闵月

    点击交谈
  • 衢州市柯城区财富中心3号楼2楼

  • 衢州格堂装饰有限公司

  • 扫一扫关注官方微信

    获取一手特惠信息

快速回复 返回顶部 返回列表