• 手机版

    扫码体验手机版

  • 微信公众号

    扫码关注公众号

登录注册
游客您好
第三方账号登陆

[衢州] 【格堂‖白云小区43#】充满格调的简美主义空间

[复制链接]
发表于 2016-8-29 09:26:51 | 显示全部楼层 |阅读模式

格堂装饰为您全程记录装修全过程!

小区名称
白云小区
房屋面积
108㎡
户型结构
3室2厅2卫
装修风格
简美
装修方式
半包
装修造价
查看请联系客服万元
设计师
王工
项目经理
刘工
装修公司
格堂装饰
完工实景
完工实景
水电全景
水电全景
VR全景
VR全景
设计说明
更多信息
本帖最后由 格堂小许 于 2016-8-30 16:43 编辑

【设计说明】本案采用简美风格设计,用极简的手法打造精致细腻、自由浪漫的空间格调,强调简洁、舒适、优雅的线条,呈现出美式休闲自然的生活气息。

效果图
格堂 王新乾 客餐厅 大图 白云小区43-1002.jpg
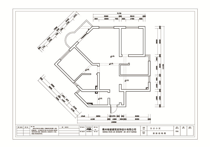
原始结构图
1.jpg
平面布置图
2.jpg
回复

使用道具 举报

 楼主| 发表于 2016-8-29 09:41:13 | 显示全部楼层
后期搭配占楼:
132056us7276z667ev63ty.jpg
回复 支持 反对

使用道具 举报

 楼主| 发表于 2016-8-29 09:41:34 | 显示全部楼层
后期搭配占楼:
132056us7276z667ev63ty.jpg
回复 支持 反对

使用道具 举报

 楼主| 发表于 2016-8-29 09:41:52 | 显示全部楼层
后期搭配占楼:
132056us7276z667ev63ty.jpg
回复 支持 反对

使用道具 举报

 楼主| 发表于 2016-8-29 09:52:35 | 显示全部楼层
8月28日,开工的好日子!白云小区的业主家开工啦!大门保护完美
DSC05026.JPG
DSC05027.JPG
回复 支持 反对

使用道具 举报

 楼主| 发表于 2016-8-29 09:57:35 | 显示全部楼层
我们的项目经理刘工,检测工具准备充分,一眨眼功夫就拿出了空鼓锤,认真检查房间空鼓情况
DSC05030.JPG DSC05047.JPG
DSC05036.JPG

回复 支持 反对

使用道具 举报

 楼主| 发表于 2016-8-29 10:12:26 | 显示全部楼层
本帖最后由 格堂小许 于 2016-8-29 10:15 编辑

所有空鼓的地方全部用粉笔标注仔细,后期需要进行修补哦
DSC05072.JPG DSC05073.JPG
DSC05067.JPG
DSC05075.JPG

回复 支持 反对

使用道具 举报

 楼主| 发表于 2016-8-29 10:21:47 | 显示全部楼层
我们的美男设计师王工,认真查看设计图纸,和敲墙师傅做好细节确认 DSC05045.JPG
DSC05037.JPG
DSC05057.JPG

回复 支持 反对

使用道具 举报

 楼主| 发表于 2016-8-29 10:24:00 | 显示全部楼层
要敲墙的房间仔细做好拆除放样,一个大写的拆字标注好,方便师傅后期跟进敲墙
DSC05056.JPG
DSC05058.JPG
DSC05060.JPG
DSC05062.JPG
DSC05077.JPG
回复 支持 反对

使用道具 举报

 楼主| 发表于 2016-8-29 10:28:39 | 显示全部楼层
本帖最后由 格堂小许 于 2016-8-29 10:30 编辑

吉时到,礼炮放起来!现在开工也追求环保啦!满地落英缤纷还挺漂亮的
DSC05081.JPG
DSC05091.JPG
DSC05089.JPG
回复 支持 反对

使用道具 举报

您需要登录后才可以回帖 登录 | 立即注册

本版积分规则

全国统一客服电话
0570-8028505

24x7小时免费咨询

  • 官方在线客服

    QQ客服:小西

    点击交谈

    QQ客服:良子

    点击交谈

    QQ客服:闵月

    点击交谈
  • 衢州市柯城区财富中心3号楼2楼

  • 衢州格堂装饰有限公司

  • 扫一扫关注官方微信

    获取一手特惠信息

快速回复 返回顶部 返回列表