• 手机版

    扫码体验手机版

  • 微信公众号

    扫码关注公众号

登录注册
游客您好
第三方账号登陆

[衢州] 【选装修公司的标准,你们都了解吗?】第106期工地巡检

[复制链接]
发表于 2016-8-27 13:58:56 | 显示全部楼层
本帖最后由 格堂小马 于 2016-8-27 13:59 编辑

  一楼效果图   一效果.jpg

  二楼效果图
二效.jpg
回复 支持 反对

使用道具 举报

发表于 2016-8-27 14:01:05 | 显示全部楼层

  一楼平面布置图
   一平.jpg
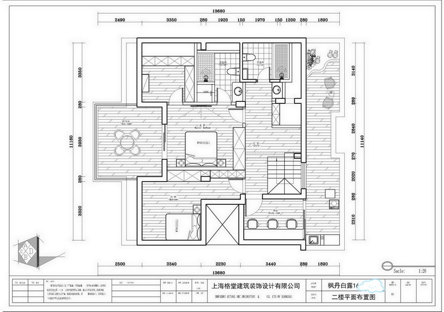
二楼平面布置图
   二平.jpg
回复 支持 反对

使用道具 举报

发表于 2016-8-27 14:08:11 | 显示全部楼层
本帖最后由 格堂小马 于 2016-8-27 14:26 编辑

巡检组认真巡检中
DSC04450.JPG


回复 支持 反对

使用道具 举报

发表于 2016-8-27 14:11:16 | 显示全部楼层

卫生间检测墙面空鼓
DSC04445.JPG
DSC04529.JPG
回复 支持 反对

使用道具 举报

发表于 2016-8-27 14:13:59 | 显示全部楼层
本帖最后由 格堂小马 于 2016-8-27 14:16 编辑

下雨天会漏水进来,需重新处理
    DSC04461.JPG
DSC04463.JPG
DSC04468.JPG



回复 支持 反对

使用道具 举报

发表于 2016-8-27 14:20:02 | 显示全部楼层
本帖最后由 格堂小马 于 2016-8-27 14:27 编辑

卫生间干区地面没保护,巡检组勒令施工员及时保护起来
DSC04475.JPG
DSC04477.JPG

回复 支持 反对

使用道具 举报

发表于 2016-8-27 14:26:21 | 显示全部楼层

楼梯临时护栏到位
DSC04501.JPG
DSC04498.JPG
回复 支持 反对

使用道具 举报

发表于 2016-8-27 14:28:18 | 显示全部楼层

空调出风口保护到位
DSC04497.JPG
回复 支持 反对

使用道具 举报

发表于 2016-8-27 14:32:00 | 显示全部楼层

卫生间检测墙砖空鼓
DSC04444.JPG
DSC04452.JPG
回复 支持 反对

使用道具 举报

发表于 2016-8-27 14:34:44 | 显示全部楼层

水电标识到位
DSC04477.JPG
回复 支持 反对

使用道具 举报

您需要登录后才可以回帖 登录 | 立即注册

本版积分规则

全国统一客服电话
0570-8028505

24x7小时免费咨询

  • 官方在线客服

    QQ客服:小西

    点击交谈

    QQ客服:良子

    点击交谈

    QQ客服:闵月

    点击交谈
  • 衢州市柯城区财富中心3号楼2楼

  • 衢州格堂装饰有限公司

  • 扫一扫关注官方微信

    获取一手特惠信息

快速回复 返回顶部 返回列表