• 手机版

    扫码体验手机版

  • 微信公众号

    扫码关注公众号

登录注册
游客您好
第三方账号登陆

[衢州] 【格堂★枫丹白露22-1๑۩۩.. 】追求时尚与潮流

[复制链接]
发表于 2016-8-13 09:42:41 | 显示全部楼层 |阅读模式

格堂装饰为您全程记录装修全过程!

小区名称
枫丹白露
房屋面积
95㎡
户型结构
套房
装修风格
现代
装修方式
半包
装修造价
查看请联系客服万元
设计师
翁工
项目经理
施工
装修公司
格堂装饰
完工实景
完工实景
水电全景
水电全景
VR全景
VR全景
设计说明
更多信息
本帖最后由 格堂小诗 于 2016-8-13 11:42 编辑

设计说明:本案是两位父母为儿子准备的婚房,业主一家三口特喜欢极简,所以本案选用了现代简约风。简约并不是缺乏设计要素,它是一种更高层次的创作境界。室内空间开敞、内外通透,在空间平面设计中追求不受承重墙限制的自由,现代简约风格饰品是所有家装风格中最不拘一格的一个。一些线条简单,设计独特甚至是极富创意和个性的饰品都可以成为现代简约风格家装中的一员。

效果图:


客餐厅_副本副本.jpg
回复

使用道具 举报

 楼主| 发表于 2016-8-13 09:47:01 | 显示全部楼层
本帖最后由 格堂小诗 于 2016-8-13 11:17 编辑

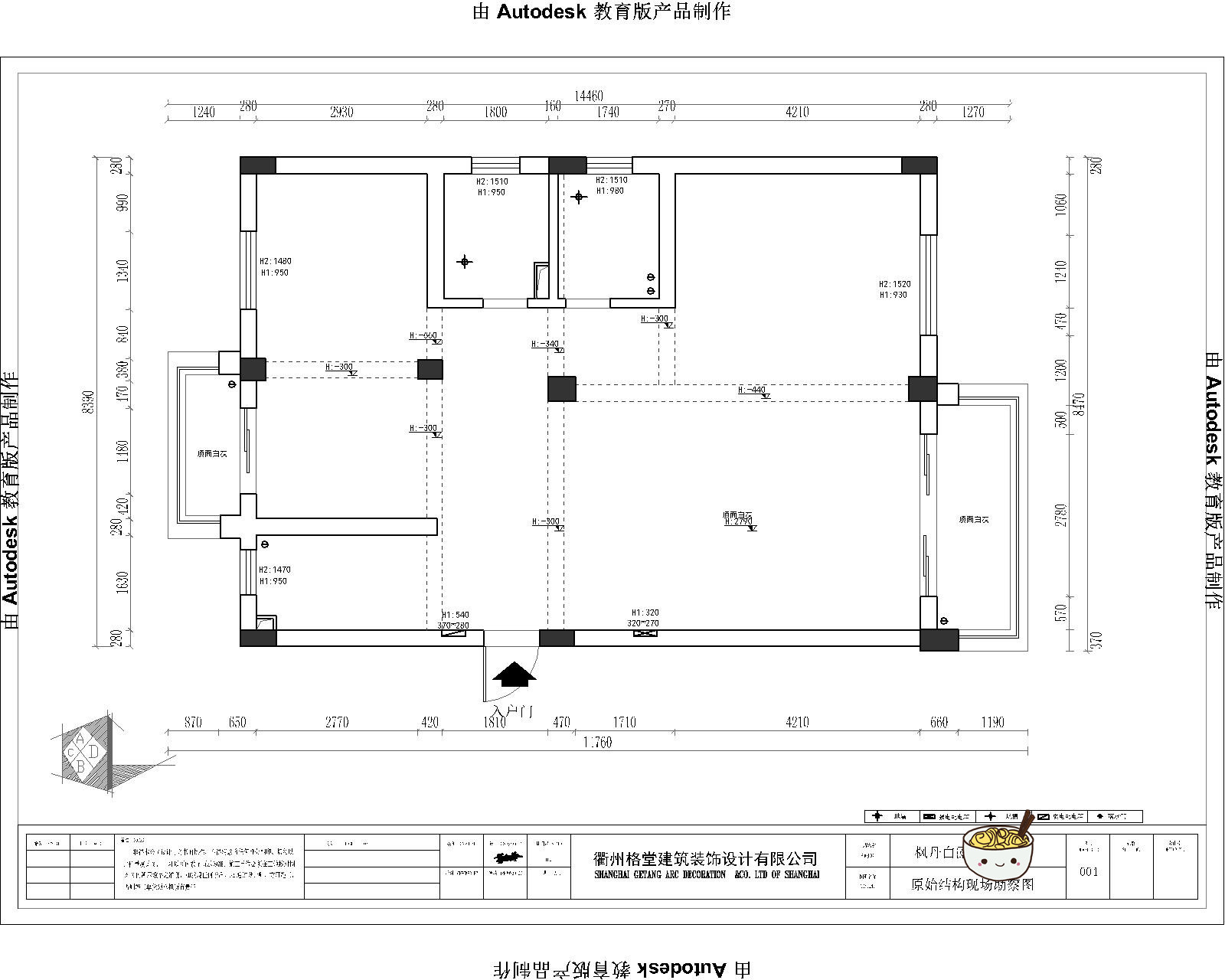
原始结构图:

框架图_副本.jpg

平面布置图:


平面图_副本.jpg


回复 支持 反对

使用道具 举报

 楼主| 发表于 2016-8-13 09:47:28 | 显示全部楼层

回复

使用道具 举报

 楼主| 发表于 2016-8-13 09:47:54 | 显示全部楼层

回复

使用道具 举报

 楼主| 发表于 2016-8-13 09:48:52 | 显示全部楼层

回复

使用道具 举报

 楼主| 发表于 2016-8-13 09:52:17 | 显示全部楼层

回复

使用道具 举报

 楼主| 发表于 2016-8-13 09:54:03 | 显示全部楼层

回复

使用道具 举报

 楼主| 发表于 2016-8-13 09:55:05 | 显示全部楼层

回复

使用道具 举报

 楼主| 发表于 2016-8-13 09:57:15 | 显示全部楼层

回复

使用道具 举报

 楼主| 发表于 2016-8-13 09:57:45 | 显示全部楼层

回复

使用道具 举报

您需要登录后才可以回帖 登录 | 立即注册

本版积分规则

全国统一客服电话
0570-8028505

24x7小时免费咨询

  • 官方在线客服

    QQ客服:小西

    点击交谈

    QQ客服:良子

    点击交谈

    QQ客服:闵月

    点击交谈
  • 衢州市柯城区财富中心3号楼2楼

  • 衢州格堂装饰有限公司

  • 扫一扫关注官方微信

    获取一手特惠信息

快速回复 返回顶部 返回列表