• 手机版

    扫码体验手机版

  • 微信公众号

    扫码关注公众号

登录注册
游客您好
第三方账号登陆

[衢州] 【格堂※兰馨苑35幢※】美式,不仅是风格更是生活

[复制链接]
发表于 2016-8-9 16:49:29 | 显示全部楼层 |阅读模式

格堂装饰为您全程记录装修全过程!

小区名称
新湖兰馨苑
房屋面积
235㎡
户型结构
排屋
装修风格
美式
装修方式
半包
装修造价
查看请联系客服万元
设计师
王工
项目经理
彭工
装修公司
格堂装饰
完工实景
完工实景
水电全景
水电全景
VR全景
VR全景
设计说明
更多信息
本帖最后由 格堂小徐 于 2016-8-16 15:49 编辑

设计说明: 美式乡村风格突出了生活的舒适和自由,不论是感觉笨重的家具,还是带有岁月沧桑的配饰,都在告诉人们这一点。特别是在墙面色彩选择上,自然、怀旧、散发着浓郁泥土芬芳的色彩是美式乡村风格的典型特征。在色彩的选择上以自然色调为主,绿色、土褐色最为常见。浓浓的乡村气息,以享受为最高原则,在面料、沙发的皮质上,强调它的舒适度,感觉起来宽松柔软。
效果图:
客餐厅-12大图.jpg
卧室-大图.jpg

回复

使用道具 举报

 楼主| 发表于 2016-8-9 16:49:39 | 显示全部楼层
本帖最后由 格堂小徐 于 2016-8-12 15:24 编辑

地下室:原始结构图:
3.jpg
平面布置图:
4.jpg
回复 支持 反对

使用道具 举报

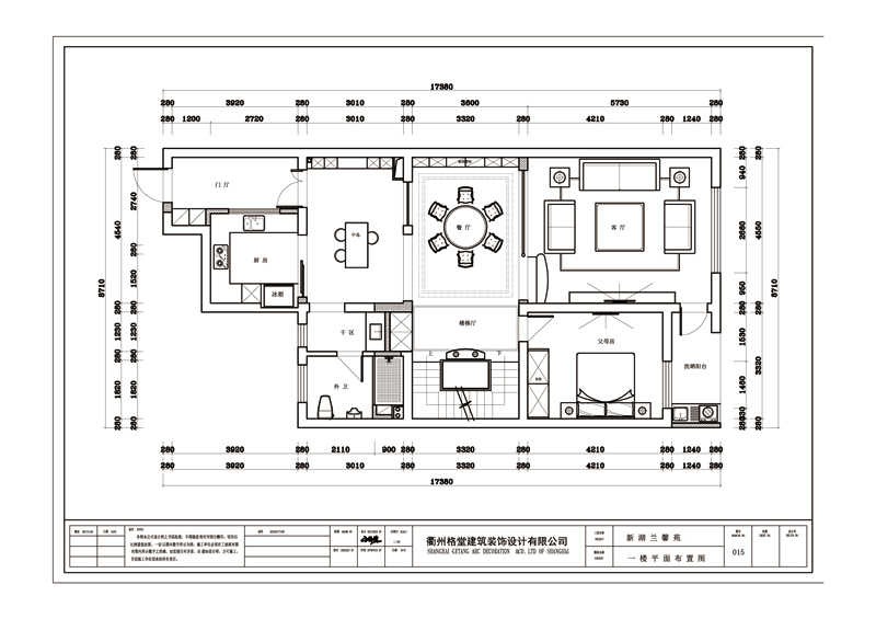
 楼主| 发表于 2016-8-9 16:49:45 | 显示全部楼层
本帖最后由 格堂小徐 于 2016-8-12 15:25 编辑

一楼:
原始结构图:
1.jpg
平面布置图:
2.jpg
回复 支持 反对

使用道具 举报

 楼主| 发表于 2016-8-9 16:49:52 | 显示全部楼层
本帖最后由 格堂小徐 于 2016-8-12 15:26 编辑

二楼:
原始结构图:
5.jpg
平面布置图:
6.jpg
回复 支持 反对

使用道具 举报

 楼主| 发表于 2016-8-9 16:49:58 | 显示全部楼层

回复

使用道具 举报

 楼主| 发表于 2016-8-9 16:50:03 | 显示全部楼层

回复

使用道具 举报

 楼主| 发表于 2016-8-9 16:50:09 | 显示全部楼层

回复

使用道具 举报

 楼主| 发表于 2016-8-9 16:50:20 | 显示全部楼层

回复

使用道具 举报

 楼主| 发表于 2016-8-9 16:50:26 | 显示全部楼层
本帖最后由 格堂小徐 于 2016-8-12 15:31 编辑

8月6号,开工啦!到了之后先把管道以及煤气表保护起来,防止后期拆改有东西掉进去或者磕碰到!
IMG_1575.jpg IMG_1628.jpg
IMG_1634.jpg
IMG_1636.jpg

回复 支持 反对

使用道具 举报

 楼主| 发表于 2016-8-9 16:50:32 | 显示全部楼层
本帖最后由 格堂小徐 于 2016-8-12 15:35 编辑

设计师王工跟项目经理彭工在挂开工横幅!
IMG_9730.jpg
IMG_9731.jpg


回复 支持 反对

使用道具 举报

您需要登录后才可以回帖 登录 | 立即注册

本版积分规则

全国统一客服电话
0570-8028505

24x7小时免费咨询

  • 官方在线客服

    QQ客服:小西

    点击交谈

    QQ客服:良子

    点击交谈

    QQ客服:闵月

    点击交谈
  • 衢州市柯城区财富中心3号楼2楼

  • 衢州格堂装饰有限公司

  • 扫一扫关注官方微信

    获取一手特惠信息

快速回复 返回顶部 返回列表