• 手机版

    扫码体验手机版

  • 微信公众号

    扫码关注公众号

登录注册
游客您好
第三方账号登陆

[衢州] 【格堂※l阳光水岸10幢※】休闲式的浪漫

[复制链接]
发表于 2016-7-26 11:56:25 | 显示全部楼层 |阅读模式

格堂装饰为您全程记录装修全过程!

小区名称
阳光水岸
房屋面积
120㎡
户型结构
装修风格
美式
装修方式
半包
装修造价
查看请联系客服万元
设计师
毛工
项目经理
彭工
装修公司
格堂装饰
完工实景
完工实景
水电全景
水电全景
VR全景
VR全景
设计说明
更多信息
本帖最后由 格堂小徐 于 2016-8-3 16:16 编辑

设计说明:
    如果说生活是一种态度,那么舒适,悠闲,温馨是我们一直在追求的。让每一处色彩,每一个线条,每一样家具都恰到好处。本案的格局改动比较大,把原本偏小的餐厅扩大,卫生间进行干湿分区,增加生活中的实用性。客餐厅一体通透,让整个空间的采光及通风得到最优化。电视机背景简约而不简单。胡桃木色的护墙板配以温馨个性的墙纸,让整个家里多了一份份浓浓的美式情节。沙发没有选用传统式的软皮面沙发,而是更为休闲的木皮结合的沙发。颜色也用的比较大胆,深蓝,墨绿都是不错的选择。整体家居没有太多的修饰与约束,不经意中也成就了另一种休闲的浪漫。
效果图:
阳光水岸10.jpg
回复

使用道具 举报

 楼主| 发表于 2016-7-26 11:56:56 | 显示全部楼层
本帖最后由 格堂小徐 于 2016-7-26 14:00 编辑

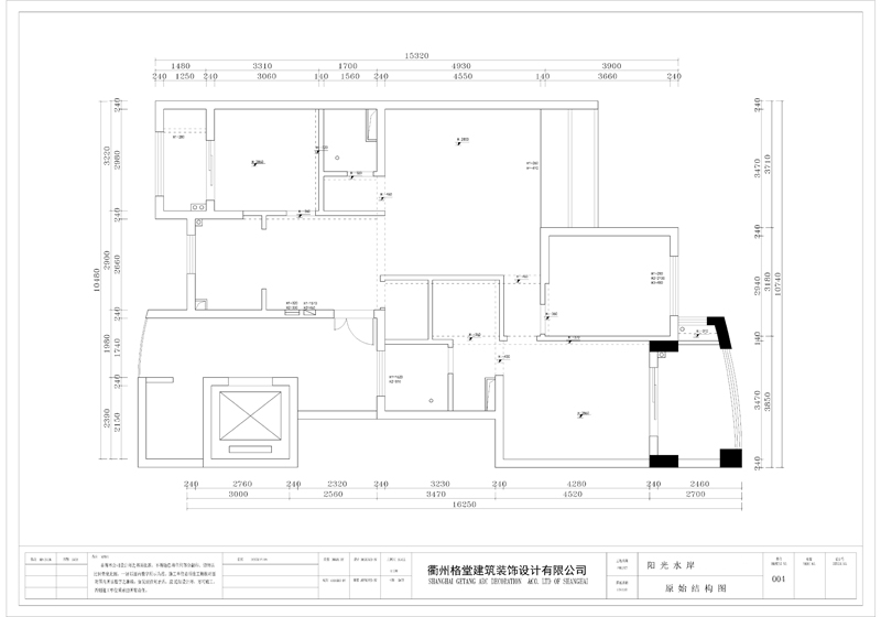
原始结构图:
阳光水岸10施工图.jpg

平面布置图:
阳光水岸10-1.jpg
回复 支持 反对

使用道具 举报

 楼主| 发表于 2016-7-26 14:00:30 | 显示全部楼层

回复

使用道具 举报

 楼主| 发表于 2016-7-26 14:00:38 | 显示全部楼层

回复

使用道具 举报

 楼主| 发表于 2016-7-26 14:00:46 | 显示全部楼层

回复

使用道具 举报

 楼主| 发表于 2016-7-26 14:01:00 | 显示全部楼层

回复

使用道具 举报

 楼主| 发表于 2016-7-26 14:03:36 | 显示全部楼层
开工啦开工去,先去物业办理施工手续吧!
DSC08224.jpg
DSC08225.jpg

回复 支持 反对

使用道具 举报

 楼主| 发表于 2016-7-26 14:05:36 | 显示全部楼层
顶着超级晒的太阳,我们到达物业啦!
DSC08226.jpg
DSC08227.jpg
DSC08228_副本.jpg
回复 支持 反对

使用道具 举报

 楼主| 发表于 2016-7-26 14:08:38 | 显示全部楼层
业主大人和项目经理彭工签字
DSC08231.jpg
DSC08236.jpg



回复 支持 反对

使用道具 举报

 楼主| 发表于 2016-7-26 14:11:39 | 显示全部楼层
一进门,门与煤气表都先保护起来,防止后期坑碰到,so sweet! DSC08243.jpg
DSC08242.jpg
DSC08245.jpg


回复 支持 反对

使用道具 举报

您需要登录后才可以回帖 登录 | 立即注册

本版积分规则

全国统一客服电话
0570-8028505

24x7小时免费咨询

  • 官方在线客服

    QQ客服:小西

    点击交谈

    QQ客服:良子

    点击交谈

    QQ客服:闵月

    点击交谈
  • 衢州市柯城区财富中心3号楼2楼

  • 衢州格堂装饰有限公司

  • 扫一扫关注官方微信

    获取一手特惠信息

快速回复 返回顶部 返回列表