• 手机版

    扫码体验手机版

  • 微信公众号

    扫码关注公众号

登录注册
游客您好
第三方账号登陆

[衢州] 【格堂※鑫港尚城4幢※】不张扬却很有个性,回归自然质朴

[复制链接]
发表于 2016-7-10 15:02:31 | 显示全部楼层 |阅读模式

格堂装饰为您全程记录装修全过程!

小区名称
鑫港尚城
房屋面积
107㎡
户型结构
装修风格
现代
装修方式
半包
装修造价
查看请联系客服万元
设计师
毛工
项目经理
徐工
装修公司
格堂装饰
完工实景
完工实景
水电全景
水电全景
VR全景
VR全景
设计说明
更多信息
本帖最后由 格堂小徐 于 2016-8-5 08:45 编辑

设计说明:
    北欧风格注重的是饰,而不是装。北欧的硬装大都很简洁,室内白色墙面居多。基本墙面上无材质,反而在从家具的选择与摆放中体现出独具的风格。整体色调上以浅色为主:米色 白色 浅木色等,最大限度的简洁,明亮。为了让家更温馨更有归属感,我加入了大量的原木色家具。增添家居的舒适感。
效果图:
鑫港尚城4.jpg

回复

使用道具 举报

 楼主| 发表于 2016-7-10 15:06:02 | 显示全部楼层
本帖最后由 格堂小徐 于 2016-7-12 08:16 编辑

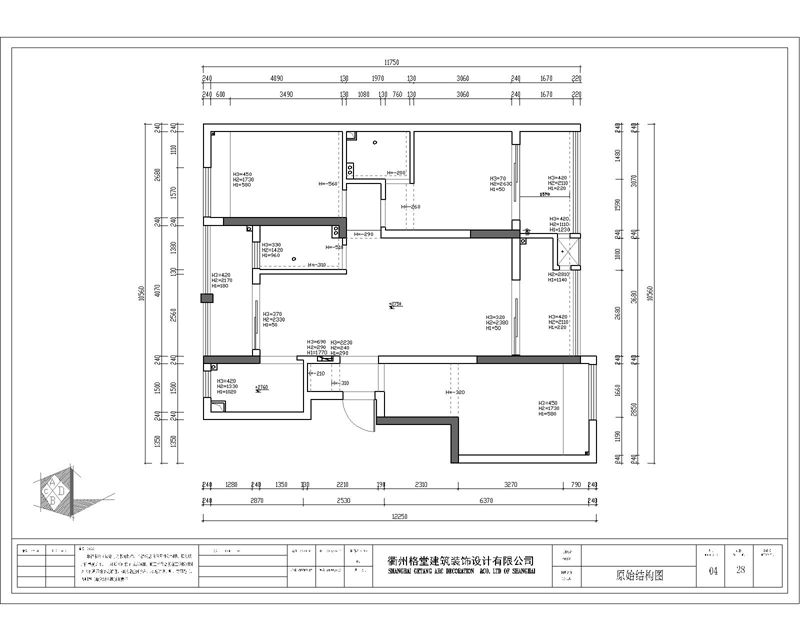
原始结构图:
鑫港尚城4(2).jpg
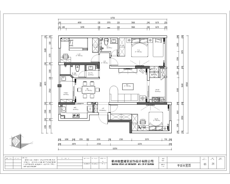
平面布置图:
鑫港尚城4(1).jpg
回复 支持 反对

使用道具 举报

 楼主| 发表于 2016-7-10 15:06:10 | 显示全部楼层
回复

使用道具 举报

 楼主| 发表于 2016-7-10 15:06:17 | 显示全部楼层
回复

使用道具 举报

 楼主| 发表于 2016-7-10 15:06:27 | 显示全部楼层
回复

使用道具 举报

 楼主| 发表于 2016-7-10 15:08:41 | 显示全部楼层
7月10日,我们开工啦!先把门、煤气表保护起来,防止后期装修过程中磕碰到
DSC06675.jpg
DSC06676.jpg
DSC06680.jpg

回复 支持 反对

使用道具 举报

 楼主| 发表于 2016-7-10 15:10:55 | 显示全部楼层
开工横幅也已经挂起来,一旁的礼花也准备就绪!
DSC06677.jpg
DSC06683.jpg
回复 支持 反对

使用道具 举报

 楼主| 发表于 2016-7-10 15:16:58 | 显示全部楼层
9:18(就要发)吉时到,献上我们的开工红包

DSC06678_副本.jpg
1057935348_副本.jpg



回复 支持 反对

使用道具 举报

 楼主| 发表于 2016-7-10 15:19:04 | 显示全部楼层
放礼花,开工大吉!再来上一锤子
1057935347_副本.jpg
DSC06685.jpg
DSC06687.jpg
DSC06686.jpg
回复 支持 反对

使用道具 举报

 楼主| 发表于 2016-7-10 15:20:12 | 显示全部楼层
简易马桶到位
DSC06681.jpg
回复 支持 反对

使用道具 举报

您需要登录后才可以回帖 登录 | 立即注册

本版积分规则

全国统一客服电话
0570-8028505

24x7小时免费咨询

  • 官方在线客服

    QQ客服:小西

    点击交谈

    QQ客服:良子

    点击交谈

    QQ客服:闵月

    点击交谈
  • 衢州市柯城区财富中心3号楼2楼

  • 衢州格堂装饰有限公司

  • 扫一扫关注官方微信

    获取一手特惠信息

快速回复 返回顶部 返回列表