• 手机版

    扫码体验手机版

  • 微信公众号

    扫码关注公众号

登录注册
游客您好
第三方账号登陆

[衢州] 【格堂‖铂金府邸101#】简约是时尚的趋势

[复制链接]
发表于 2016-7-9 15:09:16 | 显示全部楼层 |阅读模式

格堂装饰为您全程记录装修全过程!

小区名称
【格堂‖铂金府邸101#】
房屋面积
174㎡
户型结构
套房
装修风格
现代
装修方式
半包
装修造价
查看请联系客服万元
设计师
饶工
项目经理
徐工
装修公司
格堂装饰
完工实景
完工实景
水电全景
水电全景
VR全景
VR全景
设计说明
更多信息
铂金府邸101-1-801ok.jpg
设计说明:为打造一种简洁、优雅的居家调性,利用十分具有包容性的灰白色为空间的基底,以素雅的材质轻盈的色调灯合宜规划,打造出质感生活面貌。或白或灰的色调,让客厅显得既沉稳而又不失时尚。让客厅看上去格外简洁开阔。无须华丽的装饰,无须贵重的家具,简单的颜色搭配带来的明媚感将整个客厅的拘谨一扫而空。敞开式的厨房与餐厅完美的融合在一起,让一家人其乐融融。

浅色木质地板,温润的颜色增强了空间的温度,细腻的纹路也让客厅的表情变得更丰富。电视背景搭配白灰的强化地板,为空间增添了几分温雅。

回复

使用道具 举报

 楼主| 发表于 2016-7-9 15:37:49 | 显示全部楼层
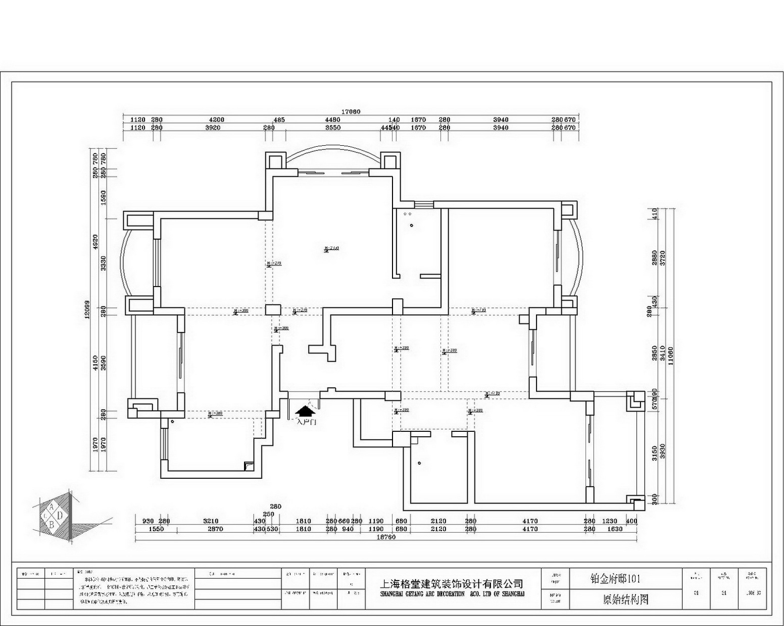
【原始结构图】

铂金府邸101-1-801-Model.jpg
回复 支持 反对

使用道具 举报

 楼主| 发表于 2016-7-9 15:38:53 | 显示全部楼层
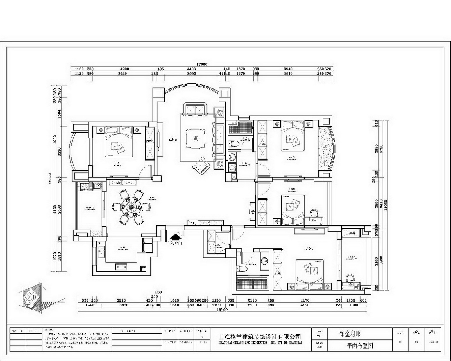
【平面图】

铂金府邸101-1-801。-Model.jpg
回复 支持 反对

使用道具 举报

 楼主| 发表于 2016-7-9 15:39:39 | 显示全部楼层
【拆墙图】

铂金府。邸101-1-801-Model.jpg
回复 支持 反对

使用道具 举报

 楼主| 发表于 2016-7-9 15:40:14 | 显示全部楼层
【砌墙图】

铂。金府邸101-1-801-Model.jpg
回复 支持 反对

使用道具 举报

 楼主| 发表于 2016-7-9 17:34:26 | 显示全部楼层
这里风景如画,你们知道这是哪里吗

SAM_6652.JPG

SAM_6705.JPG




回复 支持 反对

使用道具 举报

 楼主| 发表于 2016-7-10 14:25:27 | 显示全部楼层
7月7号我们来到业主居住的小区,今天是个好日子,业主家要开工了,哈哈哈
徐工把煤气管保护起来

SAM_6624.JPG

SAM_6625.JPG
回复 支持 反对

使用道具 举报

 楼主| 发表于 2016-7-10 14:28:09 | 显示全部楼层
门也做了保护。是为了防止搬运材料时对门有损害

SAM_6628.JPG

SAM_6636.JPG

SAM_6745.JPG
回复 支持 反对

使用道具 举报

 楼主| 发表于 2016-7-10 14:32:30 | 显示全部楼层
饶工和徐工在做开工前的准备工作

SAM_6639.JPG

SAM_6647.JPG
回复 支持 反对

使用道具 举报

 楼主| 发表于 2016-7-10 14:34:20 | 显示全部楼层
管道口保护

SAM_6642.JPG

SAM_6646.JPG

SAM_6648.JPG
回复 支持 反对

使用道具 举报

您需要登录后才可以回帖 登录 | 立即注册

本版积分规则

全国统一客服电话
0570-8028505

24x7小时免费咨询

  • 官方在线客服

    QQ客服:小西

    点击交谈

    QQ客服:良子

    点击交谈

    QQ客服:闵月

    点击交谈
  • 衢州市柯城区财富中心3号楼2楼

  • 衢州格堂装饰有限公司

  • 扫一扫关注官方微信

    获取一手特惠信息

快速回复 返回顶部 返回列表