• 手机版

    扫码体验手机版

  • 微信公众号

    扫码关注公众号

登录注册
游客您好
第三方账号登陆

[衢州] 【格堂‖阳光水岸13#】格调堂皇,欧洲风韵

[复制链接]
发表于 2015-5-11 11:36:48 | 显示全部楼层 |阅读模式
本帖最后由 格堂小月 于 2015-5-15 11:27 编辑

【小区名称】阳光水岸

【设 计 师】苏工

【施 工 员】余工

【项目面积】400平米

【装修风格】欧式风格

【户型结构】复式

【装修方式】半包

【装饰公司】衢州市格堂建筑装饰设计有限公司

设计说明:大理石瓷砖的淡金色,成为了空间风格的代表色。以沉稳的原木棕色为辅助,淡雅的白色及热情的红色为点缀,深色的配饰及花卉植物映衬。每一种材料、色彩都有不同的视觉表情,最重要的是那一股材质超然的情调。在如此繁忙嘈杂的都市,营造了一个可以完全放松,回归自然的生活场所。线条流畅,尺度亲切适宜,呈现格调、堂皇的生活之美。


效果图:

客厅

客厅


餐厅

餐厅


         



格堂装饰网www.gtzs.com首创衢城(甚至全国)装修全新模式,为您记录装修全过程,有专门客服为您记录装修全过程传到格堂公司内部网站!
回复

使用道具 举报

 楼主| 发表于 2015-5-11 12:41:59 | 显示全部楼层
本帖最后由 格堂小月 于 2015-5-13 16:37 编辑

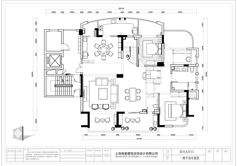
设计平面图:一楼
1.jpg
二楼
2.jpg


格堂装饰网www.gtzs.com首创衢城(甚至全国)装修全新模式,为您记录装修全过程,有专门客服为您记录装修全过程传到格堂公司内部网站!
回复 支持 反对

使用道具 举报

 楼主| 发表于 2015-5-11 13:01:41 | 显示全部楼层
本帖最后由 格堂小月 于 2015-11-3 13:38 编辑

家具搭配参考图:
客厅沙发
5EAAEC56-CC03-4102-9BD8-85797C154EE0.JPG
86D3DA23-4ACC-4807-A63E-807DD4132C7E.JPG
44983AC0-5FB1-423B-917E-86CF6D0D49C4.JPG
91FE5C4B-47E5-482A-959A-AA8C7F9ADE20.JPG
8A999C46-88D8-43F2-B610-29455B172100.JPG

书房桌椅:深色系列(主卧)
B79CFA1F-3839-4DAB-91AB-811691928D2A.JPG
E4E8BAC7-5ABF-47F6-9C3F-A9E8CBA43F60.JPG

书房桌椅:色系列(主卧女儿书房)
5C5F7311-5C40-4A6D-BBEA-BB20FA4C54AF.JPG
601FE1B4-E222-4AC3-A2C4-CF1430A637A0.JPG
女儿床
AFB67172-ADFC-4CB1-89B9-3DA130102047.JPG

主卧床
90883535-7D8A-4475-8018-0E7F256F3BBF.JPG
AC3AFC07-5B0B-4188-BC71-F1E144A00322.JPG
床头柜
FF43E348-6B8B-407E-9AC2-2A73701D2A39.JPG
D21976AF-494E-4824-85AE-ADE7577D2EBF.JPG
茶几
ABE4AC56-FFB3-42DB-A76D-AEE89401DB5A.JPG
电视柜
BECA3490-FBBB-4583-A29B-299BCF649F61.JPG

家具尺寸
DED13EBC-BF1C-4990-AF10-88DE6DDC1A71.JPG
E3B7A6C7-DE8D-4385-9A02-D156541F7C31.JPG
FDB1693D-2F49-4970-9643-63AA4F563BF7.JPG












格堂装饰网www.gtzs.com首创衢城(甚至全国)装修全新模式,为您记录装修全过程,有专门客服为您记录装修全过程传到格堂公司内部网站!
回复 支持 反对

使用道具 举报

 楼主| 发表于 2015-5-11 14:28:47 | 显示全部楼层
本帖最后由 格堂小月 于 2015-12-21 10:35 编辑

洁具:
洗手台(整套)
DAC49CF4-9099-4E9D-A031-BF86BA5269BE.JPG

龙头细节展示(精致)
120A5FE0-7A1F-489E-96F5-8B45EE74C561.JPG
4C1D82E2-0D07-45D5-B895-0BCC844C8E8A.JPG
台下盆
A0E9AA54-52D6-4E49-BA47-679A34BDEE5E.JPG
深色洗手台
FFA19F3D-2B92-4029-9EEC-61074984A9C8.JPG
67EED2A3-D583-41DE-852B-8301CEBB3573.JPG
抽屉设计精致
0AB4F755-2084-4617-9AC9-E34D21AD2C9D.JPG
B5341385-EC36-4113-9336-B7489542EC50.JPG
马桶
BDF6A65B-E102-4F8A-93B5-7FFFEA1238D2.JPG
DBA47F12-796A-4F24-A0A9-FAD0198A2EA6.JPG
浴缸
97A4EB91-28F1-445D-BF0A-FA299C93A659.JPG
淋浴房
69C973ED-D6D9-4506-8F00-3823E381F650.JPG
0715C721-13A5-403F-8E21-C858C1BDBFE8.JPG
A3E6A6AC-91F8-4D3F-9C52-095FBD867CEA.JPG
7D234AFD-683F-4FD5-AF9E-8234C3262EF4.JPG
友邦集成吊顶:(吊顶方案)
厨房(中厨)
厨房 角度1.jpg
厨房 角度2.jpg

主卫(一层)
一楼主卫.jpg

主卫(二层)
二楼女儿卫.jpg

外卫(二层)
二楼外卫.jpg


外卫(一层)
外卫.jpg
窗帘的颜色搭配,这个是绒布的
IMG_2568.JPG
欧式花纹的壁纸,金壁辉煌的
IMG_2569.JPG
图案和颜色都十分优雅的有气质的墙布
墙布得有点在于它比墙纸更加的环保也容易打理,
耐磨抗拉、防霉处理、透气防潮、降噪音、色泽稳定、可做阻燃、防静电、隔热,但是成本也高。

IMG_2571.JPG
这是墙纸的图案
IMG_2572.JPG
IMG_2574.JPG
各类墙纸的图案可以任意选购自己合适的
IMG_2577.JPG
这个图案以及颜色,色相的搭配很协调,挂在家里,气质十足
IMG_2578.JPG
还有这个帘头的款式也真真是极好的
IMG_2582.JPG
IMG_2583.JPG







一楼外卫.jpg
一楼外卫方案2.jpg
IMG_2584.JPG
格堂装饰网www.gtzs.com首创衢城(甚至全国)装修全新模式,为您记录装修全过程,有专门客服为您记录装修全过程传到格堂公司内部网站!
回复 支持 反对

使用道具 举报

 楼主| 发表于 2015-5-11 14:43:07 | 显示全部楼层
本帖最后由 格堂小月 于 2015-11-3 14:10 编辑

马可波罗瓷砖:(瓷砖方案)

格堂13-1701.jpg
MTF-A3026 四片混装  68x68.png
C5013R   马德里 500X500mm圆角 (1).jpg
CZ8973AS (2).jpg
CZ9956.jpg
MK微晶玉石 FH8103 800X800MM  .jpg
MK微晶玉石FH8107 800X800MM .jpg
MK微晶玉石FH8102 800X800MM  .jpg 浅 啡网CZ8826AS (600X600) 02.jpg


马可波罗瓷砖:仿古砖
05E97D46-74BC-455F-B290-55E0EAD93E2D.JPG
9D8178B0-7257-4ADB-822B-1B54BA20D489.JPG
AF2A1EF8-BAFA-43BA-922F-9ABEACAF76A3.JPG
抛釉砖
990EB11A-FFF4-47D5-A73B-C1B56F070060.JPG
F78A0470-B056-4E85-A962-F8E28798FDB4.JPG
17148084-2B97-4AFE-88B6-D1F5D085C698.JPG
63723947-0DD1-40BD-820D-62319A661EEC.JPG
AA4798B1-E13A-440E-8EED-DCBDD1FE597E.JPG
B8A32A6D-8755-4E84-8701-2A2F09CCC5FA.JPG
CBDAA23E-0F04-4C13-9C79-870AF2A40C05.JPG
D7C5A260-66E9-41A3-8F4B-065959025F85.JPG
D8F2ADBD-95F4-40BD-A4DF-DCAB9654B769.JPG
D46B5A25-D01D-4265-9BFD-2D4B6AF96971.JPG
C416AC4B-5078-4E0A-8323-20372D71329A.JPG
DBFB9751-86F4-4DE4-B4E3-95B9A8A79B70.JPG

















格堂装饰网www.gtzs.com首创衢城(甚至全国)装修全新模式,为您记录装修全过程,有专门客服为您记录装修全过程传到格堂公司内部网站!
回复 支持 反对

使用道具 举报

 楼主| 发表于 2015-5-11 16:48:28 | 显示全部楼层
本帖最后由 格堂小月 于 2015-5-15 13:07 编辑

阳光水岸13#复式顶楼又开工一套啦!恭祝:吴总开工大吉啊! 开工的仪式的时候正好云过天晴,空气格外清爽!


QQ图片20150514201509.jpg




格堂装饰网www.gtzs.com首创衢城(甚至全国)装修全新模式,为您记录装修全过程,有专门客服为您记录装修全过程传到格堂公司内部网站!
回复 支持 反对

使用道具 举报

 楼主| 发表于 2015-5-11 16:50:24 | 显示全部楼层
本帖最后由 格堂小月 于 2015-11-3 14:02 编辑

在正式开工前,我们就进行过一部分的墙体敲除工作,所以现在看到的是拆除部分墙体后的景象

DSC02853.JPG DSC02858.JPG
DSC02879.JPG




格堂装饰网www.gtzs.com首创衢城(甚至全国)装修全新模式,为您记录装修全过程,有专门客服为您记录装修全过程传到格堂公司内部网站!
回复 支持 反对

使用道具 举报

 楼主| 发表于 2015-5-11 17:13:32 | 显示全部楼层
本帖最后由 格堂小月 于 2015-5-14 00:58 编辑

一层处

DSC02854.JPG
DSC02855.JPG
DSC02856.JPG
DSC02857.JPG


格堂装饰网www.gtzs.com首创衢城(甚至全国)装修全新模式,为您记录装修全过程,有专门客服为您记录装修全过程传到格堂公司内部网站!
回复 支持 反对

使用道具 举报

 楼主| 发表于 2015-5-11 17:24:45 | 显示全部楼层
本帖最后由 格堂小月 于 2015-5-14 01:00 编辑

二层处
DSC02880.JPG
DSC02878.JPG
DSC02884.JPG
DSC02881.JPG

格堂装饰网www.gtzs.com首创衢城(甚至全国)装修全新模式,为您记录装修全过程,有专门客服为您记录装修全过程传到格堂公司内部网站!
回复 支持 反对

使用道具 举报

 楼主| 发表于 2015-5-13 13:28:00 | 显示全部楼层
本帖最后由 格堂小月 于 2015-5-14 20:15 编辑

项目经理正在放样,做好正式开工前的准备

DSC02911.JPG DSC02912.JPG
DSC02910.JPG



格堂装饰网www.gtzs.com首创衢城(甚至全国)装修全新模式,为您记录装修全过程,有专门客服为您记录装修全过程传到格堂公司内部网站!
回复 支持 反对

使用道具 举报

您需要登录后才可以回帖 登录 | 立即注册

本版积分规则

全国统一客服电话
0570-8028505

24x7小时免费咨询

  • 官方在线客服

    QQ客服:小西

    点击交谈

    QQ客服:良子

    点击交谈

    QQ客服:闵月

    点击交谈
  • 衢州市柯城区财富中心3号楼2楼

  • 衢州格堂装饰有限公司

  • 扫一扫关注官方微信

    获取一手特惠信息

快速回复 返回顶部 返回列表