• 手机版

    扫码体验手机版

  • 微信公众号

    扫码关注公众号

登录注册
游客您好
第三方账号登陆

[衢州] 【格堂装修日记】维多利亚13#返璞归真怡然现代风

[复制链接]
发表于 2015-3-1 15:32:45 | 显示全部楼层 |阅读模式
【小区名称】维多利亚·翡翠园
【设 计 师】胡工
【项目面积】90M2
【装修风格】现代风格
【户型结构】套房
【装修方式】半包
【装修预算】8万
【装饰公司】格堂装饰
设计说明每个人心中都有一个完美的家,它既是精神的,也是物质的,既是爱的起点,也是奋斗的终点,亲情、关爱、宽容、鼓舞、温暖、幸福,这些影子让心变的无比柔和与轻松。当然,很多客户第一次见面便会与我说,我买的房子如何的不能满足我内心想要的东西,我总与客户说,别着急。其实每个设计师,都想成为魔术师,为客户设计出他们意想不到的温暖的家。其实这是家装设计的宗旨,便是温暖、舒适。
       第一次碰面,便是在即将要装修的房子里,小三房的房子,功能上客户本身已经很明确了,三代同堂,一个宝宝,所以便没有了独立的书房,每个房间都有书桌就是必然的了。厨房也是个点,狭长的厨房,外面有个小阳台,最后索性就把阳台包进来,整体设计与业主最初的想象是有些差别的,幸好,他们也是比较容易接受别人想法的人。
    男业主非常忙,因为工作的原因,长期出差,所以我们每次碰面的时间就变得弥足珍贵,因为错过一次,一次没谈好,或许我就需要在等客户很长时间,当然有些小问题,我们还是能在网路上沟通的,总体而言,我们的服务还是非常适合这样的客户的,从前期的网络沟通,到后期施工中的全程跟踪服务,能顺利与客户达成协议签下合同,我想与这样的服务模式总是分不开的。

格堂装饰网www.gtzs.com首创衢城(甚至全国)装修全新模式,为您记录装修全过程,有专门客服为您记录装修全过程传到格堂公司内部网站!
回复

使用道具 举报

 楼主| 发表于 2015-3-1 15:49:01 | 显示全部楼层
设计效果图
维多利亚13-1-40201ok.jpg
格堂装饰网www.gtzs.com首创衢城(甚至全国)装修全新模式,为您记录装修全过程,有专门客服为您记录装修全过程传到格堂公司内部网站!
回复 支持 反对

使用道具 举报

 楼主| 发表于 2015-3-1 16:00:45 | 显示全部楼层
原始结构图:
2.jpg
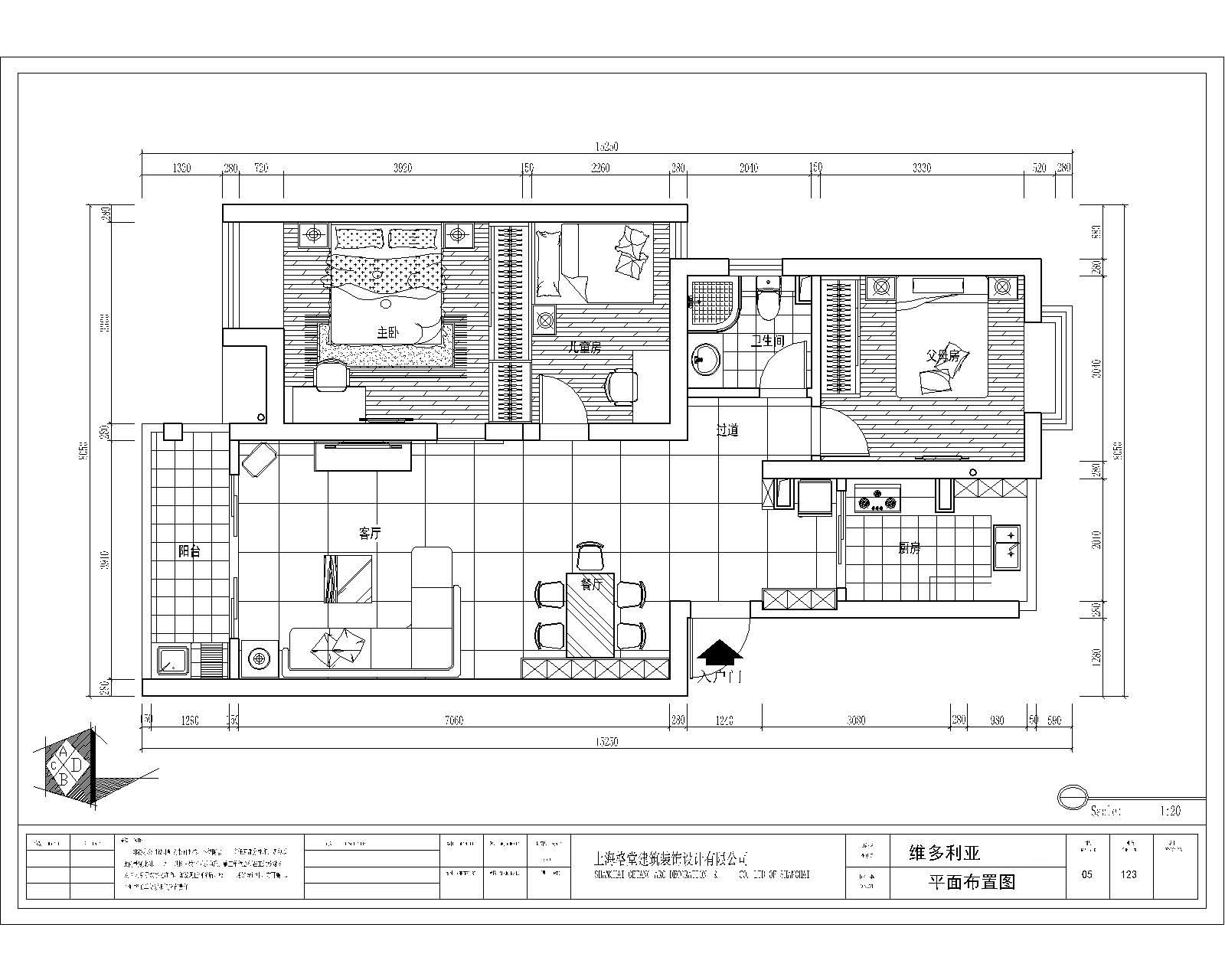
平面布置图:

3.jpg




格堂装饰网www.gtzs.com首创衢城(甚至全国)装修全新模式,为您记录装修全过程,有专门客服为您记录装修全过程传到格堂公司内部网站!
回复 支持 反对

使用道具 举报

 楼主| 发表于 2015-3-1 16:04:39 | 显示全部楼层
材料链接
144718r05r4umcxqzf46q5.gif
格堂装饰网www.gtzs.com首创衢城(甚至全国)装修全新模式,为您记录装修全过程,有专门客服为您记录装修全过程传到格堂公司内部网站!
回复 支持 反对

使用道具 举报

 楼主| 发表于 2015-3-1 16:45:29 | 显示全部楼层
2015年新年,先向大家问声新年好,日子红红火火,每天开开心心喜庆的正月里,格堂装饰2015年首套工地正式开工,恭祝维多利亚业主开工大吉,装修过程能够顺顺利利,能有自己满意的效果!

13416311_183324485190_2_副本.jpg
因为是正月里,业主担心放鞭炮打扰到邻居,索性不放鞭炮了,来看看业主大人的开工第一锤,有力道吧,哈哈!
DSC01920.JPG
DSC01921.JPG
DSC01922.JPG
格堂装饰网www.gtzs.com首创衢城(甚至全国)装修全新模式,为您记录装修全过程,有专门客服为您记录装修全过程传到格堂公司内部网站!
回复 支持 反对

使用道具 举报

 楼主| 发表于 2015-3-1 17:01:58 | 显示全部楼层
开工放样咯,设计师,项目经理和师傅们都一起到工地敲墙放样!
DSC01881.JPG
DSC01882.JPG




格堂装饰网www.gtzs.com首创衢城(甚至全国)装修全新模式,为您记录装修全过程,有专门客服为您记录装修全过程传到格堂公司内部网站!
回复 支持 反对

使用道具 举报

 楼主| 发表于 2015-3-2 10:53:06 | 显示全部楼层
阳台上洗衣台放样,考虑到美观性洗衣台摆放在此处,而且洗衣台背靠实墙在工程施工操作上更容易达到技术实现 DSC01884.JPG
设计师和项目经理放样中
DSC01888.JPG
格堂装饰网www.gtzs.com首创衢城(甚至全国)装修全新模式,为您记录装修全过程,有专门客服为您记录装修全过程传到格堂公司内部网站!
回复 支持 反对

使用道具 举报

 楼主| 发表于 2015-3-2 10:59:42 | 显示全部楼层
公园当作后花园,阳台上看去公园全景一览无余一片绿色!
DSC01886.JPG
DSC01887.JPG
格堂装饰网www.gtzs.com首创衢城(甚至全国)装修全新模式,为您记录装修全过程,有专门客服为您记录装修全过程传到格堂公司内部网站!
回复 支持 反对

使用道具 举报

 楼主| 发表于 2015-3-2 11:23:40 | 显示全部楼层
放样中,主卧室的门洞需要移位,所以把门洞敲出来,原先的门洞将用红砖砌墙堵住。设计师和项目经理在放样,在墙面做上标记,免得工人师傅敲错。
DSC01892.JPG
DSC01893.JPG
DSC01894.JPG
DSC01895.JPG

格堂装饰网www.gtzs.com首创衢城(甚至全国)装修全新模式,为您记录装修全过程,有专门客服为您记录装修全过程传到格堂公司内部网站!
回复 支持 反对

使用道具 举报

 楼主| 发表于 2015-3-2 11:33:18 | 显示全部楼层
客厅与阳台的隔墙需要拆除,以后砌成薄墙扩大客厅空间。阳台移门暂时拆除,仍旧能继续使用。 DSC01952.JPG
DSC01896.JPG
DSC01897.JPG



格堂装饰网www.gtzs.com首创衢城(甚至全国)装修全新模式,为您记录装修全过程,有专门客服为您记录装修全过程传到格堂公司内部网站!
回复 支持 反对

使用道具 举报

您需要登录后才可以回帖 登录 | 立即注册

本版积分规则

全国统一客服电话
0570-8028505

24x7小时免费咨询

  • 官方在线客服

    QQ客服:小西

    点击交谈

    QQ客服:良子

    点击交谈

    QQ客服:闵月

    点击交谈
  • 衢州市柯城区财富中心3号楼2楼

  • 衢州格堂装饰有限公司

  • 扫一扫关注官方微信

    获取一手特惠信息

快速回复 返回顶部 返回列表