• 手机版

    扫码体验手机版

  • 微信公众号

    扫码关注公众号

登录注册
游客您好
第三方账号登陆

[衢州] 【工地巡检】第三十一期2014年10月格堂装饰工地巡检

[复制链接]
发表于 2014-10-29 14:19:55 | 显示全部楼层 |阅读模式
碧空如洗的爽朗天气中,格堂装饰迎来第三十一期巡检,在项目总监的带领下,设计部和客服部一同前往,即将到春江巡检!
图片1.jpg

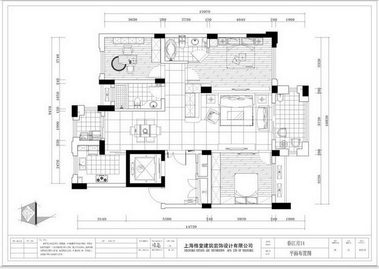
【小    区】春江月

【面    积】140平米

【装修风格】现代风格

【房    型】三室两厅一厨二卫

【设计&施工公司】格堂装饰

【设 计 师】徐工

图片2.jpg

    业主工作比较忙,经常出差,对我们的了解也是来至网络,咨询后得知此户型我们做过几套,觉得设计和施工都不错,后来和圈里的朋友说起我们公司,很多朋友都了解我们品质,极力推荐与我们合作。
    整体为现代时尚风格,客厅运用软包、墙纸、不锈钢、玻璃等材质配合水晶吊灯, 凸显出时尚的感觉;内外卫为全定制洗脸盆柜,进一步体现个性时尚的特点,为增加内卫采光,把与卧室的隔墙拆除,用落地玻璃隔断;主卧室考虑更加宽敞,只在门背后结合原结构做了一个小衣柜。  

图片3.jpg


格堂装饰网www.gtzs.com首创衢城(甚至全国)装修全新模式,为您记录装修全过程,有专门客服为您记录装修全过程传到格堂公司内部网站!
回复

使用道具 举报

 楼主| 发表于 2014-10-29 14:20:52 | 显示全部楼层
用不锈钢把木档包住,整体为现代时尚风格,客厅运用软包、墙纸、不锈钢、玻璃等材质配合水晶吊灯, 凸显出时尚的感觉
图片4.jpg

格堂装饰网www.gtzs.com首创衢城(甚至全国)装修全新模式,为您记录装修全过程,有专门客服为您记录装修全过程传到格堂公司内部网站!
回复 支持 反对

使用道具 举报

 楼主| 发表于 2014-10-29 14:21:20 | 显示全部楼层
巡检组发现,衣柜做好后层板上没有用保护膜保护起来,容易积灰,还会损伤集成板,巡检组责令立马保护好衣柜板!
图片5.jpg

格堂装饰网www.gtzs.com首创衢城(甚至全国)装修全新模式,为您记录装修全过程,有专门客服为您记录装修全过程传到格堂公司内部网站!
回复 支持 反对

使用道具 举报

 楼主| 发表于 2014-10-29 14:21:49 | 显示全部楼层
由于做最后一道墙面油漆,需要避免空气中灰尘,窗门全部关闭可以减少室内空气的灰尘堆积,进而减少灰尘落到墙面上,墙面油漆做好以后不容易形成颗粒状,表层光滑平整,整体质量也能得以提升,家具漆亦同,得到巡检组表扬!
图片6.jpg

格堂装饰网www.gtzs.com首创衢城(甚至全国)装修全新模式,为您记录装修全过程,有专门客服为您记录装修全过程传到格堂公司内部网站!
回复 支持 反对

使用道具 举报

 楼主| 发表于 2014-10-29 14:23:56 | 显示全部楼层
油漆阶段,柜门喷漆,每喷一道油漆打磨一次,最后一道上面漆。柜门上工艺为开放漆,水曲柳饰面板喷漆以后形成自然木纹的纹理非常美观,深受广大客户喜爱。格堂所使用的油漆都是有品牌保障,白色家具不会容易发黄。
图片7.jpg

图片8.jpg

格堂装饰网www.gtzs.com首创衢城(甚至全国)装修全新模式,为您记录装修全过程,有专门客服为您记录装修全过程传到格堂公司内部网站!
回复 支持 反对

使用道具 举报

 楼主| 发表于 2014-10-29 14:24:40 | 显示全部楼层
柜子层板边角制作成圆弧形状,不仅美观而且不容易有磕碰,工地施工工艺越来越成熟,需要考虑到规范性、美观性、安全性,考虑全面是格堂给客户最好的服务!
图片9.jpg

格堂装饰网www.gtzs.com首创衢城(甚至全国)装修全新模式,为您记录装修全过程,有专门客服为您记录装修全过程传到格堂公司内部网站!
回复 支持 反对

使用道具 举报

 楼主| 发表于 2014-10-29 14:25:08 | 显示全部楼层
隐形门融入电视背景,造型在同一水平面上,美观实用。
图片10.jpg

格堂装饰网www.gtzs.com首创衢城(甚至全国)装修全新模式,为您记录装修全过程,有专门客服为您记录装修全过程传到格堂公司内部网站!
回复 支持 反对

使用道具 举报

 楼主| 发表于 2014-10-29 14:25:42 | 显示全部楼层
洗衣台盆内空不少于87公分,台板高94公分,正好放入滚筒洗衣机,设计中会按照洗衣机尺寸适当调节空间,不会有大的出入。
图片11.jpg

图片12.jpg

图片13.jpg

格堂装饰网www.gtzs.com首创衢城(甚至全国)装修全新模式,为您记录装修全过程,有专门客服为您记录装修全过程传到格堂公司内部网站!
回复 支持 反对

使用道具 举报

 楼主| 发表于 2014-10-29 14:26:13 | 显示全部楼层
吊顶的设计越来越多样化,此种设计需要木工师傅有熟练的手艺,工艺精湛,形成空间层次感,和整体设计风格相呼应。
图片14.jpg

图片15.jpg

格堂装饰网www.gtzs.com首创衢城(甚至全国)装修全新模式,为您记录装修全过程,有专门客服为您记录装修全过程传到格堂公司内部网站!
回复 支持 反对

使用道具 举报

 楼主| 发表于 2014-10-29 14:26:44 | 显示全部楼层
天然大理石价格高,比较脆,辐射性较大,所以背面要用网格布来过来加固天然大理石的强度。同事们在学习怎么区分天然还是人造大理石。
图片16.jpg

图片17.jpg

格堂装饰网www.gtzs.com首创衢城(甚至全国)装修全新模式,为您记录装修全过程,有专门客服为您记录装修全过程传到格堂公司内部网站!
回复 支持 反对

使用道具 举报

您需要登录后才可以回帖 登录 | 立即注册

本版积分规则

全国统一客服电话
0570-8028505

24x7小时免费咨询

  • 官方在线客服

    QQ客服:小西

    点击交谈

    QQ客服:良子

    点击交谈

    QQ客服:闵月

    点击交谈
  • 衢州市柯城区财富中心3号楼2楼

  • 衢州格堂装饰有限公司

  • 扫一扫关注官方微信

    获取一手特惠信息

快速回复 返回顶部 返回列表