• 手机版

    扫码体验手机版

  • 微信公众号

    扫码关注公众号

登录注册
游客您好
第三方账号登陆

[衢州] 【工地巡检】第二十六期2014年8月格堂装饰工地巡检

[复制链接]
发表于 2014-8-30 17:20:12 | 显示全部楼层 |阅读模式
自从去年我们格堂装饰开创衢州装修行业每周巡检,成为衢州装修公司的学习对象。敢于找自己问题,并得到装修客户的一致好评,我们的巡检之旅得到衢州晚报的大力推广报道(看每周二衢州晚报的格堂装饰巡检)。
万里无云的天气,风中飘来的气息都格外闷热,巡检组一如既往开启巡检之路。 本期巡检小区有【衢州花园38栋、衢州花园41栋】
本期巡检人员有工程部、设计部、客服部组成。
DSC00467.JPG


格堂装饰网www.gtzs.com首创衢城(甚至全国)装修全新模式,为您记录装修全过程,有专门客服为您记录装修全过程传到格堂公司内部网站!
回复

使用道具 举报

 楼主| 发表于 2014-8-30 17:22:14 | 显示全部楼层
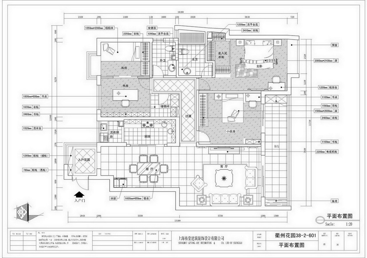
【小       区】衢州花园
【面       积】150平米
【装修风格】美式风格
【房       型】套房
【设计&施工公司】格堂装饰
【 设 计 师】苏工
设计平面图
DSC00467.JPG


格堂装饰网www.gtzs.com首创衢城(甚至全国)装修全新模式,为您记录装修全过程,有专门客服为您记录装修全过程传到格堂公司内部网站!
回复 支持 反对

使用道具 举报

 楼主| 发表于 2014-8-30 17:23:31 | 显示全部楼层
与业主的认识还得感谢衢州19楼网,我们是在红星美凯龙做了一场业主见面会的活动上认识的。当初业主也比较了几家装修公司,最后跟我们设计师沟通的时候被我们的全程跟踪的模式和做事的认真打动了。业主是一个豪爽的人, 活动的最后一天过来跟我们签了合同,并参加了摸奖,运气不错 抽到一个大彩电回家哦。
设计风格定的是实木派,带美式混搭。因为衢州花园的房子都是框架结构,改造上比较有发挥的空间。设计上满足了业主的要求,有一个大大得走入式衣柜,一个卧室和书房搭配的地方!一个可爱的女儿房!业主几次沟通后就确定了设计方案。并去材料市场进行了价格的厮杀,把地砖,地板,橱柜,空调,洁具,等主材部分一一砍下来!前期工作做得充分,后期就省力多了!来看后面的设计整个过程吧!!!

DSC00467.JPG


145342rp39svz3mg0bn30n.jpg

格堂装饰网www.gtzs.com首创衢城(甚至全国)装修全新模式,为您记录装修全过程,有专门客服为您记录装修全过程传到格堂公司内部网站!
回复 支持 反对

使用道具 举报

 楼主| 发表于 2014-8-30 17:24:24 | 显示全部楼层
刚刚抵达工地巡检组便开始认真检查。

145342rp39svz3mg0bn30n.jpg

格堂装饰网www.gtzs.com首创衢城(甚至全国)装修全新模式,为您记录装修全过程,有专门客服为您记录装修全过程传到格堂公司内部网站!
回复 支持 反对

使用道具 举报

 楼主| 发表于 2014-8-30 17:25:25 | 显示全部楼层
客厅电视背景墙插座不够,巡检组责令再加一个
145342rp39svz3mg0bn30n.jpg

格堂装饰网www.gtzs.com首创衢城(甚至全国)装修全新模式,为您记录装修全过程,有专门客服为您记录装修全过程传到格堂公司内部网站!
回复 支持 反对

使用道具 举报

 楼主| 发表于 2014-8-30 17:26:05 | 显示全部楼层
卫生间门槛石挂边太高,能看到水泥,影响美观
145342rp39svz3mg0bn30n.jpg


171336hzzfu5j7dykuu29r.jpg

格堂装饰网www.gtzs.com首创衢城(甚至全国)装修全新模式,为您记录装修全过程,有专门客服为您记录装修全过程传到格堂公司内部网站!
回复 支持 反对

使用道具 举报

 楼主| 发表于 2014-8-31 08:30:41 | 显示全部楼层
设计师正在用吊锤测量贴好磁砖的墙面是否平直。经巡检组测过之后是非常平直的,上下离墙面都是4公分。

DSC00470.JPG


DSC00473.JPG


DSC00474.JPG

格堂装饰网www.gtzs.com首创衢城(甚至全国)装修全新模式,为您记录装修全过程,有专门客服为您记录装修全过程传到格堂公司内部网站!
回复 支持 反对

使用道具 举报

 楼主| 发表于 2014-8-31 08:58:37 | 显示全部楼层
这个地漏呢,因为是贴近墙体的,所以不用做成斜拼的 DSC00476.JPG

格堂装饰网www.gtzs.com首创衢城(甚至全国)装修全新模式,为您记录装修全过程,有专门客服为您记录装修全过程传到格堂公司内部网站!
回复 支持 反对

使用道具 举报

 楼主| 发表于 2014-8-31 09:01:48 | 显示全部楼层
水管的进出水口在磁砖的外面,方便以后接水管,做的非常好。受到巡检组的赞扬
DSC00477.JPG


格堂装饰网www.gtzs.com首创衢城(甚至全国)装修全新模式,为您记录装修全过程,有专门客服为您记录装修全过程传到格堂公司内部网站!
回复 支持 反对

使用道具 举报

 楼主| 发表于 2014-8-31 09:06:06 | 显示全部楼层
巡检组发现施工进度表没有按时登记,巡检组责令以后一定要做好记录。


DSC08611.JPG

格堂装饰网www.gtzs.com首创衢城(甚至全国)装修全新模式,为您记录装修全过程,有专门客服为您记录装修全过程传到格堂公司内部网站!
回复 支持 反对

使用道具 举报

您需要登录后才可以回帖 登录 | 立即注册

本版积分规则

全国统一客服电话
0570-8028505

24x7小时免费咨询

  • 官方在线客服

    QQ客服:小西

    点击交谈

    QQ客服:良子

    点击交谈

    QQ客服:闵月

    点击交谈
  • 衢州市柯城区财富中心3号楼2楼

  • 衢州格堂装饰有限公司

  • 扫一扫关注官方微信

    获取一手特惠信息

快速回复 返回顶部 返回列表