• 手机版

    扫码体验手机版

  • 微信公众号

    扫码关注公众号

登录注册
游客您好
第三方账号登陆

[衢州] 振兴二区2-2-10#114㎡现代原木——温馨构筑屋

[复制链接]
发表于 2023-3-25 18:44:35 | 显示全部楼层 |阅读模式
振兴二区2-2-10#114㎡现代原木——温馨构筑屋

格堂装饰为您全程记录装修全过程!

小区名称
振兴二区
房屋面积
114㎡
户型结构
套房
装修风格
现代
装修方式
半包
装修造价
查看请联系客服万元
设计师
吴工
项目经理
吴工
装修公司
格堂装饰
完工实景
完工实景
水电全景
水电全景
VR全景
VR全景
设计说明
没有太多冰冷的石材与显眼的硬装造型,温馨的灵感来源于材料的温度,选择以统一的木饰面构筑空间秩序,让温和的木纹肌理帮助空间呈现更加包容,更为宁静松弛,这个明亮、敞开且不做分割的公区回应着一个家庭对于生活场景的想象。
更多信息
效果图
69b063dac8ce20ec207bcb9ed516683.jpg

c4cd4482822bbd98985e84befca68f4.jpg
回复

使用道具 举报

 楼主| 发表于 2023-3-25 18:46:09 | 显示全部楼层
目      录

1开工9防水   线槽修补
2拆改10泥木工材料
3砌墙11泥木工中途
4水电放样12泥木工验收
5开槽   水电材料13油漆材料
6水电中途14油漆中途
7水电完工图15安装阶段
8水电细节16竣工验收

回复 支持 反对

使用道具 举报

 楼主| 发表于 2023-3-25 18:46:31 | 显示全部楼层
本帖最后由 GT040 于 2023-3-25 18:49 编辑

原始结构图
2345截图20230325184852.png



回复 支持 反对

使用道具 举报

 楼主| 发表于 2023-3-25 18:58:05 | 显示全部楼层
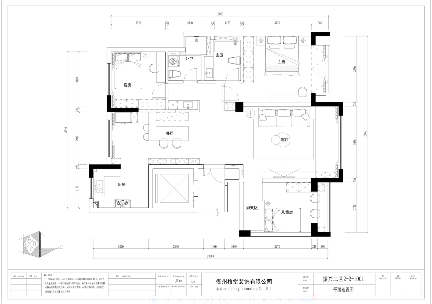
平面布置图
2345截图20230325184905.png
回复 支持 反对

使用道具 举报

 楼主| 发表于 2023-3-25 18:58:47 | 显示全部楼层
恭祝业主大人开工大吉!
52c056e1db1f85a80ae751fd3e1650f.jpg
回复 支持 反对

使用道具 举报

 楼主| 发表于 2023-3-25 19:00:12 | 显示全部楼层
开工第一锤由业主大人敲下!装修开工第一锤应该敲在要拆除的墙体的墙角(即拐角)上,象征一锤定音的意思,也是新房动土的一种表示方式。
edabf1accd0f4404548b46f7c8788da.jpg
回复 支持 反对

使用道具 举报

您需要登录后才可以回帖 登录 | 立即注册

本版积分规则

全国统一客服电话
0570-8028505

24x7小时免费咨询

  • 官方在线客服

    QQ客服:小西

    点击交谈

    QQ客服:良子

    点击交谈

    QQ客服:闵月

    点击交谈
  • 衢州市柯城区财富中心3号楼2楼

  • 衢州格堂装饰有限公司

  • 扫一扫关注官方微信

    获取一手特惠信息

快速回复 返回顶部 返回列表