• 手机版

    扫码体验手机版

  • 微信公众号

    扫码关注公众号

登录注册
游客您好
第三方账号登陆

[衢州] 招贤里5-1-15#121㎡现代——光阴渐诗

[复制链接]
发表于 2022-12-14 14:38:32 | 显示全部楼层 |阅读模式
光阴渐诗

格堂装饰为您全程记录装修全过程!

小区名称
招贤里
房屋面积
121㎡
户型结构
套房
装修风格
新中式
装修方式
半包
装修造价
查看请联系客服万元
设计师
佘工
项目经理
余工
装修公司
格堂装饰
完工实景
完工实景
水电全景
水电全景
VR全景
VR全景
设计说明
在空间的有限尺度之内,释放出对自然哲学的追求和对生活美学的渴望。精神的自由与生命的诗意交相辉映,以石韵为基,光影流转自如,现代感与内敛的意趣克制而平衡。我们希冀以设计引导生活回归于最本真的状态,致敬自然,也致敬最真诚的自我。
更多信息
本帖最后由 格堂飞飞 于 2022-12-14 15:41 编辑

效果图
IMG_5990.JPG

IMG_5991.PNG
回复

使用道具 举报

 楼主| 发表于 2022-12-14 14:38:39 | 显示全部楼层
本帖最后由 格堂飞飞 于 2023-1-7 17:34 编辑

开工
拆改阶段
砌墙阶段
水电放样
水电材料
水电阶段
水电图



回复 支持 反对

使用道具 举报

 楼主| 发表于 2022-12-14 14:39:27 | 显示全部楼层

原始结构图
IMG_5992.JPG
回复 支持 反对

使用道具 举报

 楼主| 发表于 2022-12-14 14:40:07 | 显示全部楼层

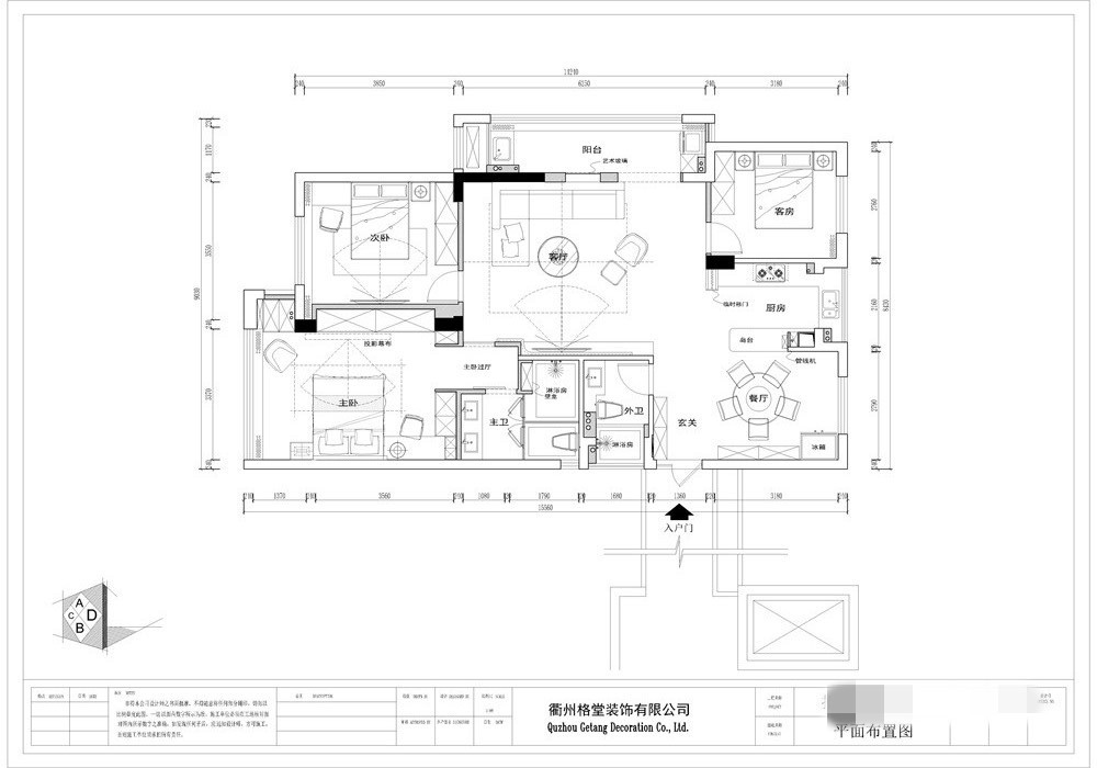
平面布置图
IMG_5993.JPG
回复 支持 反对

使用道具 举报

 楼主| 发表于 2022-12-14 14:41:49 | 显示全部楼层

开工前准备工作,先要做好哦!
IMG_5457.JPG

IMG_5458.JPG

IMG_5460.JPG

IMG_5459.JPG
回复 支持 反对

使用道具 举报

 楼主| 发表于 2022-12-14 14:42:48 | 显示全部楼层

电梯间墙面和地面,保护好了,防止磕碰哦!
IMG_5444.JPG

IMG_5447.JPG

IMG_5448.JPG

IMG_5449.JPG
回复 支持 反对

使用道具 举报

 楼主| 发表于 2022-12-14 14:43:27 | 显示全部楼层

电梯间
IMG_5451.JPG

IMG_5446.JPG

IMG_5445.JPG

IMG_5450.JPG
回复 支持 反对

使用道具 举报

 楼主| 发表于 2022-12-14 14:44:42 | 显示全部楼层

临时马桶安装好了, 方便师傅使用,要讲究卫生哦!
IMG_5467.JPG
回复 支持 反对

使用道具 举报

 楼主| 发表于 2022-12-14 14:45:49 | 显示全部楼层

下水管用格堂专用保护盖保护,防止砂石堵塞管道。

IMG_5466.JPG

IMG_5468.JPG

IMG_5469.JPG

IMG_5470.JPG
回复 支持 反对

使用道具 举报

 楼主| 发表于 2022-12-14 14:46:37 | 显示全部楼层

煤气表也要保护起来,防止磕碰哦!
IMG_5483.JPG
回复 支持 反对

使用道具 举报

您需要登录后才可以回帖 登录 | 立即注册

本版积分规则

全国统一客服电话
0570-8028505

24x7小时免费咨询

  • 官方在线客服

    QQ客服:小西

    点击交谈

    QQ客服:良子

    点击交谈

    QQ客服:闵月

    点击交谈
  • 衢州市柯城区财富中心3号楼2楼

  • 衢州格堂装饰有限公司

  • 扫一扫关注官方微信

    获取一手特惠信息

快速回复 返回顶部 返回列表