• 手机版

    扫码体验手机版

  • 微信公众号

    扫码关注公众号

登录注册
游客您好
第三方账号登陆

[衢州] 云澜府28-1--1#225㎡新中式——现代中式

[复制链接]
发表于 2023-1-11 16:44:57 | 显示全部楼层 |阅读模式
现代中式

格堂装饰为您全程记录装修全过程!

小区名称
云澜府
房屋面积
225㎡
户型结构
套房
装修风格
新中式
装修方式
半包
装修造价
查看请联系客服万元
设计师
王工
项目经理
余工
装修公司
格堂装饰
完工实景
完工实景
水电全景
水电全景
VR全景
VR全景
设计说明
现代中式 中式元素和现代框架的有机结合 两者取其精华 突显神韵 内敛而沉稳 符合当下人的生活气息!
更多信息
效果图
IMG_1791.JPG

IMG_1792.JPG

IMG_1790.JPG

IMG_1794.JPG

IMG_1796.JPG
回复

使用道具 举报

 楼主| 发表于 2023-1-11 16:46:07 | 显示全部楼层
本帖最后由 格堂飞飞 于 2023-1-11 17:18 编辑

开工
拆改阶段
砌墙阶段

回复 支持 反对

使用道具 举报

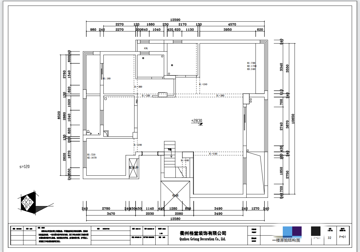
 楼主| 发表于 2023-1-11 16:46:34 | 显示全部楼层

原始结构图
IMG_1785.PNG

IMG_1786.PNG
回复 支持 反对

使用道具 举报

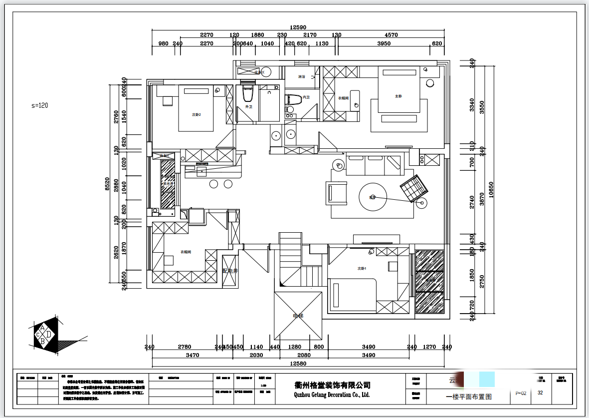
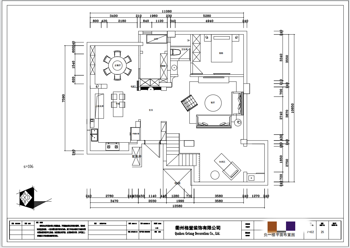
 楼主| 发表于 2023-1-11 16:46:59 | 显示全部楼层

平面布置图
IMG_1787.PNG

IMG_1788.PNG
回复 支持 反对

使用道具 举报

 楼主| 发表于 2023-1-11 16:48:03 | 显示全部楼层

项目经理正在做,开工前的准备工作。
IMG_9763.JPG

IMG_9764.JPG

IMG_9765.JPG

IMG_9766.JPG

IMG_9769.JPG
回复 支持 反对

使用道具 举报

 楼主| 发表于 2023-1-11 16:49:01 | 显示全部楼层
临时马桶安装好了,方便师傅使用,要讲究卫生哦!
IMG_9770.JPG



回复 支持 反对

使用道具 举报

 楼主| 发表于 2023-1-11 16:49:55 | 显示全部楼层

项目经理正在煤气表保护,防止磕碰哦!
IMG_9771.JPG

IMG_9775.JPG
回复 支持 反对

使用道具 举报

 楼主| 发表于 2023-1-11 16:50:46 | 显示全部楼层

下水管用格堂专用保护盖保护,防止砂石堵塞管道。

IMG_9772.JPG

IMG_9773.JPG

IMG_9776.JPG

IMG_9777.JPG

IMG_9778.JPG
回复 支持 反对

使用道具 举报

 楼主| 发表于 2023-1-11 16:51:58 | 显示全部楼层

一切准备就绪,等待开工吉时喽!
IMG_9779.JPG

IMG_9780.JPG
回复 支持 反对

使用道具 举报

 楼主| 发表于 2023-1-11 16:52:48 | 显示全部楼层

吉时已到,恭祝业主大人,开工大吉!
IMG_9800.JPG
回复 支持 反对

使用道具 举报

您需要登录后才可以回帖 登录 | 立即注册

本版积分规则

全国统一客服电话
0570-8028505

24x7小时免费咨询

  • 官方在线客服

    QQ客服:小西

    点击交谈

    QQ客服:良子

    点击交谈

    QQ客服:闵月

    点击交谈
  • 衢州市柯城区财富中心3号楼2楼

  • 衢州格堂装饰有限公司

  • 扫一扫关注官方微信

    获取一手特惠信息

快速回复 返回顶部 返回列表