• 手机版

    扫码体验手机版

  • 微信公众号

    扫码关注公众号

登录注册
游客您好
第三方账号登陆

[衢州] 云澜府12-1-10#176㎡现代——沉稳之家,静谧精致

[复制链接]
发表于 2023-7-9 17:20:36 | 显示全部楼层 |阅读模式
云澜府12-1-10#176㎡现代——沉稳之家,静谧精致

格堂装饰为您全程记录装修全过程!

小区名称
云澜府
房屋面积
176㎡
户型结构
套房
装修风格
现代
装修方式
半包
装修造价
查看请联系客服万元
设计师
郑工
项目经理
施工
装修公司
格堂装饰
完工实景
完工实景
水电全景
水电全景
VR全景
VR全景
设计说明
润泽时光,婆娑光影,自然色调的微妙变化让空间更富有柔性,理想中的自然且舒适的视觉感受,在深色的体块合围下,任纹理与造型交互。行、坐、卧间,悦己自在,温澜潮生。
更多信息
效果图

微信图片_20230709171258.png


微信图片_20230709171317.png
回复

使用道具 举报

 楼主| 发表于 2023-7-9 17:21:25 | 显示全部楼层
本帖最后由 格堂王姐 于 2024-2-18 15:25 编辑

目      录


回复 支持 反对

使用道具 举报

 楼主| 发表于 2023-7-9 17:21:40 | 显示全部楼层
本帖最后由 格堂王姐 于 2023-7-9 17:24 编辑

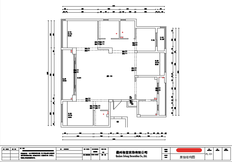
原始结构图

微信图片_20230709171239.png

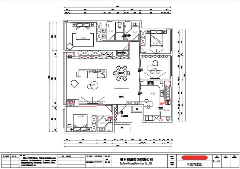
平面布置图


微信图片_20230709171243.png
回复 支持 反对

使用道具 举报

 楼主| 发表于 2023-7-9 17:22:37 | 显示全部楼层
本帖最后由 格堂王姐 于 2023-7-10 15:03 编辑

大门已经保护到位。
IMG_5023.JPG

卫生间简易马桶安装到位,防止后期施工中沙石堵塞进入,美观实用
微信图片_20230709171156.jpg

煤气表保护到位
微信图片_20230709171200.jpg

排水管道用格堂专用保护盖保护,防止后期施工中砂石 堵塞管道
微信图片_20230709171203.jpg
回复 支持 反对

使用道具 举报

 楼主| 发表于 2023-7-9 17:23:05 | 显示全部楼层
本帖最后由 格堂王姐 于 2023-7-10 15:04 编辑

电梯口墙面和地面都贴好了格堂专用的保护垫。

IMG_5024.JPG

IMG_5025.JPG


IMG_5026.JPG

IMG_5027.JPG

IMG_5028.JPG

电梯口对角



IMG_5029.JPG

IMG_5030.JPG

IMG_5031.JPG

IMG_5032.JPG

IMG_5033.JPG

回复 支持 反对

使用道具 举报

 楼主| 发表于 2023-7-9 17:23:51 | 显示全部楼层
本帖最后由 格堂王姐 于 2023-7-9 17:26 编辑

开工仪式准备,开工横幅、鲜花、礼花准备到位,就等吉时!
开工桌摆好准备
微信图片_20230709171134.jpg

吉时到开工了,恭祝业主大人开工大吉!
仪式很短暂,家居装修却很长……与漫漫人生历程相比,这些短短一瞬,却包含了满满的心意。
我们竭力用自己的专业技能,让每位业主拥有最接近梦想的家!恭祝开工大吉!

开工合影
微信图片_20230709170724.jpg

开工第一锤,由业主敲在要拆除的墙体的墙角(即拐角),
象征一锤定音的意思,也是新房动土的一种表示方式

业主敲下第一锤
微信图片_20230709171225.jpg

敲完的痕迹
微信图片_20230709171232.jpg
回复 支持 反对

使用道具 举报

 楼主| 发表于 2023-7-9 17:27:38 | 显示全部楼层
拆改 微信图片_20230709171414.jpg

微信图片_20230709171417.jpg

微信图片_20230709171420.jpg

微信图片_20230709171423.jpg

微信图片_20230709171426.jpg

微信图片_20230709171430.jpg

微信图片_20230709171435.jpg

微信图片_20230709171452.jpg

微信图片_20230709171456.jpg

微信图片_20230709171459.jpg

微信图片_20230709171502.jpg

微信图片_20230709171505.jpg

微信图片_20230709171508.jpg

微信图片_20230709171511.jpg

微信图片_20230709171515.jpg

微信图片_20230709171519.jpg

回复 支持 反对

使用道具 举报

 楼主| 发表于 2023-7-9 17:28:21 | 显示全部楼层
砌墙放样
微信图片_20230709171548.jpg

微信图片_20230709171554.jpg

微信图片_20230709171557.jpg

微信图片_20230709171600.jpg

微信图片_20230709171603.jpg

微信图片_20230709171618.jpg

微信图片_20230709171627.jpg

微信图片_20230709171631.jpg

微信图片_20230709171634.jpg

微信图片_20230709171637.jpg

微信图片_20230709171641.jpg

微信图片_20230709171651.jpg

微信图片_20230709171654.jpg
回复 支持 反对

使用道具 举报

 楼主| 发表于 2023-7-12 16:10:14 | 显示全部楼层
本帖最后由 格堂王姐 于 2023-7-12 16:18 编辑

砌墙中途

微信图片_20230712160656.jpg

微信图片_20230712160706.jpg

微信图片_20230712160710.jpg

微信图片_20230712160713.jpg

微信图片_20230712160716.jpg

微信图片_20230712160720.jpg

微信图片_20230712160726.jpg

微信图片_20230712160730.jpg

微信图片_20230712160733.jpg

微信图片_20230712160737.jpg
回复 支持 反对

使用道具 举报

 楼主| 发表于 2023-7-12 16:13:01 | 显示全部楼层
本帖最后由 格堂王姐 于 2023-7-12 16:18 编辑

客厅
IMG_5634.JPG


IMG_5635.JPG


IMG_5636.JPG


IMG_5637.JPG


IMG_5638.JPG


IMG_5639.JPG


IMG_5640.JPG


IMG_5641.JPG


回复 支持 反对

使用道具 举报

您需要登录后才可以回帖 登录 | 立即注册

本版积分规则

全国统一客服电话
0570-8028505

24x7小时免费咨询

  • 官方在线客服

    QQ客服:小西

    点击交谈

    QQ客服:良子

    点击交谈

    QQ客服:闵月

    点击交谈
  • 衢州市柯城区财富中心3号楼2楼

  • 衢州格堂装饰有限公司

  • 扫一扫关注官方微信

    获取一手特惠信息

快速回复 返回顶部 返回列表