• 手机版

    扫码体验手机版

  • 微信公众号

    扫码关注公众号

登录注册
游客您好
第三方账号登陆

[衢州] 悦蓉府4-1-向阳

[复制链接]
发表于 2023-10-21 15:40:37 | 显示全部楼层 |阅读模式
悦蓉府4-1-向阳

格堂装饰为您全程记录装修全过程!

小区名称
悦蓉府4-1
房屋面积
119㎡
户型结构
套房
装修风格
法式
装修方式
半包
装修造价
查看请联系客服万元
设计师
王工
项目经理
刘工
装修公司
格堂装饰
完工实景
完工实景
水电全景
水电全景
VR全景
VR全景
设计说明
温暖是一种潜意识,材质和色调可以将它表达出来,用心设计的日常,让生活关乎本心,更呵护本性。好的设计也许改变不了所有,却足以重塑美好的日常。
更多信息
客餐厅效果图

客厅1.jpg
客厅2.jpg
回复

使用道具 举报

 楼主| 发表于 2023-10-21 15:42:40 | 显示全部楼层
本帖最后由 格堂管家 于 2023-10-21 16:11 编辑


目      录


原始结构图
1.jpg
回复 支持 反对

使用道具 举报

 楼主| 发表于 2023-10-21 15:42:57 | 显示全部楼层
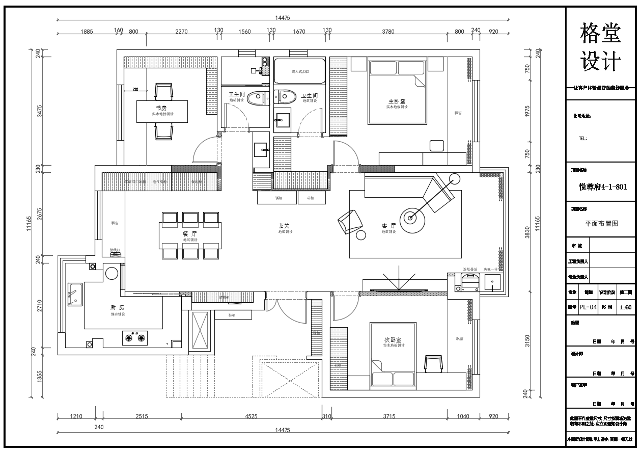
平面布置图

1697874126793.jpg
回复 支持 反对

使用道具 举报

 楼主| 发表于 2023-10-21 15:48:24 | 显示全部楼层
楼梯以及门口保护
c5f02e69030373d16e2a88fb111809b.jpg

d9c21e47c31cb9333faccddf3676e2e.jpg

e9c581588af4af84215ad6ec0a4135d.jpg

e17bbb44ae24426215828447eca2619.jpg
回复 支持 反对

使用道具 举报

 楼主| 发表于 2023-10-21 15:51:22 | 显示全部楼层
开工准备

d6da88c6dad0941d1528fb4e27d2819.jpg
回复 支持 反对

使用道具 举报

 楼主| 发表于 2023-10-21 15:53:55 | 显示全部楼层
本帖最后由 格堂管家 于 2023-10-21 15:55 编辑

临时马桶和下水口盖也安排上
9d970f8b5de62a4ef990771225ddcd0.jpg

aeeddd1402323dc2093cf4bae7c2a61.jpg


微信图片_202308230921031.jpg
回复 支持 反对

使用道具 举报

 楼主| 发表于 2023-10-21 15:54:33 | 显示全部楼层
开工大吉

微信图片_202308230920571.jpg
回复 支持 反对

使用道具 举报

 楼主| 发表于 2023-10-21 15:55:20 | 显示全部楼层
开工第一锤

微信图片_20230823092056.jpg
回复 支持 反对

使用道具 举报

 楼主| 发表于 2023-10-21 15:58:11 | 显示全部楼层
拆改

0d940c0d17f61651c9b65a282ac9f0a.jpg

8ae968bfef935f371bdcb2ade22b1ab.jpg

8d44412f22b8fb2e79964025bc26a0a.jpg

9ba6bbd2e89563310dd98a945a70bc0.jpg

44e0177c1979bcc03e3a17ced320d11.jpg

84d08258789905f19d7543dde0bbc79.jpg

423f891bfc6b50ceae93c341f97f34a.jpg

4830582bcb8192dd0f2c821c5fb4f09.jpg

b9d85e2b8504041736541c0a884f69d.jpg

b81fc8e4469b5b0901fa76158ab2487.jpg

dfe016f1d392addb112c1f7b9557c78.jpg

e10b2e89b6de3501641a184901347d6.jpg
回复 支持 反对

使用道具 举报

 楼主| 发表于 2023-10-21 16:03:04 | 显示全部楼层
拆改完成,准备砌墙
2c9ec3dc515cc444f92a0c4685970d7.jpg

5d3973b088c867b0e7440187f7414ad.jpg

25ff647fec7363429e95863da4daf39.jpg

63a9b36a72524585d8c7764d3cd9c10.jpg

7744f40a2a658c8c04225383a773149.jpg

7118c14068cccb0040cd6197166939b.jpg

3725f02165d97105b1d620911f30031.jpg

795af072e9c96e5f584c5a28461494b.jpg

9149bfc6df7ad4bc9dd3741b097fff3.jpg

54384f80c674ad179a12a8fe4607118.jpg

977598c230773a1877a975eab7a8a8f.jpg

ad169d74ccd78863097d7cf66e13f44.jpg

bcea3b56682a7627a84a1e5310e3f54.jpg

ae72d7becefe5840c0446056d33f19e.jpg
回复 支持 反对

使用道具 举报

您需要登录后才可以回帖 登录 | 立即注册

本版积分规则

全国统一客服电话
0570-8028505

24x7小时免费咨询

  • 官方在线客服

    QQ客服:小西

    点击交谈

    QQ客服:良子

    点击交谈

    QQ客服:闵月

    点击交谈
  • 衢州市柯城区财富中心3号楼2楼

  • 衢州格堂装饰有限公司

  • 扫一扫关注官方微信

    获取一手特惠信息

快速回复 返回顶部 返回列表