• 手机版

    扫码体验手机版

  • 微信公众号

    扫码关注公众号

登录注册
游客您好
第三方账号登陆

[衢州] 星月宸庐春熙园10-1#320㎡现代——纯净主义,简而精致

[复制链接]
发表于 2023-7-1 09:05:34 | 显示全部楼层 |阅读模式
星月宸庐春熙园10-1#320㎡现代——纯净主义,简而精致

格堂装饰为您全程记录装修全过程!

小区名称
星月宸庐
房屋面积
320㎡
户型结构
套房
装修风格
现代
装修方式
全包
装修造价
查看请联系客服万元
设计师
詹工
项目经理
杨工
装修公司
格堂装饰
完工实景
完工实景
水电全景
水电全景
VR全景
VR全景
设计说明
宸庐观星月,无界享悠然。墅级阔境,淡雅的中性色凝练纯粹质感,弧形元素自由贯穿,叙说轻盈灵动的生活美学。甄选丰富艺术佳品,任那一抹透明的海水蓝,清凉涌入了夏日胸怀。
更多信息
本帖最后由 格堂王姐 于 2023-7-1 11:24 编辑

效果图
微信图片_20230629091948.jpg
微信图片_20230629091954.jpg

微信图片_20230629091959.jpg

微信图片_20230629092002.jpg

微信图片_20230629092006.jpg

微信图片_20230629092022.jpg

微信图片_20230629092026.jpg

微信图片_20230629092030.jpg

微信图片_20230629092035.jpg

微信图片_20230629092039.jpg

微信图片_20230629092044.jpg

微信图片_20230629092047.jpg

微信图片_20230629092051.jpg

微信图片_20230629092055.jpg

微信图片_20230629092059.jpg

微信图片_20230629092103.jpg

微信图片_20230629092108.jpg

微信图片_20230629092112.jpg

微信图片_20230629092115.jpg

微信图片_20230629092120.jpg

微信图片_20230629092124.jpg

微信图片_20230629092128.jpg

微信图片_20230629092132.jpg

微信图片_20230629092211.jpg

微信图片_20230629092215.jpg

微信图片_20230629092219.jpg
回复

使用道具 举报

 楼主| 发表于 2023-7-1 09:06:44 | 显示全部楼层
回复 支持 反对

使用道具 举报

 楼主| 发表于 2023-7-1 09:14:26 | 显示全部楼层
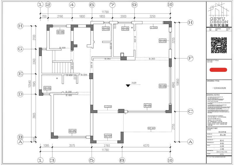
一层原始结构图

微信图片_20230629092157.jpg

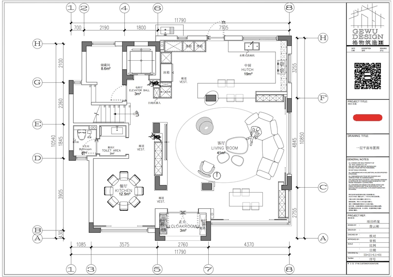
一层平面布置图

微信图片_20230629092143.jpg

二层原始结构图

微信图片_20230629092154.jpg

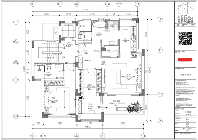
二层平面布置图

微信图片_20230629092147.jpg

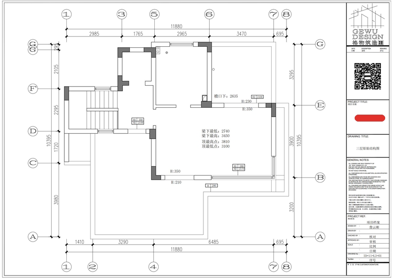
三层原始结构图

微信图片_20230629092136.jpg

三层平面布置图

微信图片_20230629092150.jpg


回复 支持 反对

使用道具 举报

 楼主| 发表于 2023-7-1 09:18:11 | 显示全部楼层
大门已经保护到位。 IMG_3892.JPG



卫生间简易马桶安装到位,防止后期施工中沙石堵塞进入,美观实用
微信图片_20230629085610.jpg


煤气表保护到位
微信图片_20230629085616.jpg

回复 支持 反对

使用道具 举报

 楼主| 发表于 2023-7-1 09:31:15 | 显示全部楼层
本帖最后由 格堂王姐 于 2023-7-1 09:32 编辑

开工仪式准备,开工横幅、鲜花、礼花准备到位,就等吉时!
开工桌摆好准备
微信图片_20230629085544.jpg


吉时到开工了,恭祝业主大人开工大吉!
仪式很短暂,家居装修却很长……与漫漫人生历程相比,这些短短一瞬,却包含了满满的心意。
我们竭力用自己的专业技能,让每位业主拥有最接近梦想的家!恭祝开工大吉!

开工合影
微信图片_20230701092827.jpg

开工第一锤,由业主敲在要拆除的墙体的墙角(即拐角),
象征一锤定音的意思,也是新房动土的一种表示方式

业主敲下第一锤
微信图片_20230629085552.jpg

敲完的痕迹
微信图片_20230629085601.jpg
回复 支持 反对

使用道具 举报

 楼主| 发表于 2023-7-1 09:35:11 | 显示全部楼层
拆改、拆除阶段:
微信图片_20230629085757.jpg

微信图片_20230629085815.jpg

微信图片_20230629085819.jpg

微信图片_20230629085823.jpg

微信图片_20230629085826.jpg

微信图片_20230629085940.jpg

微信图片_20230629085945.jpg

微信图片_20230629085952.jpg

微信图片_20230629085957.jpg

微信图片_20230629090006.jpg

微信图片_20230629090010.jpg

微信图片_20230629090013.jpg

微信图片_20230629090017.jpg

微信图片_20230629090021.jpg

微信图片_20230629090025.jpg

微信图片_20230629090028.jpg

微信图片_20230629090032.jpg

微信图片_20230629090036.jpg

微信图片_20230629090040.jpg

微信图片_20230629090044.jpg

微信图片_20230629090048.jpg

微信图片_20230629090051.jpg

微信图片_20230629090055.jpg

微信图片_20230629090059.jpg

微信图片_20230629090102.jpg

微信图片_20230629090105.jpg

微信图片_20230629090108.jpg

微信图片_20230629090112.jpg

微信图片_20230629090116.jpg

微信图片_20230629090118.jpg

微信图片_20230629090124.jpg

微信图片_20230629090128.jpg

微信图片_20230629090132.jpg

微信图片_20230629090135.jpg

微信图片_20230629090139.jpg

微信图片_20230629090144.jpg

微信图片_20230629090252.jpg

微信图片_20230629090307.jpg

微信图片_20230629090358.jpg

微信图片_20230629090404.jpg

微信图片_20230629090408.jpg

微信图片_20230629090412.jpg

微信图片_20230629090416.jpg

微信图片_20230629090419.jpg

微信图片_20230629090422.jpg

微信图片_20230629090426.jpg

微信图片_20230629090429.jpg

微信图片_20230630100848.jpg

微信图片_20230630100912.jpg

微信图片_20230630100917.jpg

微信图片_20230630100922.jpg

微信图片_20230630100932.jpg

微信图片_20230630100938.jpg

微信图片_20230630100942.jpg

微信图片_20230630100946.jpg

微信图片_20230630100950.jpg
回复 支持 反对

使用道具 举报

 楼主| 发表于 2023-7-1 09:39:48 | 显示全部楼层
本帖最后由 格堂王姐 于 2023-7-1 09:44 编辑

一楼拆改情况
IMG_3836.JPG

IMG_3837.JPG

IMG_3838.JPG

IMG_3839.JPG

IMG_3840.JPG

IMG_3841.JPG
IMG_3889.JPG

IMG_3842.JPG

IMG_3843.JPG

IMG_3844.JPG

IMG_3845.JPG

IMG_3846.JPG

回复 支持 反对

使用道具 举报

 楼主| 发表于 2023-7-1 09:40:56 | 显示全部楼层
二楼拆改情况:
IMG_3847.JPG

IMG_3848.JPG

IMG_3849.JPG

IMG_3850.JPG

IMG_3851.JPG

IMG_3852.JPG

IMG_3853.JPG

IMG_3854.JPG

IMG_3855.JPG

IMG_3856.JPG

IMG_3857.JPG

IMG_3858.JPG

IMG_3859.JPG

IMG_3860.JPG

IMG_3861.JPG

IMG_3862.JPG

IMG_3863.JPG

IMG_3864.JPG

IMG_3865.JPG

IMG_3866.JPG

IMG_3867.JPG
回复 支持 反对

使用道具 举报

 楼主| 发表于 2023-7-1 09:43:11 | 显示全部楼层
本帖最后由 格堂王姐 于 2023-7-8 15:19 编辑

楼梯

IMG_3868.JPG

IMG_3869.JPG

IMG_3870.JPG

三楼拆改情况:
IMG_3871.JPG

IMG_3872.JPG

IMG_3873.JPG

IMG_3874.JPG

IMG_3875.JPG

IMG_3876.JPG

IMG_3877.JPG

IMG_3878.JPG

IMG_3879.JPG

IMG_3880.JPG

IMG_3881.JPG

IMG_3882.JPG

IMG_3883.JPG

IMG_3884.JPG

IMG_3885.JPG

IMG_3886.JPG

IMG_3887.JPG

IMG_3888.JPG
回复 支持 反对

使用道具 举报

 楼主| 发表于 2023-7-8 15:32:01 | 显示全部楼层
砌墙放样
微信图片_20230701102505.jpg

微信图片_20230701102508.jpg

微信图片_20230701102513.jpg

回复 支持 反对

使用道具 举报

您需要登录后才可以回帖 登录 | 立即注册

本版积分规则

全国统一客服电话
0570-8028505

24x7小时免费咨询

  • 官方在线客服

    QQ客服:小西

    点击交谈

    QQ客服:良子

    点击交谈

    QQ客服:闵月

    点击交谈
  • 衢州市柯城区财富中心3号楼2楼

  • 衢州格堂装饰有限公司

  • 扫一扫关注官方微信

    获取一手特惠信息

快速回复 返回顶部 返回列表