• 手机版

    扫码体验手机版

  • 微信公众号

    扫码关注公众号

登录注册
游客您好
第三方账号登陆

[衢州] 文华园23-1-7#107m2---知

[复制链接]
发表于 2023-3-8 10:23:10 | 显示全部楼层 |阅读模式

格堂装饰为您全程记录装修全过程!

小区名称
文华园
房屋面积
107㎡
户型结构
三房两厅
装修风格
现代
装修方式
全包
装修造价
查看请联系客服万元
设计师
王工
项目经理
余工
装修公司
格堂装饰
完工实景
完工实景
水电全景
水电全景
VR全景
VR全景
设计说明
在城市化不可逆的进程中,我们抛弃了过往的生活方式,创造一个个独立,崭新的空间。我们极度满足,实现人最大化的所有需求,追求最舒适最便捷和最精美。但同时在崭新的生活中,尝试找回慢慢丢失对环境的眷恋和最自然的的感知能力。
更多信息

回复

使用道具 举报

 楼主| 发表于 2023-3-8 10:23:20 | 显示全部楼层
本帖最后由 wangyan 于 2023-3-8 10:46 编辑

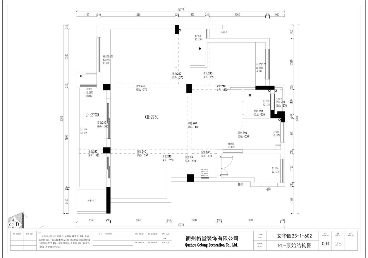
图纸

原始结构图

原始结构图

平面布置图

平面布置图
回复

使用道具 举报

 楼主| 发表于 2023-3-8 10:25:03 | 显示全部楼层
本帖最后由 wangyan 于 2023-3-9 17:22 编辑

效果图

客厅沙发背景

客厅沙发背景

客厅电视背景

客厅电视背景
回复

使用道具 举报

 楼主| 发表于 2023-3-8 10:25:14 | 显示全部楼层
本帖最后由 wangyan 于 2023-3-8 10:43 编辑

开工前保护
1.png
2.png
3.png
4.png
回复 支持 反对

使用道具 举报

 楼主| 发表于 2023-3-8 10:43:19 | 显示全部楼层
开工大吉
5.png
6.png
8.png
9.png
回复

使用道具 举报

 楼主| 发表于 2023-3-8 10:43:26 | 显示全部楼层
本帖最后由 wangyan 于 2023-3-8 10:44 编辑

拆墙放样
10.png
11.png
12.png
13.png
14.png
15.png
16.png
回复

使用道具 举报

您需要登录后才可以回帖 登录 | 立即注册

本版积分规则

全国统一客服电话
0570-8028505

24x7小时免费咨询

  • 官方在线客服

    QQ客服:小西

    点击交谈

    QQ客服:良子

    点击交谈

    QQ客服:闵月

    点击交谈
  • 衢州市柯城区财富中心3号楼2楼

  • 衢州格堂装饰有限公司

  • 扫一扫关注官方微信

    获取一手特惠信息

快速回复 返回顶部 返回列表