• 手机版

    扫码体验手机版

  • 微信公众号

    扫码关注公众号

登录注册
游客您好
第三方账号登陆

[江山] 揽月湾9# 235m2现代-自由生长

[复制链接]
发表于 2022-9-29 19:27:59 | 显示全部楼层 |阅读模式
揽月湾9# 235m2现代-自由生长

格堂装饰为您全程记录装修全过程!

小区名称
揽月湾
房屋面积
235㎡
户型结构
套房
装修风格
现代
装修方式
半包
装修造价
查看请联系客服万元
设计师
王工
项目经理
郑工
装修公司
格堂装饰
完工实景
完工实景
水电全景
水电全景
VR全景
VR全景
设计说明
设计理念:“微风在园中唤起一阵阵花浪,就像那静谧、柔弱的大海。浪花在绿叶丛中流逝,于是又现出花园和绿色的大海。翠绿的群山向大河奔去,只有牧童在这里欢乐歌舞。玫瑰花儿绽开了金色的花瓣, 给这颗童心带来了欢娱。”——切斯瓦夫·米沃
更多信息
回复

使用道具 举报

 楼主| 发表于 2022-9-29 19:30:26 | 显示全部楼层
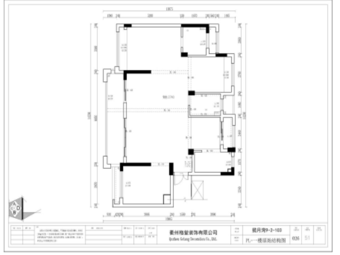
原始结构图

2787560a5415d02a1e8f6df37656e60.png

28076d463ecf917b98b809fbc811b21.png


回复 支持 反对

使用道具 举报

 楼主| 发表于 2022-9-29 19:32:29 | 显示全部楼层
平面布置图

fa5e1b2fd1800df6e142eeeef0c8a39.png

5549cbb4f9cf79d0aae4890cbbc4e21.png

回复 支持 反对

使用道具 举报

 楼主| 发表于 2022-10-5 10:29:47 | 显示全部楼层
开工前大门先保护到位

88a4cd7e5b98f9ca4881936cfd7281f.jpg

b2ae5421fad842f9650039b7327853a.jpg

f88fea90d43ad30a77c5a1387e09bd9.jpg

46dbd922b05a446cb3c6bbab371b6d1.jpg

回复 支持 反对

使用道具 举报

 楼主| 发表于 2022-10-5 10:30:48 | 显示全部楼层
卫生间的简易马桶安装到位,防止后期施工中沙石堵塞进入,美观又干净!

ae3f1de5747963a0f293e141fbe6736.jpg
回复 支持 反对

使用道具 举报

 楼主| 发表于 2022-10-5 10:32:09 | 显示全部楼层
排水管道用格堂装饰专用保护盖保护,防止后期施工砂石堵塞管道

11e23bba301be7b448f59a0036cf8ea.jpg

0950de32aeb32308888d9bfab912fde.jpg

41081fc3f575df3832f8fae13ea352f.jpg

fa9c8f21c15fc53a01a6e14097375ed.jpg

310bc24db05b4731b6299549ad8f4d1.jpg

回复 支持 反对

使用道具 举报

 楼主| 发表于 2022-10-5 10:36:44 | 显示全部楼层
开工锤已准备好

93fc199eb9856833adf0ee89d698522.jpg

回复 支持 反对

使用道具 举报

 楼主| 发表于 2022-10-5 10:37:42 | 显示全部楼层
送给业主美丽的鲜花

5a49d3ffccdf4c65e78652786a1c2dc.jpg
回复 支持 反对

使用道具 举报

 楼主| 发表于 2022-10-5 10:38:39 | 显示全部楼层
燃气已用格堂专门的保护袋保护好

b7e85ba901cf5104e61bd4a711edbd4.jpg
回复 支持 反对

使用道具 举报

 楼主| 发表于 2022-10-5 10:39:24 | 显示全部楼层
一切准备就绪,等待开工吉时

040b8a1996c1237ffbd7a6e84c574db.jpg
回复 支持 反对

使用道具 举报

您需要登录后才可以回帖 登录 | 立即注册

本版积分规则

全国统一客服电话
0570-8028505

24x7小时免费咨询

  • 官方在线客服

    QQ客服:小西

    点击交谈

    QQ客服:良子

    点击交谈

    QQ客服:闵月

    点击交谈
  • 衢州市柯城区财富中心3号楼2楼

  • 衢州格堂装饰有限公司

  • 扫一扫关注官方微信

    获取一手特惠信息

快速回复 返回顶部 返回列表