• 手机版

    扫码体验手机版

  • 微信公众号

    扫码关注公众号

登录注册
游客您好
第三方账号登陆

[龙游] 遂昌君悦府17#320㎡

[复制链接]
发表于 2024-4-20 14:10:09 | 显示全部楼层 |阅读模式

格堂装饰为您全程记录装修全过程!

小区名称
君悦府
房屋面积
320㎡
户型结构
别墅
装修风格
现代
装修方式
全案
装修造价
查看请联系客服万元
设计师
詹工
项目经理
方工
装修公司
格堂装饰
完工实景
完工实景
水电全景
水电全景
VR全景
VR全景
设计说明
更多信息
本帖最后由 格堂小静 于 2024-11-6 15:55 编辑

客餐厅效果图
微信图片_20240515135911.jpg

微信图片_20240515135932.jpg

微信图片_20240515140005.jpg

微信图片_20240515140033.jpg

微信图片_20240515140047.jpg

客厅
微信图片_20240515140205.jpg

微信图片_20240515140219.jpg

微信图片_20240515140240.jpg

微信图片_20240515140326.jpg

房间
微信图片_20240515135615.png

微信图片_20240515135801.jpg

微信图片_20240515135819.jpg

微信图片_20240515140059.jpg

微信图片_20240515140132.jpg


卫生间
微信图片_20240515135847.jpg

微信图片_20240515140114.jpg
书房
微信图片_20240515134436.png

微信图片_20240515140153.jpg
厨房
微信图片_20240515140254.jpg

微信图片_20240515140305.jpg








目      录




回复

使用道具 举报

 楼主| 发表于 2024-4-20 14:10:38 | 显示全部楼层
本帖最后由 格堂小静 于 2024-5-15 15:14 编辑

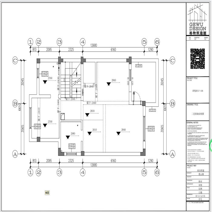
原始结构图
微信图片_20240515133036.png

微信图片_20240515133207.png

微信图片_20240515133318.png

微信图片_20240515133442.png

微信图片_20240515133519.png


回复 支持 反对

使用道具 举报

 楼主| 发表于 2024-4-20 14:11:01 | 显示全部楼层
本帖最后由 格堂小静 于 2024-5-15 15:15 编辑

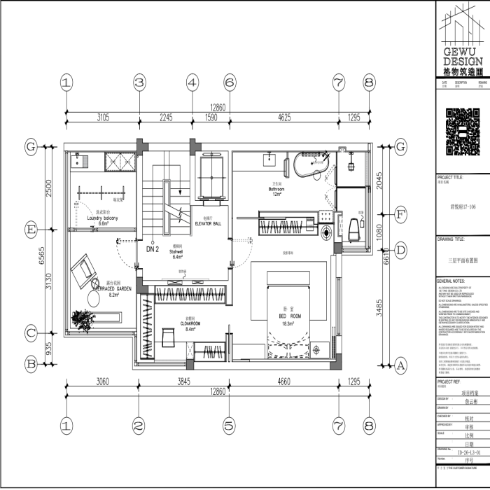
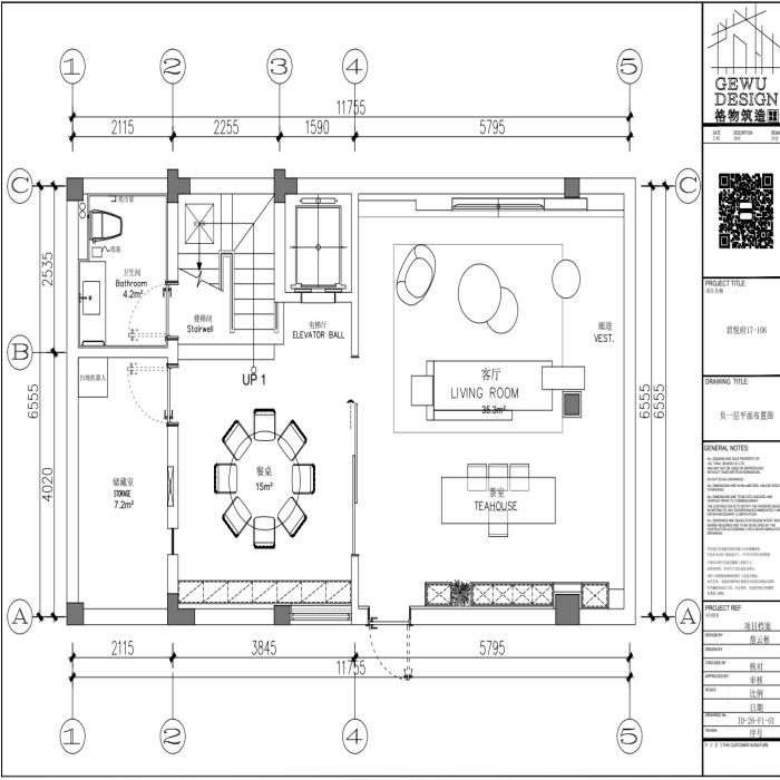
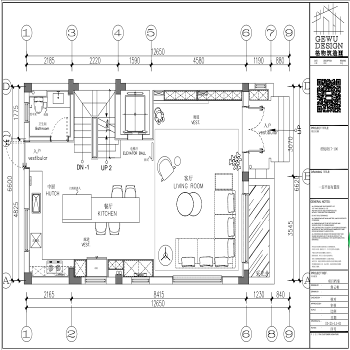
平面布置


微信图片_20240515132734.png

微信图片_20240515133138.png

微信图片_20240515133239.png

微信图片_20240515133350.png


回复 支持 反对

使用道具 举报

 楼主| 发表于 2024-4-20 14:12:15 | 显示全部楼层
一楼

IMG_6461.JPG

IMG_6462.JPG

IMG_6463.JPG

IMG_6464.JPG

IMG_6465.JPG
回复 支持 反对

使用道具 举报

 楼主| 发表于 2024-4-20 14:13:12 | 显示全部楼层
IMG_6466.JPG


IMG_6467.JPG

IMG_6468.JPG

IMG_6469.JPG

IMG_6470.JPG
回复 支持 反对

使用道具 举报

 楼主| 发表于 2024-4-20 14:14:09 | 显示全部楼层
二楼房间

IMG_6471.JPG

IMG_6472.JPG

IMG_6473.JPG

IMG_6474.JPG
回复 支持 反对

使用道具 举报

 楼主| 发表于 2024-4-20 14:14:50 | 显示全部楼层
三楼

IMG_6475.JPG

IMG_6476.JPG

IMG_6477.JPG

IMG_6478.JPG

IMG_6479.JPG
回复 支持 反对

使用道具 举报

 楼主| 发表于 2024-4-20 14:18:57 | 显示全部楼层
开工布置完

IMG_6492.JPG
回复 支持 反对

使用道具 举报

 楼主| 发表于 2024-4-20 14:20:41 | 显示全部楼层
临时马桶安置处

IMG_6454.JPG
回复 支持 反对

使用道具 举报

 楼主| 发表于 2024-4-20 14:21:10 | 显示全部楼层
开工金锤

IMG_6456.JPG
回复 支持 反对

使用道具 举报

您需要登录后才可以回帖 登录 | 立即注册

本版积分规则

全国统一客服电话
0570-8028505

24x7小时免费咨询

  • 官方在线客服

    QQ客服:小西

    点击交谈

    QQ客服:良子

    点击交谈

    QQ客服:闵月

    点击交谈
  • 衢州市柯城区财富中心3号楼2楼

  • 衢州格堂装饰有限公司

  • 扫一扫关注官方微信

    获取一手特惠信息

快速回复 返回顶部 返回列表