• 手机版

    扫码体验手机版

  • 微信公众号

    扫码关注公众号

登录注册
游客您好
第三方账号登陆

[衢州] 江湾半岛16-#387㎡现代简约——臻品逸雅&诗意情深

[复制链接]
发表于 2024-7-16 09:39:21 | 显示全部楼层 |阅读模式
江湾半岛16-#387㎡现代简约——臻品逸雅&诗意情深

格堂装饰为您全程记录装修全过程!

小区名称
江湾半岛
房屋面积
387㎡
户型结构
别墅
装修风格
现代
装修方式
全案
装修造价
查看请联系客服万元
设计师
詹工
项目经理
杨工
装修公司
格堂装饰
完工实景
完工实景
水电全景
水电全景
VR全景
VR全景
设计说明
时代迁变,铭记必是那极具仪式之瞬
浪漫与艺术碰撞,乃空间新解
以现代之法寻回久失仪式
生活需仪式,无关矫情
系对生活之热爱、幸福之敏感
亦为起始
更多信息
本帖最后由 格堂王姐 于 2024-7-25 16:45 编辑

效果图

微信图片_20240716094627.jpg


微信图片_20240716094706.jpg


微信图片_20240716094713.jpg


微信图片_20240716094720.jpg


微信图片_20240716094727.jpg
回复

使用道具 举报

 楼主| 发表于 2024-7-16 09:59:10 | 显示全部楼层
微信图片_20240716094731.jpg



微信图片_20240716094739.jpg


微信图片_20240716094745.jpg


微信图片_20240716094750.jpg


微信图片_20240716094800.jpg
回复 支持 反对

使用道具 举报

 楼主| 发表于 2024-7-16 09:59:34 | 显示全部楼层
微信图片_20240716094813.jpg



微信图片_20240716094820.jpg


微信图片_20240716094827.jpg


微信图片_20240716094833.jpg


微信图片_20240716094839.jpg
回复 支持 反对

使用道具 举报

 楼主| 发表于 2024-7-16 10:02:08 | 显示全部楼层
本帖最后由 格堂王姐 于 2025-7-14 21:24 编辑



负二楼原始结构图
QQ浏览器截图20240716094008.png


负二楼平面布置图
QQ浏览器截图20240716094055.png


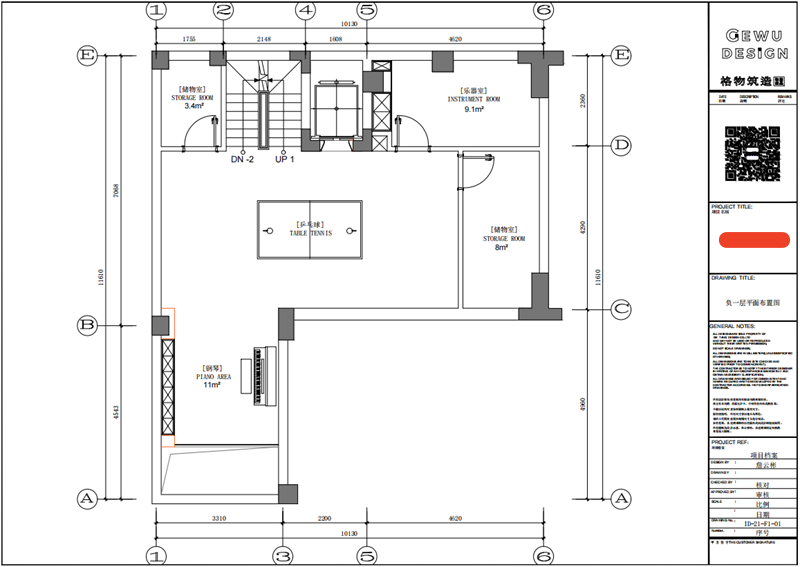
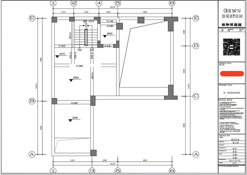
负一楼原始结构图
QQ浏览器截图20240716094144.png


负一楼平面布置图
QQ浏览器截图20240716094122.png

回复 支持 反对

使用道具 举报

 楼主| 发表于 2024-7-16 10:03:44 | 显示全部楼层
本帖最后由 格堂王姐 于 2025-3-14 16:21 编辑

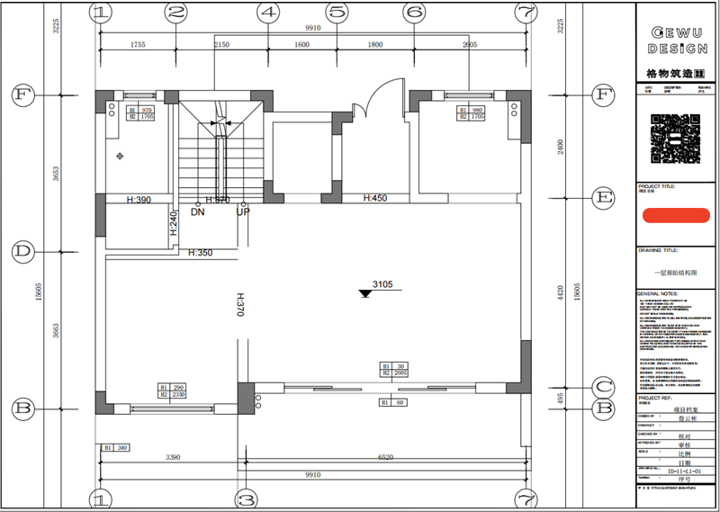
一楼原始结构图
QQ浏览器截图20240716094231.png

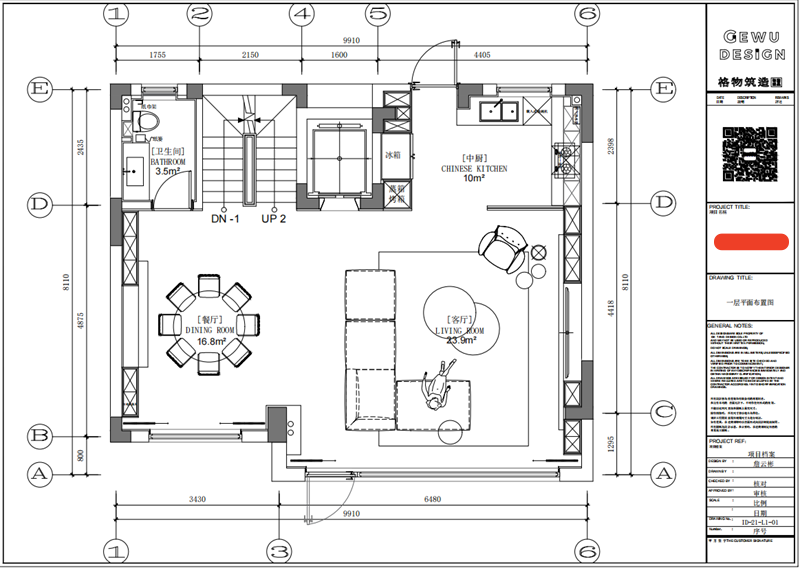
一楼平面布置图
QQ浏览器截图20240716094210.png

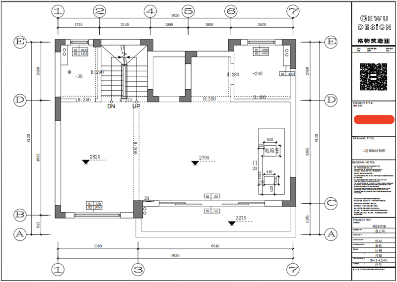
二楼原始结构图
QQ浏览器截图20240716094325.png

二楼平面布置图
QQ浏览器截图20240716094257.png

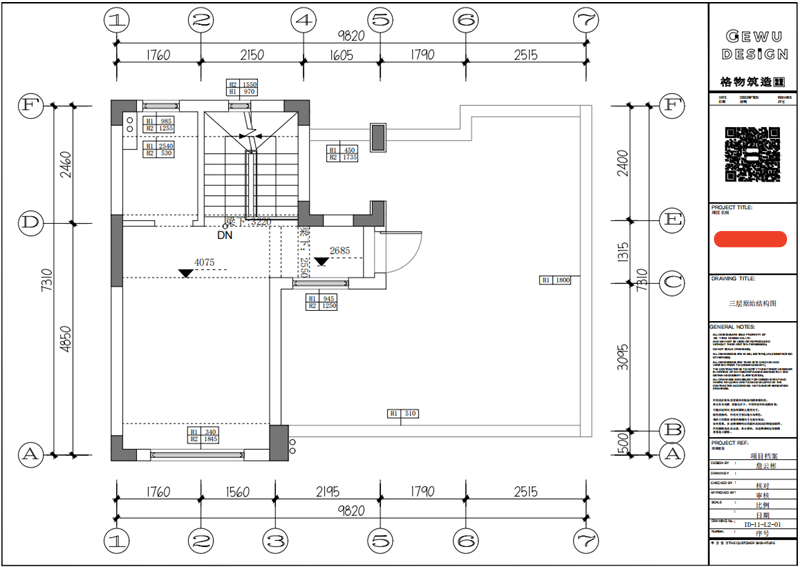
三楼原始结构图
QQ浏览器截图20240716094354.png

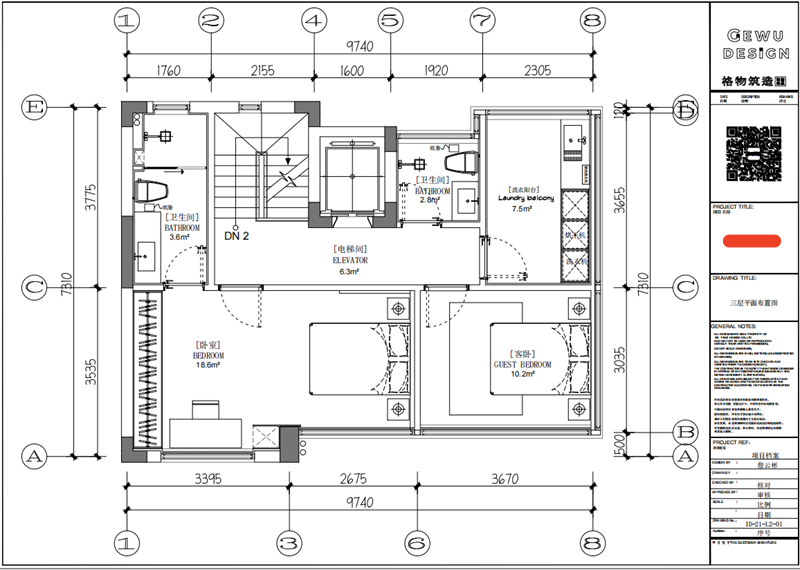
三楼平面布置图
QQ浏览器截图20240716094419.png
回复 支持 反对

使用道具 举报

 楼主| 发表于 2024-7-16 10:05:33 | 显示全部楼层
大门已经保护到位。
IMG_20240714_091349.jpg

煤气表已经保护到位。
IMG_20240714_092109.jpg

临时小便池已经安放好了:每一个施工现场都会配备临时小便斗,并且时刻保持干净卫生,保证工地环境干净整洁。
IMG_20240714_092139.jpg

排水管道用格堂专用保护盖保护,防止后期施工中砂石堵塞管道
IMG_20240714_092218.jpg

回复 支持 反对

使用道具 举报

 楼主| 发表于 2024-7-16 10:06:22 | 显示全部楼层
开工仪式准备,开工横幅、鲜花、礼花准备到位,就等吉时!
开工桌摆好准备
微信图片_20240714153737.jpg

吉时到开工了,恭祝业主大人开工大吉!
仪式很短暂,家居装修却很长……与漫漫人生历程相比,这些短短一瞬,却包含了满满的心意。
我们竭力用自己的专业技能,让每位业主拥有最接近梦想的家!恭祝开工大吉!
开工合影
微信图片_20240714153630.jpg

开工第一锤,由业主敲在要拆除的墙体的墙角(即拐角)上,象征一锤定音的意思,也是新房动土的一种表示方式
业主敲下第一锤
微信图片_20240714153658.jpg

敲完的痕迹
IMG_20240714_092303.jpg

回复 支持 反对

使用道具 举报

 楼主| 发表于 2024-7-16 10:28:40 | 显示全部楼层
拆改阶段:
房间铲灰,是为了防止墙顶面出现空鼓,在做好油漆后不会有墙顶面整块油漆脱落的现象。
拆除可以让空间利用更合理。为了整体结构的稳定性和安全性,承重墙是一定不能动的。
微信图片_20240716100728.jpg


微信图片_20240716100740.jpg


微信图片_20240716100743.jpg


微信图片_20240716100747.jpg

回复 支持 反对

使用道具 举报

 楼主| 发表于 2024-7-25 16:47:42 | 显示全部楼层
IMG_20240724_114611.jpg



IMG_20240724_114617.jpg


IMG_20240724_114627.jpg


IMG_20240724_114630.jpg


IMG_20240724_114638.jpg
回复 支持 反对

使用道具 举报

 楼主| 发表于 2024-7-25 16:48:00 | 显示全部楼层
IMG_20240724_114640.jpg



IMG_20240724_114646.jpg


IMG_20240724_114648.jpg


IMG_20240724_114655.jpg


IMG_20240724_114658.jpg
回复 支持 反对

使用道具 举报

您需要登录后才可以回帖 登录 | 立即注册

本版积分规则

全国统一客服电话
0570-8028505

24x7小时免费咨询

  • 官方在线客服

    QQ客服:小西

    点击交谈

    QQ客服:良子

    点击交谈

    QQ客服:闵月

    点击交谈
  • 衢州市柯城区财富中心3号楼2楼

  • 衢州格堂装饰有限公司

  • 扫一扫关注官方微信

    获取一手特惠信息

快速回复 返回顶部 返回列表