• 手机版

    扫码体验手机版

  • 微信公众号

    扫码关注公众号

登录注册
游客您好
第三方账号登陆

[衢州] 国风澜园38-1-40#221㎡法式——优雅永不过时

[复制链接]
发表于 2024-2-21 12:43:57 | 显示全部楼层 |阅读模式
国风澜园38-1-40#221㎡法式——优雅永不过时

格堂装饰为您全程记录装修全过程!

小区名称
国风澜园
房屋面积
221㎡
户型结构
上下跃层
装修风格
法式
装修方式
半包
装修造价
查看请联系客服万元
设计师
吴工
项目经理
王工
装修公司
格堂装饰
完工实景
完工实景
水电全景
水电全景
VR全景
VR全景
设计说明
本案以复古法式为主题,大基调为白色,形成别具一格的室内装修风格,细节点缀花卉壁纸,金属拉手,明亮不失特色,精致优雅。
更多信息
本帖最后由 格堂黄姐 于 2024-2-22 08:55 编辑

效果图

mmexport1708519291358.jpg

mmexport1708519294686.jpg
回复

使用道具 举报

 楼主| 发表于 2024-2-21 14:34:11 | 显示全部楼层
回复 支持 反对

使用道具 举报

 楼主| 发表于 2024-2-21 14:35:24 | 显示全部楼层
本帖最后由 格堂黄姐 于 2024-2-23 10:04 编辑

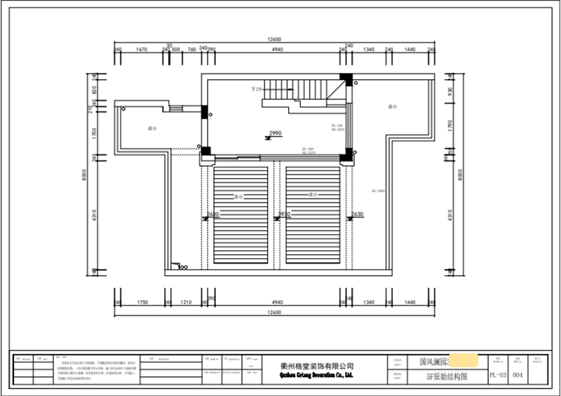
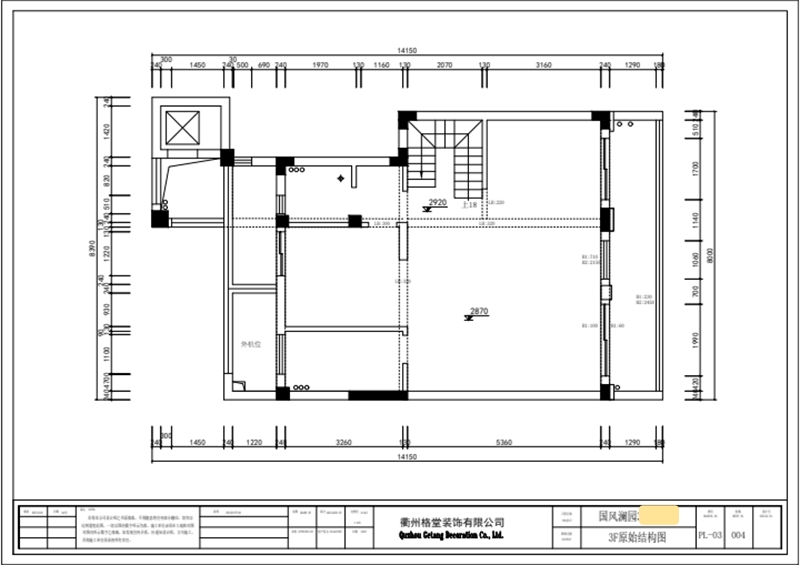
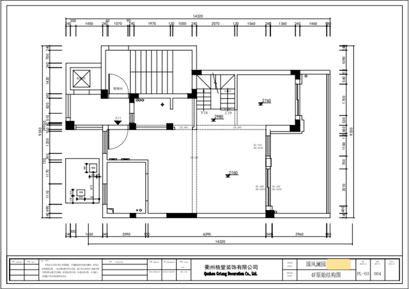
原始结构图
三楼
mmexport1708518956466.jpg

四楼
mmexport1708519024306.jpg

五楼
mmexport1708519033853.jpg

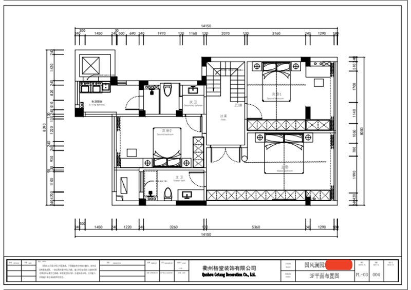
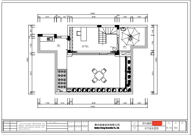
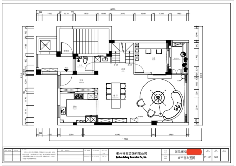
平面布置图
三楼
mmexport1708519007189.jpg

四楼
mmexport1708519029693.jpg

五楼
mmexport1708519040158.jpg

回复 支持 反对

使用道具 举报

 楼主| 发表于 2024-2-21 14:36:54 | 显示全部楼层
本帖最后由 格堂黄姐 于 2024-2-21 15:20 编辑

门槛已经保护到位。
mmexport1708490197935.jpg

大门已经保护到位。
mmexport1708490159155.jpg

煤气表已经保护到位。
mmexport1708490175495.jpg
回复 支持 反对

使用道具 举报

 楼主| 发表于 2024-2-21 14:37:29 | 显示全部楼层
本帖最后由 格堂黄姐 于 2024-3-2 16:14 编辑

临时小便池已经安放好了:每一个施工现场都会配备临时小便斗,并且时刻保持干净卫生,保证工地环境干净整洁。
IMG_20240302_135023.jpg

排水管道用格堂专用保护盖保护,防止后期施工中砂石 堵塞管道
IMG_20240226_091509.jpg

IMG_20240226_091517.jpg
回复 支持 反对

使用道具 举报

 楼主| 发表于 2024-2-21 14:39:29 | 显示全部楼层
本帖最后由 格堂黄姐 于 2024-10-8 20:56 编辑

开工仪式准备,开工横幅、鲜花、礼花准备到位,就等吉时!
mmexport1708490155851.jpg

吉时到开工了,恭祝业主大人开工大吉!
mmexport1708490262802.jpg

开工第一锤,由业主敲在要拆除的墙体的墙角上,象征一锤定音,也代表着新房动土。
mmexport1708490219084.jpg

敲的痕迹
mmexport1708490215290.jpg
回复 支持 反对

使用道具 举报

 楼主| 发表于 2024-2-25 19:34:00 | 显示全部楼层
本帖最后由 格堂黄姐 于 2024-2-26 14:04 编辑

开工前,电梯口墙面和地面已经保护到位
IMG_20240226_091223.jpg

IMG_20240226_091224.jpg

IMG_20240226_091227.jpg

IMG_20240226_091229.jpg

IMG_20240226_091231.jpg
回复 支持 反对

使用道具 举报

 楼主| 发表于 2024-2-25 19:34:11 | 显示全部楼层
本帖最后由 格堂黄姐 于 2024-2-26 14:04 编辑

对角
IMG_20240226_091238.jpg

IMG_20240226_091239.jpg

IMG_20240226_091242.jpg

IMG_20240226_091244.jpg

IMG_20240226_091247.jpg
回复 支持 反对

使用道具 举报

 楼主| 发表于 2024-2-26 14:07:14 | 显示全部楼层
本帖最后由 格堂黄姐 于 2024-10-8 20:59 编辑

设计师和项目经理正在按图纸拆改放样,确保放样无误。
mmexport1708654046460.jpg

mmexport1708654052859.jpg

mmexport1708654056479.jpg

mmexport1708654059861.jpg

mmexport1708654038092.jpg

回复 支持 反对

使用道具 举报

 楼主| 发表于 2024-2-26 14:08:45 | 显示全部楼层
mmexport1708654012707.jpg


mmexport1708654015575.jpg

mmexport1708654028332.jpg

mmexport1708654033625.jpg

mmexport1708654042476.jpg
回复 支持 反对

使用道具 举报

您需要登录后才可以回帖 登录 | 立即注册

本版积分规则

全国统一客服电话
0570-8028505

24x7小时免费咨询

  • 官方在线客服

    QQ客服:小西

    点击交谈

    QQ客服:良子

    点击交谈

    QQ客服:闵月

    点击交谈
  • 衢州市柯城区财富中心3号楼2楼

  • 衢州格堂装饰有限公司

  • 扫一扫关注官方微信

    获取一手特惠信息

快速回复 返回顶部 返回列表