• 手机版

    扫码体验手机版

  • 微信公众号

    扫码关注公众号

登录注册
游客您好
第三方账号登陆

[衢州] 春晓云筑3-1-2#105㎡现代——白黑茶

[复制链接]
发表于 2024-2-28 16:05:58 | 显示全部楼层 |阅读模式
春晓云筑3-1-2#105㎡现代——白黑茶

格堂装饰为您全程记录装修全过程!

小区名称
春晓云筑
房屋面积
105㎡
户型结构
套房
装修风格
现代
装修方式
半包
装修造价
查看请联系客服万元
设计师
杨工
项目经理
周工
装修公司
格堂装饰
完工实景
完工实景
水电全景
水电全景
VR全景
VR全景
设计说明
以简介,黑白元素构造整个空间
更多信息
本帖最后由 格堂王姐 于 2024-3-24 10:37 编辑

效果图

QQ浏览器截图20240324103142.png


QQ浏览器截图20240324103228.png


QQ浏览器截图20240324103313.png
回复

使用道具 举报

 楼主| 发表于 2024-2-28 16:07:25 | 显示全部楼层
本帖最后由 格堂王姐 于 2024-6-14 11:53 编辑

目      录


回复 支持 反对

使用道具 举报

 楼主| 发表于 2024-2-28 16:07:38 | 显示全部楼层
本帖最后由 格堂王姐 于 2024-3-24 10:39 编辑

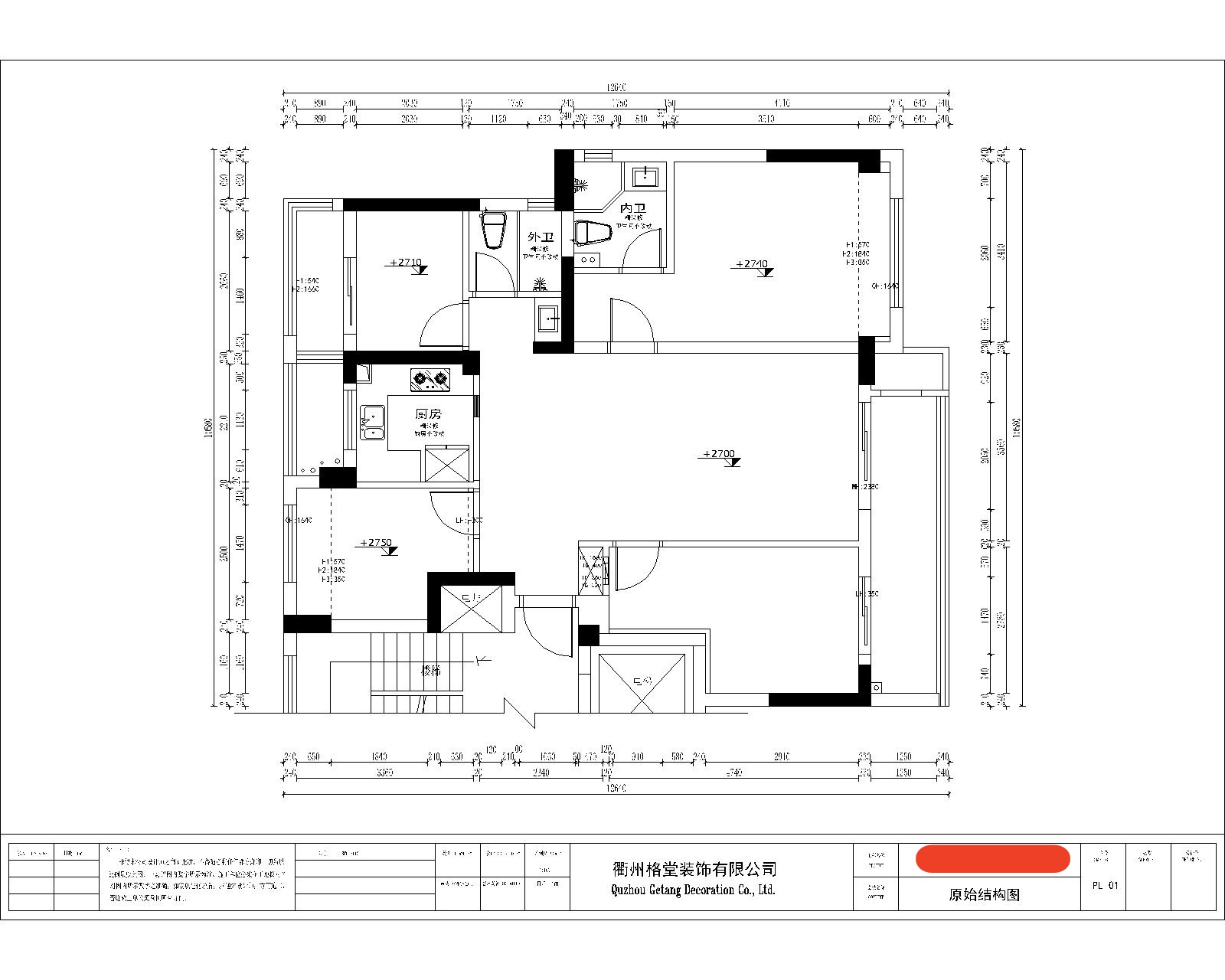
原始结构图
微信图片_20240324102517.jpg

平面布置图
微信图片_20240324102526.jpg

回复 支持 反对

使用道具 举报

 楼主| 发表于 2024-2-28 16:07:52 | 显示全部楼层
本帖最后由 格堂王姐 于 2024-3-24 10:15 编辑

大门已经保护到位。
IMG_20240320_094058.jpg


回复 支持 反对

使用道具 举报

 楼主| 发表于 2024-2-28 16:13:53 | 显示全部楼层
本帖最后由 格堂王姐 于 2024-2-28 16:23 编辑

开工仪式准备,开工横幅、鲜花、礼花准备到位,就等吉时!
开工桌摆好准备
微信图片_20240228161713.jpg

吉时到开工了,恭祝业主大人开工大吉!
仪式很短暂,家居装修却很长……与漫漫人生历程相比,这些短短一瞬,却包含了满满的心意。
我们竭力用自己的专业技能,让每位业主拥有最接近梦想的家!恭祝开工大吉!
开工合影
微信图片_20240228161647.jpg


开工第一锤,由业主敲在要拆除的墙体的墙角(即拐角)上,象征一锤定音的意思,也是新房动土的一种表示方式
业主敲下第一锤
微信图片_20240228161640.jpg


敲完的痕迹
微信图片_20240228161846.jpg
回复 支持 反对

使用道具 举报

 楼主| 发表于 2024-2-28 16:14:11 | 显示全部楼层
本帖最后由 格堂王姐 于 2024-3-24 10:16 编辑

电梯口墙面和地面都贴好了格堂专用的保护垫。
IMG_20240320_094102.jpg


IMG_20240320_094114.jpg


IMG_20240320_094117.jpg


IMG_20240320_094119.jpg


IMG_20240320_094122.jpg


IMG_20240320_094127.jpg


IMG_20240320_094130.jpg


IMG_20240320_094132.jpg


IMG_20240320_094134.jpg


IMG_20240320_094140.jpg
回复 支持 反对

使用道具 举报

 楼主| 发表于 2024-3-12 10:49:34 | 显示全部楼层
本帖最后由 格堂王姐 于 2024-3-12 10:53 编辑

拆改阶段:
房间铲灰,是为了防止墙顶面出现空鼓,在做好油漆后不会有墙顶面整块油漆脱落的现象。
拆除可以让空间利用更合理。为了整体结构的稳定性和安全性,承重墙是一定不能动的。
微信图片_20240312102834.jpg


微信图片_20240312102858.jpg


微信图片_20240312102902.jpg
回复 支持 反对

使用道具 举报

 楼主| 发表于 2024-3-12 10:49:49 | 显示全部楼层
本帖最后由 格堂王姐 于 2024-3-12 10:53 编辑

微信图片_20240312102938.jpg



微信图片_20240312102941.jpg


微信图片_20240312102945.jpg
回复 支持 反对

使用道具 举报

 楼主| 发表于 2024-3-12 10:53:53 | 显示全部楼层
微信图片_20240312102948.jpg



微信图片_20240312102952.jpg


微信图片_20240312102955.jpg
回复 支持 反对

使用道具 举报

 楼主| 发表于 2024-3-24 10:21:21 | 显示全部楼层
拆改已完成

IMG_20240320_094307.jpg


IMG_20240320_094310.jpg


IMG_20240320_094313.jpg


IMG_20240320_094317.jpg


IMG_20240320_094322.jpg
回复 支持 反对

使用道具 举报

您需要登录后才可以回帖 登录 | 立即注册

本版积分规则

全国统一客服电话
0570-8028505

24x7小时免费咨询

  • 官方在线客服

    QQ客服:小西

    点击交谈

    QQ客服:良子

    点击交谈

    QQ客服:闵月

    点击交谈
  • 衢州市柯城区财富中心3号楼2楼

  • 衢州格堂装饰有限公司

  • 扫一扫关注官方微信

    获取一手特惠信息

快速回复 返回顶部 返回列表