[常山] 常山百悦城2-3-1#214㎡现代——梦想家·诗意的生活 |
|
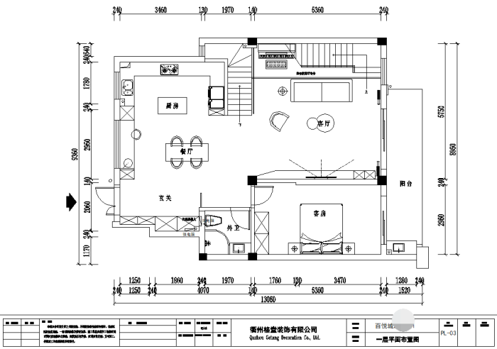
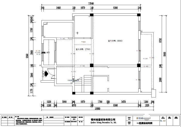
常山百悦城2-3-1#214㎡现代——梦想家·诗意的生活
格堂装饰为您全程记录装修全过程! 设计说明
复试楼梯就要把它露出来,也可以作为背景还实用;刚好原来楼梯比较陡,都要改楼梯;还有二层建议设计个水吧台,这样方便点;生活不是浓妆艳抹的刻意渲染,而是长年累月经营后充满人居温度的空间形态。家之于人,是自己给自己找到的最好的生活状态。
本案充分调动动静秩序,布局严谨,摒弃过多的设计语言传送,基于生活细节,以空间作为生活轨迹的导向,实现生活方式的多方面充足和日常交互。 更多信息
| |
|
|


在线客服
微信客服
关注有礼