• 手机版

    扫码体验手机版

  • 微信公众号

    扫码关注公众号

登录注册
游客您好
第三方账号登陆

淬炼精兵!第一届格堂装饰2025户型优化大赛圆满收官!

查看内容

淬炼精兵!第一届格堂装饰2025户型优化大赛圆满收官!

2025-1-17 09:36| 发布者: 格堂设计| 查看: 475| 评论: 0

第一届格堂装饰2025户型优化大赛

本赛事聚焦星月宸庐167㎡顶楼户型,参赛设计师们同做一个户型,结合家庭人口结构和生活场景需求进行户型优化设计,空间意向图、空间模型、效果图、手绘图均选做。

我们将综合考量每个设计师的平面户型优化能力,核心聚焦于户型方案的创新性、可行性、完整性、审美性等诸多方面,设立金奖1名、银奖2名、铜奖3名、设计助理第一名,表彰具有卓越户型优化感的设计方案!


大赛内容

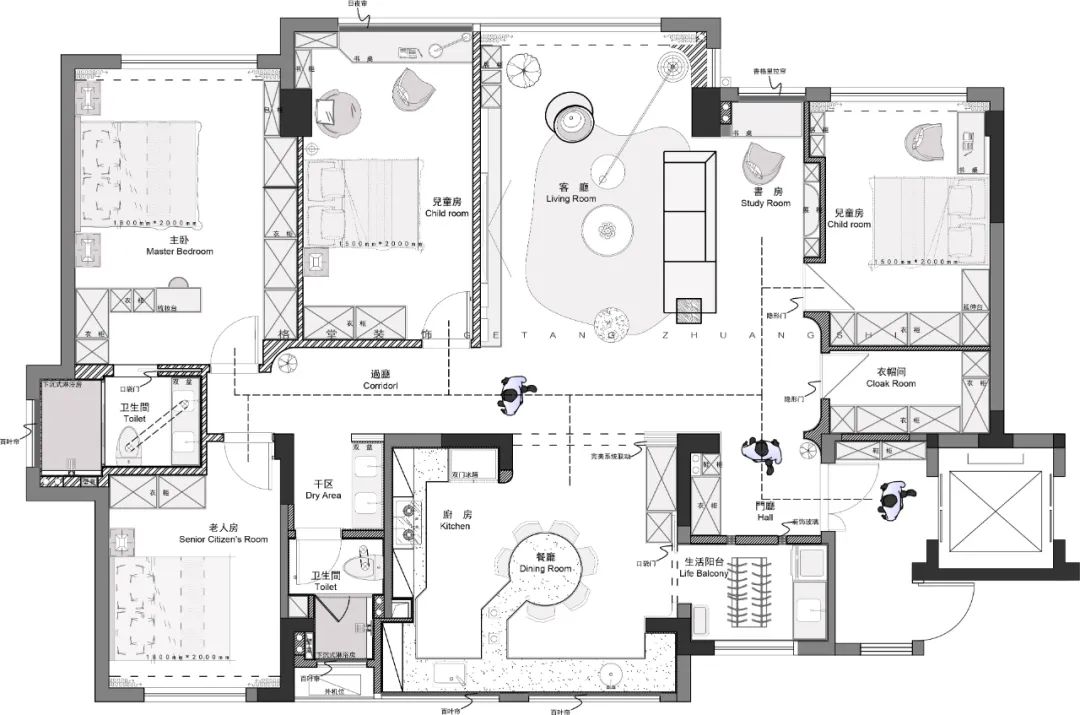
大赛户型


客户模拟

业主:企业总裁
设计需求:
① 一家5口,一个老人房,两个小男孩,小孩房间都按初中生标准设计,小孩的房间大小基本差不多一样,任意风格都可以,每个小孩的储物衣柜长度1.5米到2米之间,每个小孩要有一个单独的做作业的地方,公共空间需要有一个共享的书桌,书房亦可。
② 老人房最好是1.8米的床,平时住一个,偶尔会有两个老人,1.5米的床也可以接受,储物衣柜长度1.5米到2米之间。
③ 主卫生间要双台盆,女主人衣柜要多,主卫的淋浴房宽度不能小于1.1米。
④ 餐桌尽量用圆桌,需要有一个晾衣服的小阳台。

注意事项

建筑南面无敌景观,剪力墙不能动,飘窗可以敲;卫生间均有沉箱降板,方案需考虑下水条件,所有主立管井不能调整,厨房需要燃气开通考虑;入户大门可调整,电梯厅不可改动,只能放鞋柜。


1月17日周五晚
第一届格堂装饰2025户型优化大赛总决赛
群星闪耀,并驱争先
经过激烈的海选比拼

△设计师组

△设计助理组

本赛季12强选手已经产生
最终迎来总决赛收官对决
共襄这场设计竞赛的狂欢


冠军之夜!巅峰对决!
12强选手们带来了精彩绝伦的户型优化设计方案
每一套设计方案都充满了创意与惊喜
冠军又将花落谁家?
让我们拭目以待!

吴杭丽
事业一部



我的设计主题,家是温暖的港湾,它不仅仅是一套房子,更是一种情感的寄托,在这里可以感受到无尽的关爱与温暖,也可以体验到生活的美好与幸福。
入户电梯出来后,我将原先南北朝向的入户门改成了东西方向,原始入户门处做了鞋柜。这样电梯出来能直接进到入户玄关,我将玄关设计的十分大气,南北通透,采光极好,边缘也做了弧形的造型设计,第一印象撑起了这个家的门面担当。
玄关往右是一个储藏间的设计,业主并未提出这一功能需求,但我还是设计出来了,因为实际生活中,大件的行李箱、落地扇以及生活用品,都需要一个储藏空间进行收纳规划。
根据业主需求,我设计的两个男孩房房间一样大,都是1.5米的床,都配备了书桌,书桌也都靠窗,整体采光通风都很不错。
外卫干湿分区设计,淋浴房和智能马桶使用舒适,空间足够还设计了壁龛,扫地机器人也能合理添置在这里。
客餐厅是一个大横厅的设计,中间以电视背景起到隔断作用,既保持了相对独立,又通透联动。餐厅满足了业主想要的圆桌,一家人围坐在一起非常温馨。阳台一隅设计了一个书房大板桌,也是家人们办公学习的极佳场所。
父母房考虑到有些时候1到2人住,还是放置了1.8米的床,书桌靠窗,父母的营养品、保温杯等生活用品,便都有了摆放位置。
考虑到家庭居住人口是比较多的,厨房设计的很宽敞,包含了嵌入式冰箱和常用的厨房家电,整个厨房动线合宜,和客餐厅也有很好的联动。
主卧大套间设计,主卫1.1米淋浴房成功安排,双台盆1.5米,使用上也很舒适。走入式的衣帽间,一体的书柜兼梳妆台设计,日常化妆和临时加班都能兼顾到了。
独立的洗漱阳台设计在北面,空间也比较大,洗衣机、烘干机、晾晒功能齐全,都能满足。


杨波
事业二部



入户电梯出来后,我将原先南北朝向的入户门改成了东西方向,原始入户门处做了鞋柜。因为是一梯一户的户型,鞋子都可以在门口进行一个更换。
进门后是一组承重墙,恰好做成玄关柜,墙这边弧形的造型跟过来,刚好兼顾到这里的两根包管。柜子没有一面全做,两根包管处可做灯光或造景,形成巧妙的断层效果。
因为家里有老人,生活习惯都更倾向于有晾晒的,所以晾晒的空间需要考虑到。玄关左侧原本是一个卫生间,我改做成了洗衣房,仍然保留了原始落地窗的通透性,没有另做柜子和储物,尽量让洗衣房显得大一些。洗衣机、烘干机、水池、扫地机器人等都可以放这里。洗衣房的门是玻璃移门,要用透光不透景的做法,不影响视觉上的美观度。
原始户型是一个4个卫生间的户型,因为是顶楼,上面没有下水管,我便将朝南的这个卫生间取消掉,连同边上的房间一起,隔出了两个男孩房,两个房间面积差不多。原来的这个房间,靠窗户是飘窗,并不是落地窗,所以拆除飘窗后,书桌摆放到窗边,这里会以升降帘为主。考虑到储物功能需求,角落里我还做了800库的设计。
客厅是一个双阳台大横厅设计,我保留了落地窗,这样靠南面没有任何遮挡,一整个无敌景观。侧边还有一个落地窗,也保留起来,做了一个美丽景观。现在并未考虑到电视这些,选择上很多样性,投影可以,电视也可以,电视不一定挂墙上,也可以是移动的。
因为原来阳台的位置,有根很大的梁,基本上不管怎么设计,这根梁都会露梁,很难用整个吊顶把它包掉,所以我把客厅往回挪,靠阳台这边放置书桌,做成一个亲子学习互动的空间。
餐厨一体式设计,因为冰箱位置的深度较深,我做成嵌入式冰箱设计,跟餐边柜齐平。因为厨房这边够大了,所以原先靠厨房的这堵墙,我实际是往厨房这边移了,尽量把外卫空间放大。因为现在只有两个卫生间,外卫最少有三个人来使用,所以做成干湿分区和双台盆,双台盆有2米长,能满足大家的一个日常使用。
父母房开门原先是从上面的过道下来,我改成从外卫干区进来,这样往主卫那边扩出了一整排衣柜,父母房的空间能保证用上1.8米的床。这样方案里的所有房间全部都用了1.8米的床,睡眠体验很舒适。
主卧床尾有一组很大的书柜和衣柜,侧面叶做了一组衣柜,储物空间丰富。空间很大,主卧可以放2米的床,主卫也有1.8米的双台盆,舒适体验感拉满。


李聪
龙游分公司



我的设计主题是,适从,无拘,释放空间的自由度,让生活无拘无束。入户电梯出来后,我将原先南北朝向的入户门改成了东西方向,原始入户门处做了鞋柜。入户门进来的位置,是一个玄关加鞋柜的功能。
入户门左边之前是保姆房和卫生间位置,改做洗衣房后,我把洗衣机放在靠电梯这边,尽量降低洗衣时的噪音对男孩房的影响。
玄关往南走,通过一个优美的弧形引导到客厅,客厅是电视机加岛台的一体设计,多功能岛台既可以做书桌,平时人少的时候还可以坐这里吃早餐。
沙发选用了一个双面沙发,阳台本身是一个绝佳观景位,平时闲暇的时候坐这里看风景,好不惬意。餐厅依照业主需求,摆放进一个1.3米的圆桌,靠墙是一整面的餐边柜和收纳柜,储物功能强大。
主卧室安排在西南边,完美实现双台盆,马桶,1.1米淋浴房的功能需求,主卧空间也非常的宽敞舒适,大大的衣帽间,满足女主人的衣物收纳需求。
原主卧室的位置给到了父母房,原主卫一分为二,改成两个卫生间,父母房单独一个内卫,老人起夜时更方便一些。衣柜设计了床尾柜、电视柜、书桌一体,大部分老人房都会把电视机考虑进去,看看新闻追追剧。
两个男孩的房间,大小仅相差一个平方,东北角的男孩房,向原始的外卫借了一部分空间做衣柜。
原始的外卫取消,扩到厨房空间,依次过来是冰箱,水槽,灶具,考虑到厨房一个燃气开通问题,还保留了一个三联动的移门。


江晓灵
常山分公司



我这个方案主打一个南面的空间全部打开。首先我没有把进门的位置换掉,因为入户的这个位置我个人是比较喜欢的。边上设计了800库,平常家里人比较多,各种物件都很多,类似于一个小型储藏间。
玄关进来之后,我把原来一个套房的卫生间变成了一个外卫,可以给房间使用,也可以整个客餐厅去使用。朝南这里做了一个男孩房,1.5米的床,兼具了书桌和衣柜的设计。
父母房相对来说空间较小,但也包含了衣柜设计和1.5米的床,因为常住的是一个人,是足够的。
北面设备平台打通之后,我把整个卫生间、厨房都往下移了,露出了一个承重墙,这里巧妙改成干区,形成一个回形的动线。
淋浴房和洗衣房相邻,可以和业主去沟通,一个卫生间的淋浴房能否满足家里的使用需求,如果能满足,可以取消掉这个淋浴房,包进洗衣房里面,这样洗衣房会更大更舒适。
餐厅设计很洋气,做了一个书桌岛台加圆桌的形式,之间是一个咬合的状态,造型的穿插感独具层次。平常孩子上学,两三个吃饭,可以坐在岛台这里,家里人多来客人的时候,再把1.35米圆桌拉出来,就可以尽情招待了。
客厅这里是一个双面沙发,窝在沙发上就能看见美好的风景,阳光直接洒进房间,整个人都是暖阳阳的。整个客厅的梁其实是比较矮的,但梁矮并不影响这里放沙发,我们是坐在沙发上的,如果包不了,那就让它露出来,反而是一个特别的造型。
两个男孩房的房间比例是差不多的,可摆放1.5米的床,但东北角的男孩房因为有承重墙,局限性比较大,所以借用了一点卫生间的空间,在床尾做了柜子。卫生间可以做薄柜,显得大一些。
主卧其实是比较传统的一个做法,开间很大,我在床尾做了一排衣柜,收纳空间充足。这里还用了一个台盆外置的做法,让整个空间更通透。淋浴房是长条形的,也充分满足了需求。
我的4个房间,是做了一个类似于四叶草户型的做法,在4个角相对独立,因为老人的作息和年轻人不一样,两个小孩的作息,初中生也是需要这样的独立空间。
这么大的一个家庭,我们的储物空间要求是非常高的,所以不管是房间的衣柜,还是公共区域的收纳柜,都设计的比较多。
我喜欢把自己放在这个空间里面,我觉得一个家里面,空间的一些细节是比较打动人的,与空间融合在一起,会让整个家的氛围更好,更温暖。


毛阿敏
大宅部



我以为,每个房子的一种空间,需要和外部环境稍微结合一下,因星月宸庐本身地势较高,在整个小区的东侧有一个荷花池,所以发散灵感,我的设计主题是,山有扶苏,隰有荷华。
在我拿到这个户型的时候,我希望做出一个有效的动静分区,我把原先南面一个带内卫的房间,这里恰好没有一个承重结构,可以把房间的墙全部拿掉,变成了一个客厅区域,把客厅和餐厅做到一起。
这样一打开入户门,就能直观看到一个非常开阔的客餐厅空间,东西两侧是7.94米将近8米的一个大开间,南北两侧也有5.74米,这样一个客餐厅的体量是非常大的,能有效体现一个大平层的空间感。
餐厅区域做了一个多功能组合,岛台非常长,达到一个2.4米的空间,加上一个标准的1.35米六人桌,岛台与餐桌的穿插咬合实现功能的多边形,增加空间的趣味性。餐厅区域和客厅区域,属于一个共同的空间,后期使用上的灵活性也很强。
原先入户门边上是一个保姆房,我改成了厨房的设计,这样空间是非常实用的U字型厨房,操作台、水池区、冰箱以及高柜电器柜一气呵成。从厨房到餐厅到客厅,整体动线非常流畅舒适。
一家5口这么多人一起住一个房子,洗晒需求远远大于年轻人自己住,年轻人倾向于用烘干机,但我们尽可能去尊重并保留老年人自己的生活习惯。与父母同住有个很关键的点,常常都是父母去洗晒衣物,所以我把长辈房和洗晒阳台都放在了一个南面的空间,这样父母起来洗漱,或者洗衣服的整个动线,完全不会影响到其他家庭成员,还能进行一个有效的晾晒。
朝北的男孩房,有大致16个平方的一个空间,标准的大书桌、衣柜、书柜,完全满足小朋友的个人需求。当小朋友越来越大的时候,在客餐厅的活动会很少,会更多沉浸在自己的这个独立空间里。
还有一个很关键的点,我在原先的外卫这里,做了一个有效的干湿分区,并且是一个双台盆,充分考虑了所有家庭成员的洗漱,和长辈起夜的生活习惯,这样直线距离是非常短的,很快就能到达。
东北侧的男孩房,因为两个承重柱以及外墙的原因,没办法进行扩大了,只能向外卫这边借用了部分空间做衣柜,保证摆放进1.5米的床,同时能做到一个标准的1.2米书桌。
主卧空间有18个平方,用了比较常规的做法,标准的双台盆,独立的淋浴房及马桶。我把所有的衣柜放在床尾,保证2.2米大床之后,还保证了1.1米的过道,完全保留了一个主卧该有的体量。
从进门口开始,之后整体的一个动线,这边完全是活动区域,也就是家庭成员可能活动最多的一个空间,另一边是主要的一个睡眠区,每个家庭成员有各自的房间,进行了有效的动静分区。
我觉得像这种房子的装修,其实还是回归到生活原本的、最初的想法跟状态。


邓卫娟
事业二部



我做这个方案,主要考虑在满足功能的基础上,讲究一下生活的便利性。从这个角度展开,我进户门是做了一个改变的,有些客户对改进户门是很难接受的,甚至会觉得改了进户门,就相当于改了风水,但我不这么认为,我反倒觉得是挺酷的一个思维角度。
最近我在看的蔷薇风暴里面,新闻女主播她家里的房子就是这样的,电梯出来直接入户,十分便利。
门厅左侧做了一个卫生间,主要考虑两点,一点我自己的生活方式是进门会想要洗一下手,比较便利。另外一点就是父母房,靠其他两个卫生间比较远,考虑到老人使用卫生间的便利性,就在这里做了卫生间。
入户玄关这块包管的区域,会结合柜子做一个穿插,甚至做点灯光和造型,增加艺术美感。
入户衣帽间,我赋予了它非常多的实用功能,比如出差回来手上的行李箱,冬天的围巾、厚外套,考虑进门的时候把它们放置好。衣柜的下面一节,不需要打开柜门,行李箱直接能推进去。同时考虑了次净衣功能,进门随手就可以挂在衣帽间里面,也能收纳很多的生活用品。
次净衣区,我要给大家安利一个新的物品,衣物处理机,它的功能性非常好,直接可以吸在柜子里,是自动感应的。这样我们的衣服,比如说前一天有抽烟的,或者说吃了火锅的,它可以自动的去味除菌。
同时入户衣帽间还有一个功能,像现在流感比较严重的这种情况,我们进门后,可以在这个区域做衣物、身体的消杀,能更好的呵护家里的小朋友,健康方面有所保障。
衣帽间的门考虑做一个杂志幽灵门,有两点考虑,一是可以增加一下墙面的亮点,另外一个就是使用上的便利性,考虑我拿着行李箱或重物的话,稍微带一下就滑过去了。
南面卫生间取消后,我做成了6米多大横厅,和书房做了一个结合,保留飘窗位置做成休闲区域,飘窗那里的两根管子,刚好和书桌做成一个整体,实用美观。
南面景观绝佳,双阳台保留,可以欣赏美丽的风景,洗晒阳台也放在这个区域,做一个洗烘叠放。
我保留了原结构的餐厨关系,可以达到我的要求,整体没做大改,冰箱是借了卫生间的一部分空间,就和柜子齐平了。设计吧台弱化了这一块的剪力墙,还能成为空间里的小亮点,吃个早饭,喝点小酒,美滋滋。
两个男孩房,房间大小一致,功能一致,都靠近卫生间,都离爸妈房间比较近,可以做到一碗水端平,不会出现孩子们吵闹着抢房间的情况。
卫生间干区加了一个储物柜,可以放洗澡前要用的浴巾浴袍等物品,就近拿取很方便,这样东北角的男孩房打开门,也不会直接对着镜子。
主卧把原来的过道利用起来了,相当于有了一个小的衣帽间,还用了台盆外置的设计,这样整个主卧就能尽量打开,变得更加通透舒适。
方案总体来说,活动区域比较开阔,居住的舒适度也高,采光通风都挺好的,动静分离也不错,我自己挺喜欢的。


王斌耀
大宅部



我的设计主题是,境,点境之意。因为南面是非常好的一线风景,所以在做这个方案的时候,就是在功能需求满足的前提下,尽量把重要的空间放在南面,比如说客餐厅、主卧室、两个小孩房。厨房、卫生间、父母房,我会考虑放在北面。
首先我改了入户门的方向,重视玄关的一个呈现。客餐厅放在南面靠阳台的位置,大平层的感觉一定要体现出来。
厨房是将原来的卫生间合并到一起,下面就是洗晒阳台。
客户是一位总裁,我认为套房式的主卧设计是很有必要的,我将原始主卧和北面的客房全部连通,作为一个整体的主卧来呈现,套房的功能性十分完善,整体的通透感也很强。
两个男孩房,业主需求里提到要尽量的公平公正,我把两个房间都放在了南面,面积大小基本一样。
因为餐厅挪到客厅一起了,所以原始餐厅位置,就改成了父母房。4个房间,整体来说,都是比较开阔的。
整体生活动线简洁明了,保证了公共空间的大气通透,南面的美丽景观也让人心旷神怡。


梁意荣
事业二部



我的设计主题是,心之所居,至简而美。首先入户门我改变了朝向,并借用原来房门的位置,做了一组入户鞋柜。进门之后,借用原来卫生间干区的空间,做了一个入户门厅,尺寸其实是比较大的,达到1.75米的空间尺寸。管道这个位置,可以通过全屋定制来做造型,做一个入户的玄关。
门厅的北面是洗晒阳台,洗衣机、烘干机、水池、壁挂小洗衣机,这些功能都能满足。借用阳台跟门厅之间的墙体,做一些玻璃砖或是彩绘玻璃,透一部分光到门厅,增强采光。
我把原来南面的卫生间拆除后扩到了客厅,同时做了小书桌,旁边有书柜、展示柜,满足了业主需求。
整个的客厅,从沙发位到电视墙,开间达到4.3米,尺寸也比较大,包括南面一大半的阳台也包进了客厅,从这里能欣赏到窗外的美丽风景,特别是从沙发这个位置往东南方向看。
餐厅做了餐厨一体设计,将北面的阳台,包括设备平台,一起扩到了厨房空间,操作台实用便利,整体动线舒适。洗碗机、餐边柜,都可以考虑做起来。
餐桌旁边有两根下水管,我没有考虑动它,而是做到了岛台的中间,借用这两根下水管的位置,可以做高脚杯的杯架,也能起到很好的装饰作用。
南面两个男孩房,差异化很小,两个房间都是放1.5米的床,同时配有书桌和足够的衣柜。
因为常住人口基本上5到6人,人口比较多,外卫同时使用,可能出现3到4人的情况,所以我做了干湿分区和双台盆的设计,外卫外面预留了一个空调外机位。
主卧做了比较多的衣柜,床尾一整排衣柜,包括侧边一个转角式的衣柜加梳妆台。内卫设计了一个口袋门,双台盆,淋浴房按要求做到了1.1米以上。
北面是常规的一个父母房,1.8米的床,配了1.8米左右的一组衣柜。
整个家里的储物空间,主卧室是足够多的,但父母房和男孩房会相对少一些,我在入户门口另外配了一个衣帽间,包括家里的行李箱等杂物都可以放在这里,收纳空间是足够使用的。


徐美玲
大宅部



我的设计主题是,空间互动之美。我的方案,从电梯回家就已经开始了,从电梯第一眼打开之后,整体做了一个鞋柜加一个玄关背景的结合,进门口就有一个景,是从原先的保姆房借的空间,既保证原有电梯厅的大小,又有足够的储物量,也有了景观。
从入户门进去之后,就是家里的一个主要通道,终点的地方,也是做了一个小的景观,正面看,有一个书柜、储物柜、装饰柜加一个背景的结合,起到了一步一景的效果。
因为考虑一个外卫,两个男孩房和一个父母房,共用一个卫生间也是足够的。所以我将南面的卫生间拿掉,飘窗也拿掉了,改成了书房。
客厅加书房总共达到了6米的大开间,书房侧边稍做遮挡,融入了一个进门玄关的造型,多了一些储物和美观度。书桌延伸过去是承重柱和两根管子,一起做了设计上的结合。书桌长度很长,两个小孩再加一个大人使用都绰绰有余。
客厅有绝佳的风景观赏位置,考虑朝向东边看江景,体验感会更好。电视背景没做内嵌电视机,而是做了一个支架电视,这样背景更完整更统一,一整排的电视柜穿插过来到走廊,视觉上也很美观。
客厅的阳台包进来之后,我做了一个小台阶,这样后期要休闲娱乐的话,可以放到这边。同时还做了一个植物墙,成为空间里的小亮点。客厅和男孩房的中间,注重隐私的时候,可以关起来,想要流通的时候,也可以打开。
南面两个房间做了两个男孩房,空间是一模一样大的,柜子也是一样大的,1.5米的床加1.2米的书桌也一模一样,可随意挑选。
原厨房尺寸太小,我把原先餐厅、餐厅外的阳台、厨房外的阳台都包进来了,变成餐厨一体的设计,所以现在的厨房非常大,也非常通透,所有的家电需求和烹饪需求都能一一满足。中间我放了1.35米的大圆桌来满足业主需求,一家人都能坐得下。
原先的保姆房,改成了一个独立的洗衣房家政间,一排的储物柜,用于放置日常的家政用工具,洗衣机、烘干机、大的洗衣池都满足了,实际使用频率来说非常高。
外卫做了1.3米的台盆区,1米左右的马桶区,1.3米的淋浴房,是砸掉了一部分的外机位来补到卫生间,同时保留了这个外机位。
父母房我放到了北面,靠近外卫,老人晚上起夜上厕所很方便,早起去厨房烧早饭,或者去洗衣服,整个动线都很便利。
主卧进门口也做了一排柜子,类似于次净衣区,比如冬天回家的厚外套、包包、帽子、围巾等物品,都可以放到这边柜子。床尾也做了一整排的衣柜,柜子的储物量来说,完全能够满足女主人对储物的要求。
内卫按照原始尺寸来说,其实是不够的,所以往主卧稍微借了一点空间,做到双台盆,淋浴房在造型上也做了细微调整,马桶做成了壁挂式马桶,马桶右边做了吊柜,和镜子做结合,体现一个高低层次感。


翁岚
事业二部


我这个设计作品是比较生活化的一个设计,因为业主要求是有两个儿子,要两个小孩房,一个5口之家,可能三代人居住,这跟我自己家里的情况比较像,有实际的生活经验可以代入。
我改变了大门的入户朝向,改到了侧面,门口位置放一个临时用的鞋柜即可。原始入户门往内,留了一个小的次净衣柜,加一个小的壁龛设计,冬天不可能每天换衣服,那就可以挂到这里。
我把洗衣房设计在了门厅左边位置,空间相对独立,结合自己家里情况,都是晚上洗衣服比较多,洗衣机的声音实际是比较吵的,放在角落就不会影响到大家的休息。
考虑到孩子之间可能会争宠,南面的两个男孩房面积差不多大,功能布局也几乎一模一样,可以随意挑选。
台盆区域做了一个回形设计,边上还加了一个小岛台,平时家里人可以在这吃早饭。
厨房是全部打通了,放蒸烤箱、电器的空间是非常足够的,包括冰箱柜、零食柜也都贴心考虑到了。
客厅区域,利用组合沙发的一个不规则性,去做了一个双人书桌,再加一个西厨岛台的设计,方便后期真的大家一起用水的情况下,这边也能洗手。一整排的柜子,提供丰富的收纳空间。
阳台角落还留了一个小的家政区,现在接触到很多业主,在有洗烘套装的同时,还想要一个小的洗衣机,或是手持洗地机,那这里就可以放置。
因为偶尔会有两个老人居住,所以父母房我借了主卫的空间留到1.8米的床,加一个衣柜,同时离卫生间很近,对于老人的起夜习惯会更便利些。
主卧使用二分离酒店式设计,台盆外置,让整个空间更显通透舒适,又能同时避开卫生间门对着床。
动静分离合宜,客厅区域的大横厅,是主要的活动区,房间分布在三个角,互不影响,各自独立,休息时避免了相互打扰。


万兴阳
大宅部



我的设计主题是,有温度的家。我把入户门的位置改了一个方向,因为这样子可以把这边墙体砌薄,做一组到顶的鞋柜,还有一组备用鞋柜。
进来以后正对面,我把柜子跟承重墙拉到一样平,差不多有55公分,可以达到一个衣柜的深度,所以这里可以挂羽绒服,挂大衣,挂包包,作为一个次净衣区来使用。
左侧是洗衣房,借助了一点厨房的公共墙体,洗衣服、晾晒都能满足。
主进门的一个观景柜,转到右边一个侧景,转到左边一个侧景,不会一眼看完,留有余韵。
西南角做父母房,考虑到生活习惯的不同,这里离洗浴区比较近,离餐厨也比较近,还是相对方便的。
两个男孩房,基本平方数是差不多的,都是1.5米的床加书桌。但朝南的这个房间是卫生间改造而来,采光率较一般,所以我在阳台的造景区域,又增加了一个侧采光。
观景大平层,可以眺望窗外的美丽景观。阳台整个包进来,一角设计了造景区域,把室外的远景往内景去引。沙发也和书桌结合在了一起,后面是整排的装饰柜加书柜。
餐厅和厨房做成了一体开放式大空间,操作台面宽敞,功能齐全,蒸烤箱、洗碗机、零食柜、直饮机等都能一一满足。台面做了一个延伸,底部是空的,变身为吧台使用,增加了生活情调。
外卫设计一字排开,动线直接,台盆、马桶、淋浴房都是非常规的尺寸。
主卧往卫生间借了空间,也做了一个侧透景,做一块艺术玻璃,有一个美好的仪式感。床尾做了一整排柜子,保证了女主人充足的收纳要求。洗衣房也有个透景,用了艺术玻璃,透光不透影,光能借到玄关。
公共区域基本做护墙,做好后是平面化的,不会有太多的棱棱角角和断块,是非常简约大气的。


詹云彬
大宅部


宸庐观星月这一设计理念,旨在营造一种与自然深度交融且富有文化韵味的空间体验。今天我的主题是室内设计里面的建筑思维,在满足业主功能性需求的同时,给这个空间做出不一样的气质和感觉。具象化来说,我取了一个手法叫做解构,现在一起来看下这个方案具体是怎么去做的。
门还是原位置不动,进来以后是玄关,往左边一转,我觉得需要一个视觉的中心点,所以我在这里设置了一个鱼缸,也可以是雕塑或装饰品,都能起到同样的效果。
为什么设置在这里,而不是其他位置?首先玄关进门往这看,是好看的,人坐在书桌或沙发上往这看,也是一个景观,然后在餐厅里吃饭,看过来也很舒服,它兼顾到了三个面,所以理所应当设置在了这个位置。
进来以后,我很喜欢的一个手法就是把整个功能全部拆开,再进行重组。然后出现了两条动线,这样做的好处,可以让空间显得更大一点,非常通透。实际生活中也更便捷,比如菜场回来手里拎着菜,可以直接往厨房走,晚上加班回来想追剧,直接往客厅走,多一个选择。
通过暗藏的移门能直接进到厨房里,是比较常规的L型橱柜布局,并利用拆不掉的剪力墙做了一个冰箱高柜电器柜的设计,然后把这个移门藏进了剪力墙和冰箱之间的一个缝隙里,平常把门都打开,就会显得特别通透。
水槽位置往外,做了一个西厨的岛台,刚好也卡在了一个剪力墙上面。整个动线也是很流畅的,厨房做好饭出来,可以坐这里吃早餐。
4个房间,朝南方向安排了尽量多的房间,西南角做父母房,1.8米的床加床头柜,衣柜也是标准规格,做了隐形门。
因为三个房间都放在了南面,客厅位置稍小一点,但是也够用,电视背景,中间沙发,沙发后面是一个开放式的书房,整个动线是环绕起来的很舒适。
一南一北两个男孩房,面积差不多大,距离也离得近,能有一个很好的互动,玩可以一起尽兴的玩,休息可以各自安静的休息。
原卫生间区域,我又用到了解构的方法,把浴室柜、马桶、淋浴房这三个功能都拆解开,再重新组合成一个新的组合。双台盆的浴室柜朝着过道面,淋浴房外面设计了凳子,用玻璃做了一个马桶的空间,三个功能虽然被拆开了,不在同一个空间里面,但反而比之前更好用了。
利用角落做了一个洗衣阳台,其他的功能全部做成衣帽间,满足了女主人丰富的储物需求。每个自然而然的体块,让空间形成了一种独特的造型和气质。
主卧门打开的位置,可以做一个小背景,往北走,一个衣柜,双台盆,1.1米的淋浴房,马桶,业主的需求全都满足了。主卧做了1.8米左右的衣柜,放了1.8米的床,整体空间大气舒展。
大的方向就是把整个空间进行结构,重新排列组合,并形成多个岛型结构这样的一种布局,然后空间就有了更多的可能性、趣味性。


周宇航
设计助理第一名



我的设计理念是一首诗,路重道长疑途窄,复眼前望花明宽。
想法相对新颖,采用大胆创意的斜切来整合空间,公共区域都得到了很大限度的释放。
我改变了进户门方向,从电梯出来,外面可以做一个景观,再开门进屋,初极狭,才通人。复行数十步,豁然开朗。客餐厨形成了一个超棒的空间,整个沙发靠南面大窗户,能欣赏到绝美的风景。
客餐厨位于中心,东面一字排开了三个卧室,西南角做了主卧,一整个重心环绕,刚好户型位于顶层,真正的会当凌绝顶,一览众山小。
中间一个L型承重墙,巧妙融入了厨房区域里,并且做了一个面向过道的悬浮造景,视觉效果很酷。
两个男孩房,根据业主需求,房间大小基本差不多,可以公平做选择。父母房离卫生间很近,方便老人晚上起夜上厕所。
一切刚刚好,起初琢磨方案的时候就在担心怎么做,结果一面墙一隔,把主卧位置一调换,这里刚好还有个卫生间,一切都变得顺理成章。主卧空间非常大,一路折过来的衣柜,双台盆,淋浴房,也是刚刚好。
北面设计也是刚刚好,洗衣阳台包括了洗衣机、烘干机、台盆,外卫有台盆、马桶、淋浴房,还设计了壁龛,生活使用上舒适便利。
这个户型优化方案,一切都是刚刚好。


衢州装修界的设计大咖们亲自坐镇评委席,从专业出发,以生活为本,
对所有参赛案例进行了深入细致的评估,普遍认为首届的户型优化大赛展现出了极高水准。


秉持公平、公正、公开的原则
专业评审团对12强选手们的表现逐一进行打分
综合评分取前六名
排名揭晓!荣誉时刻!


金奖
毛阿敏


银奖
詹云彬,王斌耀


铜奖
梁意荣,万兴阳,徐美玲


设计助理第一名
周宇航


第一届格堂装饰2025户型优化大赛圆满举办,
设计师们迸发创意与激情,
在追求功能性与美观性的同时,融入了更多的人文关怀与情感温度,
打造承载生活美学与情感归属的理想居住空间。
我们是一群爱设计,享受设计的团队!
众多高手同台竞技,赛事堪比神仙打架,
发掘新生设计力量,传播优秀设计理念,
让我们一同窥见住宅空间的无限可能。

源于对设计的执着与热爱,在未来,格堂将会贯彻大赛的理念,持续在衢州装修界发起引发共鸣的赛事。
在这个卷设计的时代,格堂装饰带给设计师们丰富的学习资源和成长机会。
我们提供不同主题的专业培训机会,同时组织线下精品游学活动,让设计师们不断学习和探索,拓宽视野,激发灵感,创造出更优秀的设计作品。


内容页面Content
联系方式Contact
地 址:浙江省衢州市柯城区
财富中心3号楼2层
邮 编:324000 咨询热线:0570-8028505 服务投拆:0570-8028505 传 真:0570-8028505 邮 箱:574381721@qq.com
全国统一客服电话
0570-8028505

24x7小时免费咨询

  • 官方在线客服

    QQ客服:小西

    点击交谈

    QQ客服:良子

    点击交谈

    QQ客服:闵月

    点击交谈
  • 衢州市柯城区财富中心3号楼2楼

  • 衢州格堂装饰有限公司

  • 扫一扫关注官方微信

    获取一手特惠信息

返回顶部